Skip to content
Montpelier
Ashcombe, Weston-Super-Mare, BS23

£230,000

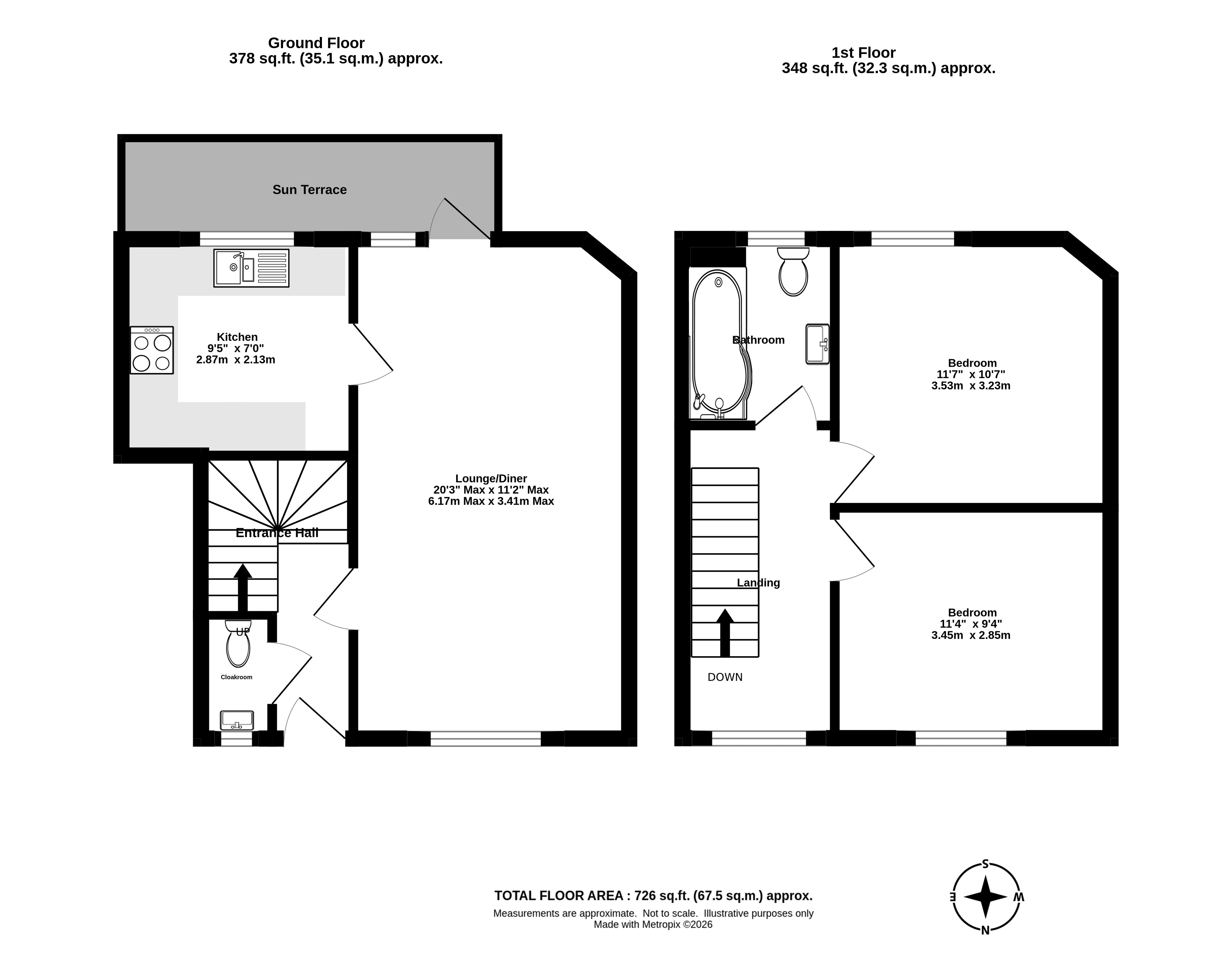
2 bed terraced house

Bedrooms

2

Living Rooms

1

Bathrooms

1

A superb opportunity to purchase a spacious and impressive two bedroom duplex/terraced house on the ever popular Montpelier in the Hillside area. The property has a south facing sun terrace and allocated off street parking space.

Key features

  • Montpelier
  • Hillside location
  • Quirky rare property
  • Spacious
  • Impressive modern accommodation
  • Sizeable lounge/diner and separate kitchen
  • Allocated parking space
  • South facing sun terrace
  • Two double bedrooms

Detail

Hillside is an area steeped in history and wonderful period property, this is a unique breath of fresh air offering house style accommodation in what could be described as a Duplex. The accommodation is modern, stylish and bright, consisting of an entrance hall, cloakroom, lounge/diner, separate kitchen, access to the south facing sun terrace, two double bedrooms and main bathroom.

Similar properties

Milton, Ashcombe and Hillside

Area guide
Weston Sales
Suite 57, Pure offices, Pastures Ave, St Georges, Weston-super-Mare, BS22 7SB
We’re open...

Sunday

Monday

Tuesday

Wednesday

Thursday

Friday

Saturday

Closed

09:00 - 18.00

09:00 - 18.00

09:00 - 18.00

09:00 - 18.00

09:00 - 18.00

09.00 - 16.00