Skip to content
Branton House
Weston-super-Mare, BS23

Sold STC

£145,000

1 bed

Bedrooms

1

Living Rooms

1

Bathrooms

1

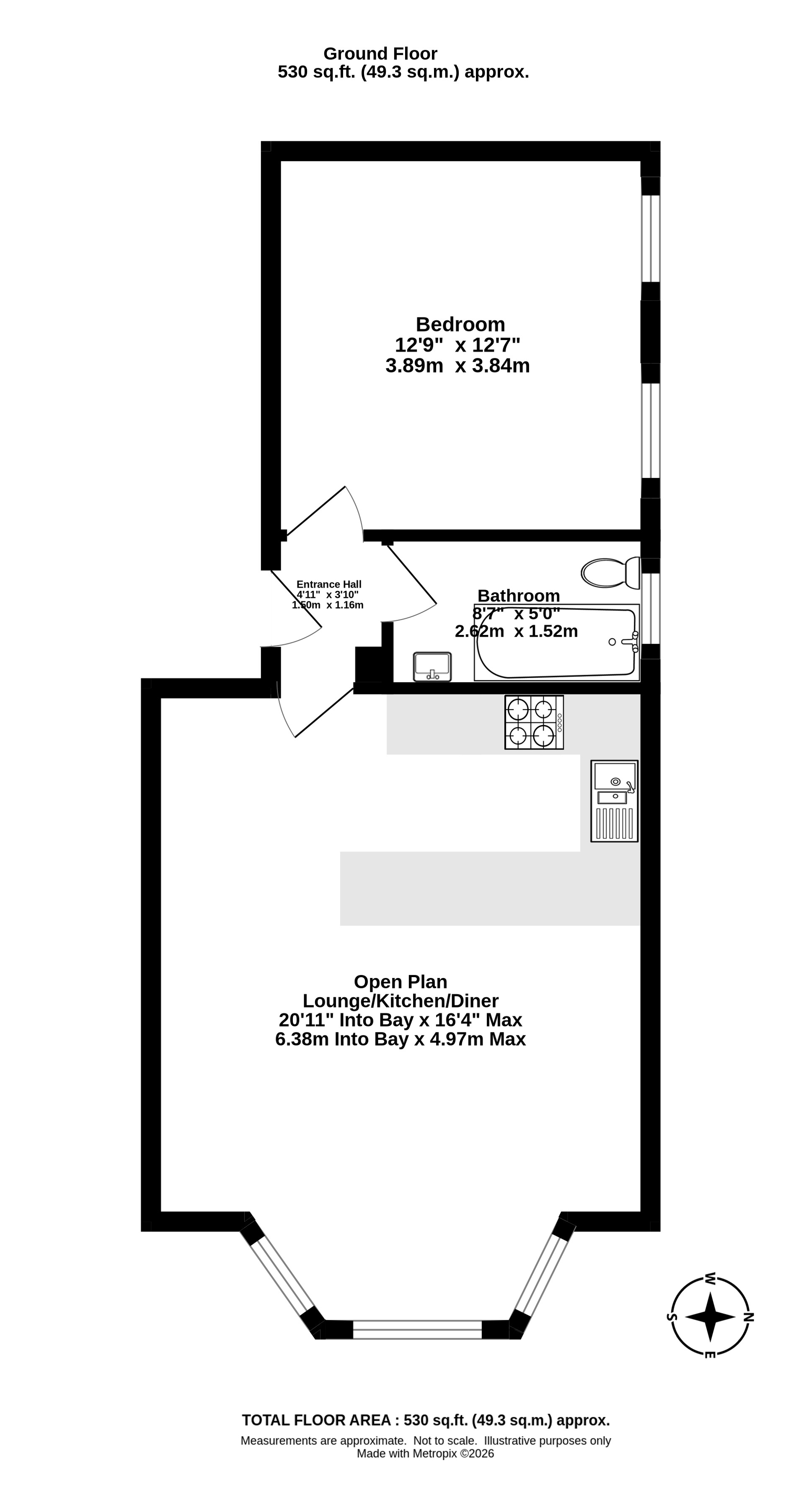
An exceptional, generously proportioned one bedroom ground floor period apartment, located within a popular Victorian era building in the highly desirable Montpelier.

Key features

  • Branton House, Montpelier
  • Superb period apartment
  • Ground floor
  • One double bedroom
  • Parking space
  • Impressive open plan Lounge/kitchen/diner/study area
  • Very popular building/area

Detail

Set within an impressive period villa, this superb ground floor apartment provides bright and spacious accommodation, including an entrance hall, an open plan lounge/kitchen/dining and study area, a particularly generous double bedroom, and a bathroom.

Similar properties

Weston-Super-Mare

Area guide
Weston Sales
Suite 57, Pure offices, Pastures Ave, St Georges, Weston-super-Mare, BS22 7SB
We’re open...

Sunday

Monday

Tuesday

Wednesday

Thursday

Friday

Saturday

Closed

09:00 - 18.00

09:00 - 18.00

09:00 - 18.00

09:00 - 18.00

09:00 - 18.00

09.00 - 16.00