Skip to content
Wickham View
Fishponds, Bristol, BS16

Offers in excess of

£350,000

3 bed bungalow

Bedrooms

3

Living Rooms

1

Bathrooms

1

Sold with no onward chain and backing directly onto the picturesque Frome Valley, is this 3 double bedroom, split level bungalow.

Key features

  • No chain
  • 3 double bedrooms
  • Garage conversion
  • Unique split-level bungalow
  • Open-plan lounge/kitchen/diner
  • Easy access to Snuff Mills and Stoke Park Estate
  • Backs onto the picturesque Frome Valley
  • EPC - D
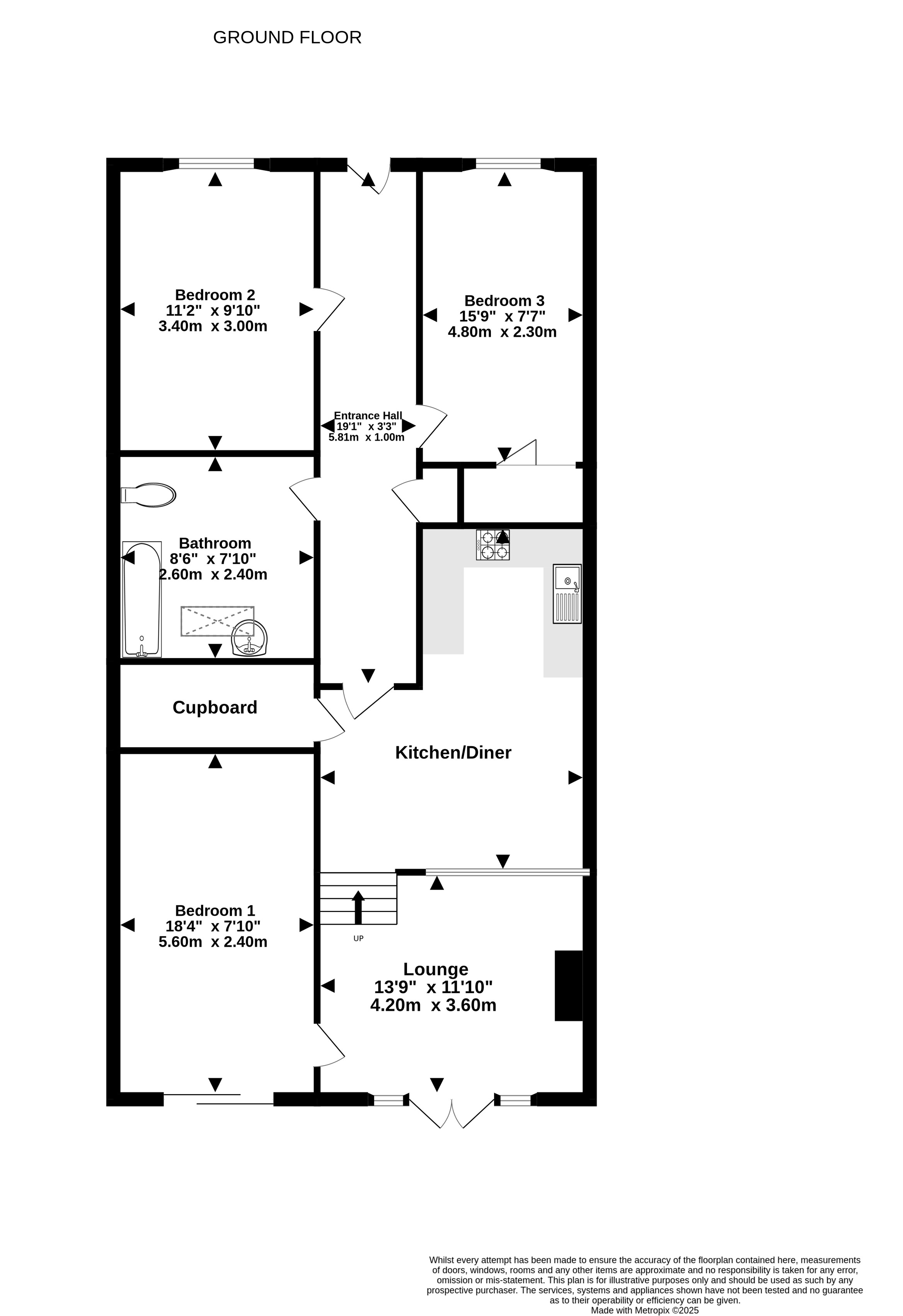
  • Floor area - 94 Square metres

Detail

Upon entering the home, you are welcomed into a generous hallway that provides access to all rooms, 2 of the 3 double bedrooms are positioned toward the front of the property as you make your way through. The main attraction of this home is the impressive open-plan, split-level living/kitchen/dining area. The kitchen features fitted worktops and units, seamlessly flo...

Similar properties

Fishponds

Area guide
Downend Sales
11a Badminton Road, Downend, BS16 6BD
We’re open...

Sunday

Monday

Tuesday

Wednesday

Thursday

Friday

Saturday

Closed

09:00 - 18.00

09:00 - 18.00

09:00 - 18.00

09:00 - 18.00

09:00 - 18.00

09.00 - 16.00