Skip to content
Apsley Road
Clifton, Bristol, BS8

Guide price

£290,000

1 bed apartment / flat

Bedrooms

1

Bathrooms

1

Attractive one-bedroom top floor flat, close to Clifton Village and Whiteladies Road with off street parking.

Key features

  • Larger than most, one bedroom top floor flat
  • Attractive views from the living room window
  • Excellent location close to Clifton Village, Whiteladies Road, and Durdham Downs
  • Off street parking
  • Ideal first home
  • No onward chain

Detail

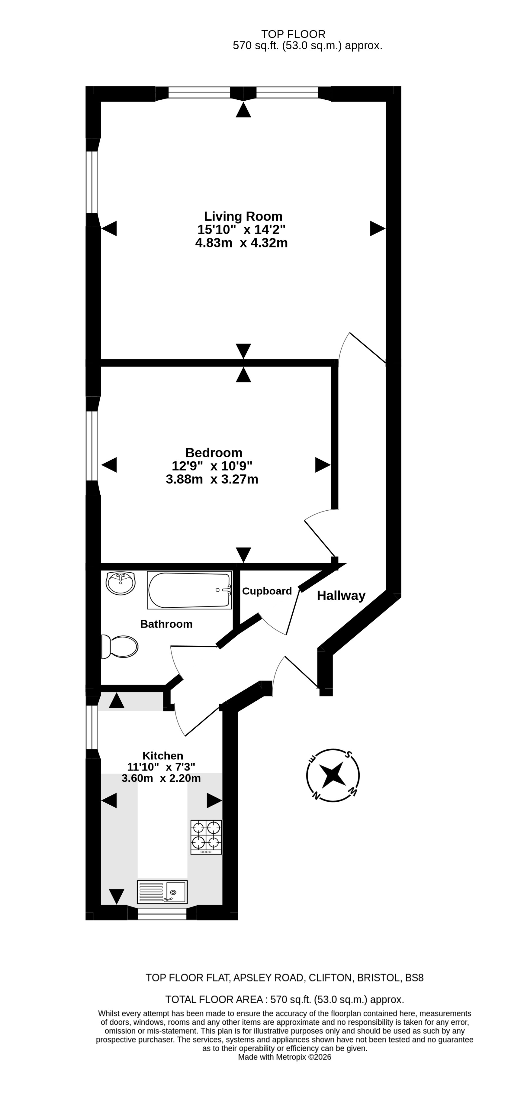
This top floor flat in Clifton offers a perfect opportunity for anyone looking for a stylish place to call home. The property boasts a generous separate living room, providing a welcoming space for relaxing or entertaining, filled with natural light and benefitting from the elevated top-floor position and attractive views. A separate fitted kitchen offers practical work...

Similar properties

Clifton

Area guide
Clifton Sales
187-189 Whiteladies Road, Redland, Bristol, BS8 2RY
We’re open...

Sunday

Monday

Tuesday

Wednesday

Thursday

Friday

Saturday

Closed

09:00 - 18.00

09:00 - 18.00

09:00 - 18.00

09:00 - 18.00

09:00 - 18.00

09.00 - 16.00