Skip to content
Dulcie Mary Pillers Place
Lockleaze, Bristol, BS7

Guide price

£325,000

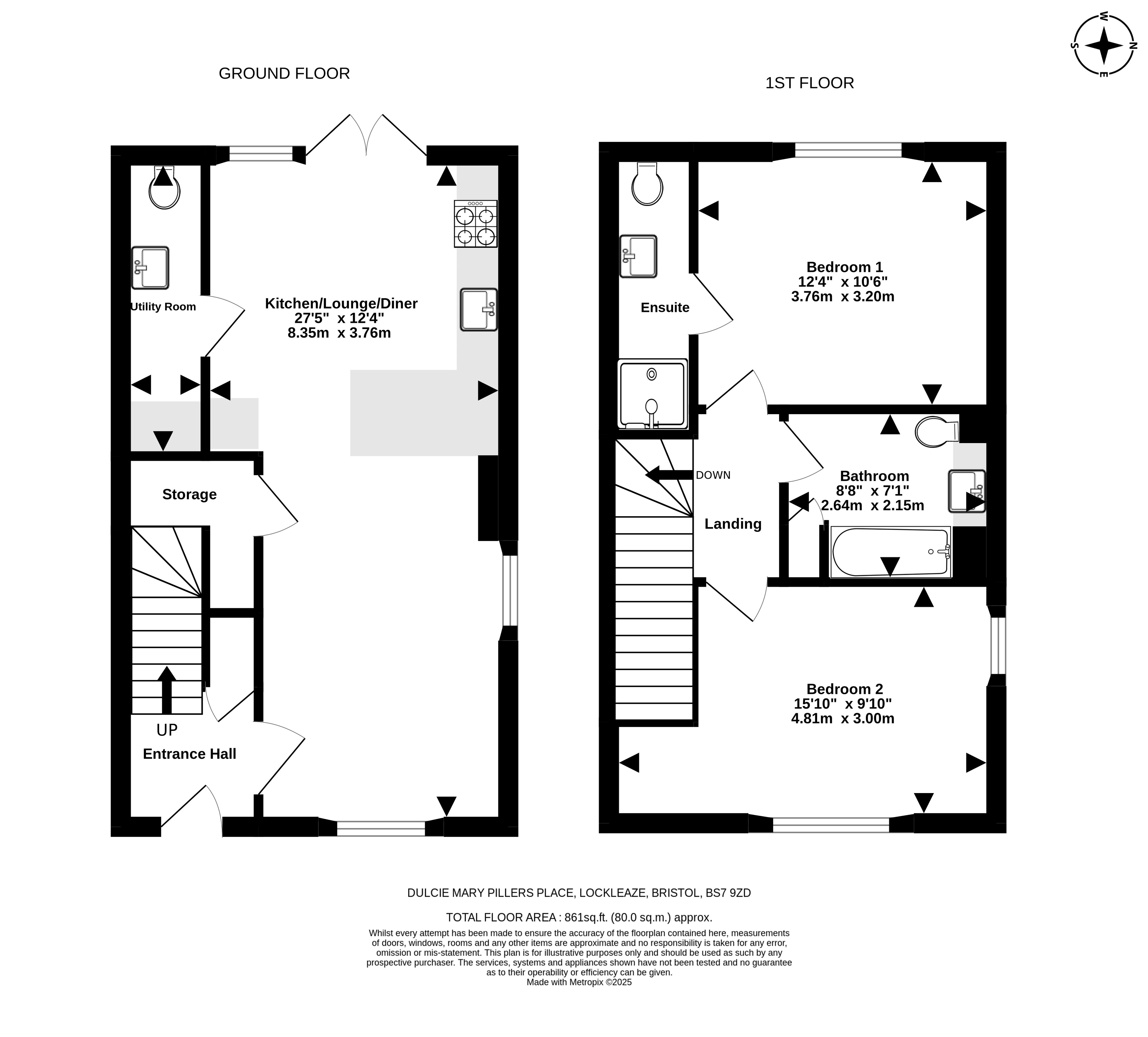
2 bed semi-detached house

Bedrooms

2

Living Rooms

1

Bathrooms

3

Meticulously maintained and elegantly decorated this recently built two-bedroom house is perfect for first time buyers.

Key features

  • Dulcie Mary Pillers Place
  • 10 year NHBC warranty
  • Beautifully finished throughout
  • Open plan downstairs living space
  • Two well-proportioned double bedrooms with impressive ceiling height
  • Three bathrooms
  • West-facing Garden
  • Off-street allocated parking space.
  • 80 sq.m
  • EPC - B

Detail

The ground floor is almost entirely open-plan, it is the heart of the home and a versatile space that is perfect for entertaining. The bespoke kitchen is fitted with deep blue wall and base units, topped with contrasting white worktops that give a clean and crisp look. There is a downstairs W/C/ utility room that leads off of the kitchen. The stairs reach up to the first-floor landing, this level is characterised by impressive ceiling heights that contribute to the flow of light throughout. Both of the bedrooms are very generous with the master benefiting from an en-suite bathroom. The family bathroom is immaculately presented and similar to the rest of this level, it benefits positively from elevated ceiling height.

Similar properties

Lockleaze

Area guide
Filton Sales Office
8 Gloucester Road North, Filton, Bristol, BS7 0SF
We’re open...

Sunday

Monday

Tuesday

Wednesday

Thursday

Friday

Saturday

Closed

09:00 - 18.00

09:00 - 18.00

09:00 - 18.00

09:00 - 18.00

09:00 - 18.00

09.00 - 16.00