Skip to content
Westleigh Park
Hengrove, Bristol, BS14

Sold STC

£200,000

2 bed maisonette

Bedrooms

2

Living Rooms

2

Bathrooms

1

A well-presented two-bedroom maisonette with its own private entrance and garden. The property was fully refurbished six years ago, including new windows, electrics, boiler, kitchen and bathroom. It has been rented to the same tenant since the refurbishment and is now vacant and offered with no onward chain.

Key features

  • Westleigh Park
  • Maisonette
  • 2 bedrooms
  • 2 reception rooms
  • Private entrance
  • Allocated section of rear garden
  • Ample storage inside & outside
  • No chain
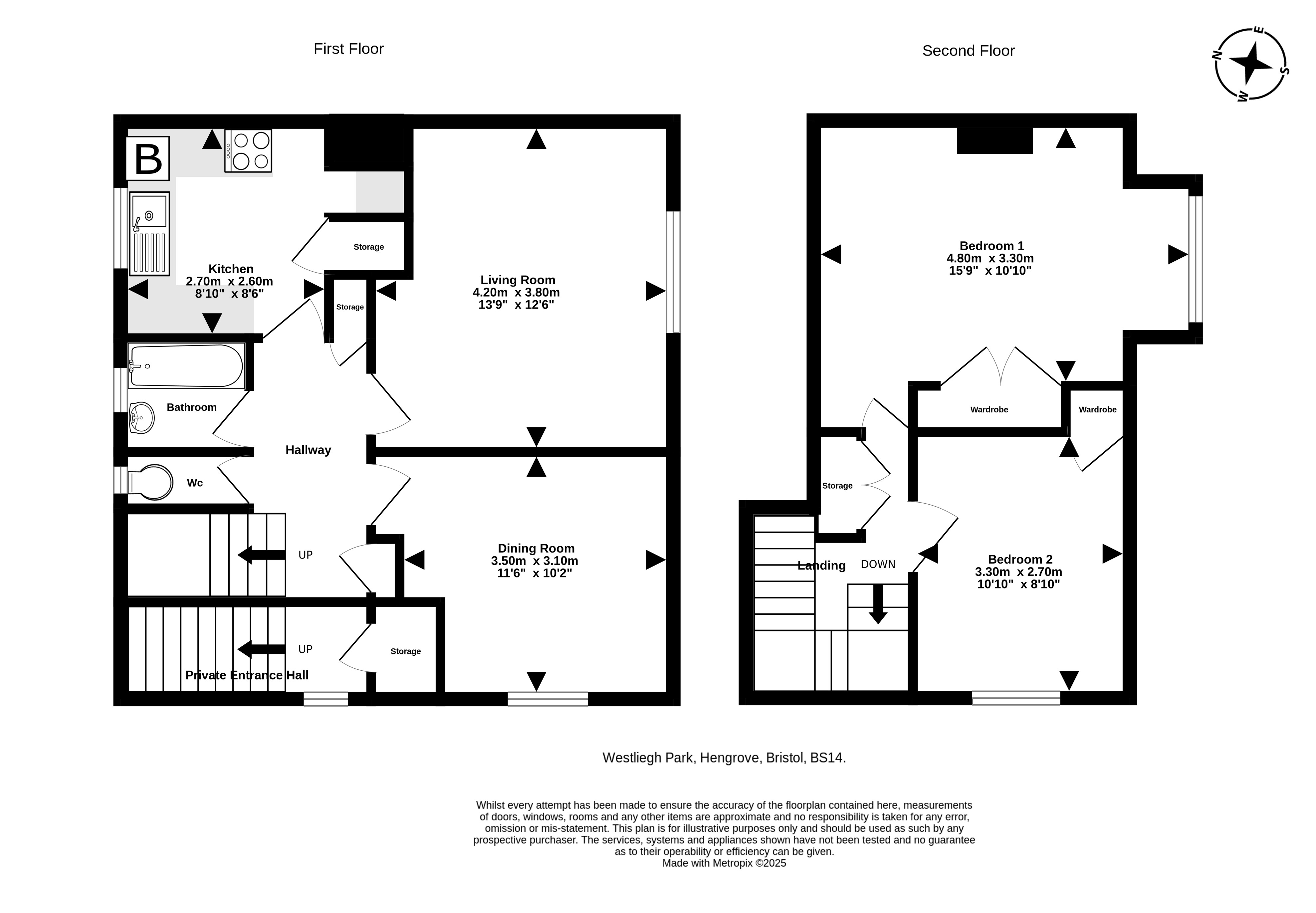
  • Area - 91m2
  • EPC - E (has been modernised since last EPC)

Detail

The first floor is accessed via a private hallway and features the main living areas, including a spacious living room, a dining room, and a separate kitchen. This level also includes a bathroom and a separate WC. Upstairs are two double bedrooms, each with built-in wardrobes. Throughout the property, there is ample storage space.

Similar properties

Knowle Sales
321 Wells Road, Knowle, Bristol, BS4 2QB
We’re open...

Sunday

Monday

Tuesday

Wednesday

Thursday

Friday

Saturday

Closed

09:00 - 18.00

09:00 - 18.00

09:00 - 18.00

09:00 - 18.00

09:00 - 18.00

09.00 - 16.00