Skip to content
Lilac Cottage
Hambrook, Bristol, BS16

£425,000

2 bed semi-detached house

Bedrooms

2

Living Rooms

1

Bathrooms

1

Now available for viewings is this charming semi-detached cottage situated in the desirable village of Hambrook, Bristol.

Key features

  • 2 bedrooms
  • Loft conversion
  • Studio
  • Kitchen/Diner
  • Large lounge
  • Log burners in both receptions
  • Flagstone flooring
  • Stable door
  • Great location for both countryside and transport links

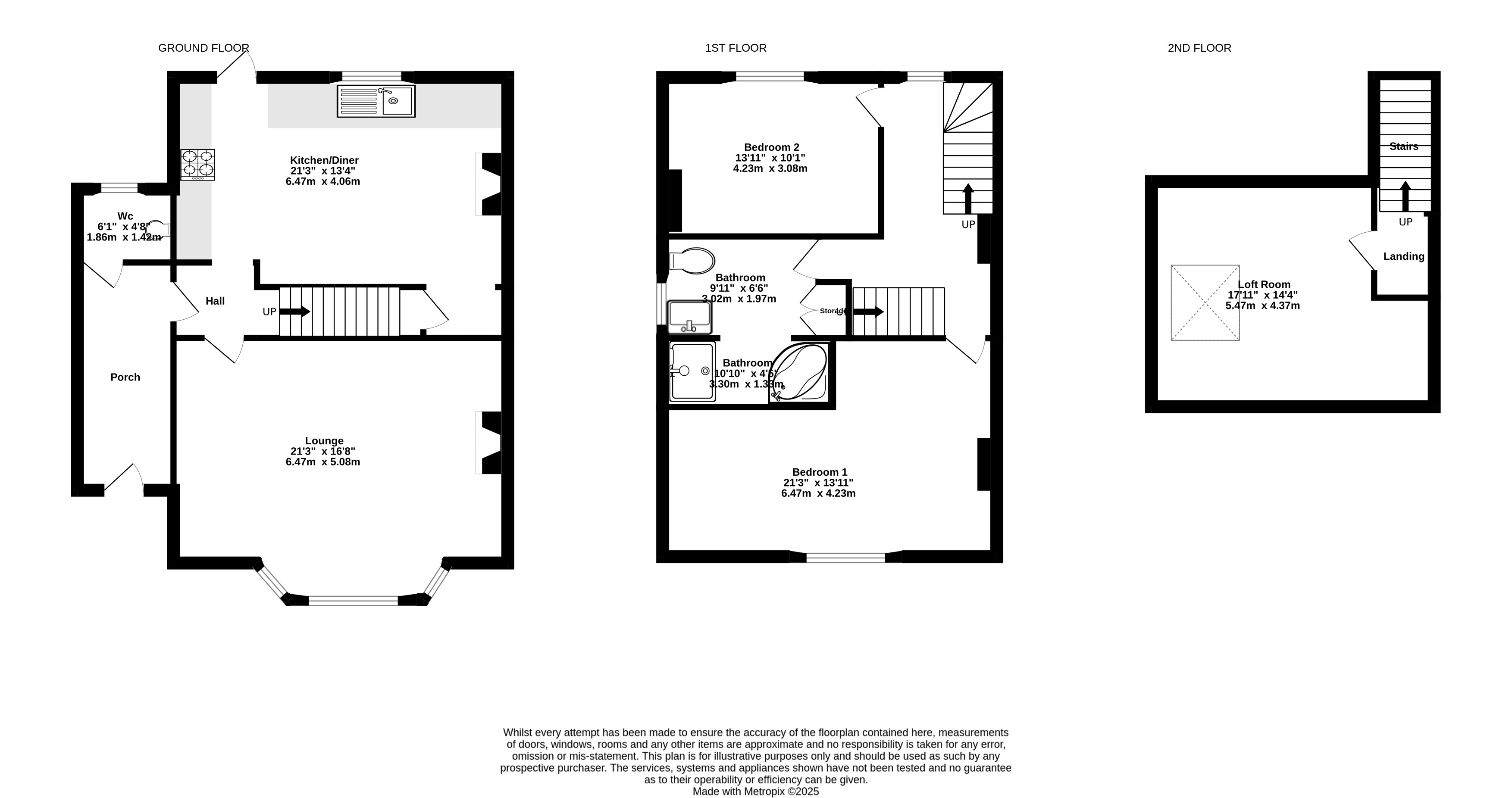
Detail

As you approach the property via the footpath you are welcomed by an attractive front lawn with young trees and shrubs which gives the property instant character. You enter via a side porch which is a great space for coats and shoes, off the back of the porch there is a handy WC. Entering again on the side of the property through a lovely stable door you find yourself s...

Similar properties

Downend Sales
11a Badminton Road, Downend, BS16 6BD
We’re open...

Sunday

Monday

Tuesday

Wednesday

Thursday

Friday

Saturday

Closed

09:00 - 17.30

09:00 - 17.30

09:00 - 17.30

09:00 - 17.30

09:00 - 17.30

09.00 - 16.00