This well-presented and aesthetically pleasing ground-floor apartment offers an excellent opportunity to move into an extremely well-established and highly sought-after development, ideally positioned in the heart of the beautiful village of Frenchay.
Accessed via a private and secure gated entrance, the development is set amidst an abundance of mature greenery and n...
This well-presented and aesthetically pleasing ground-floor apartment offers an excellent opportunity to move into an extremely well-established and highly sought-after development, ideally positioned in the heart of the beautiful village of Frenchay.
Accessed via a private and secure gated entrance, the development is set amidst an abundance of mature greenery and natural surroundings, with a long and peaceful driveway leading through to the residential buildings.
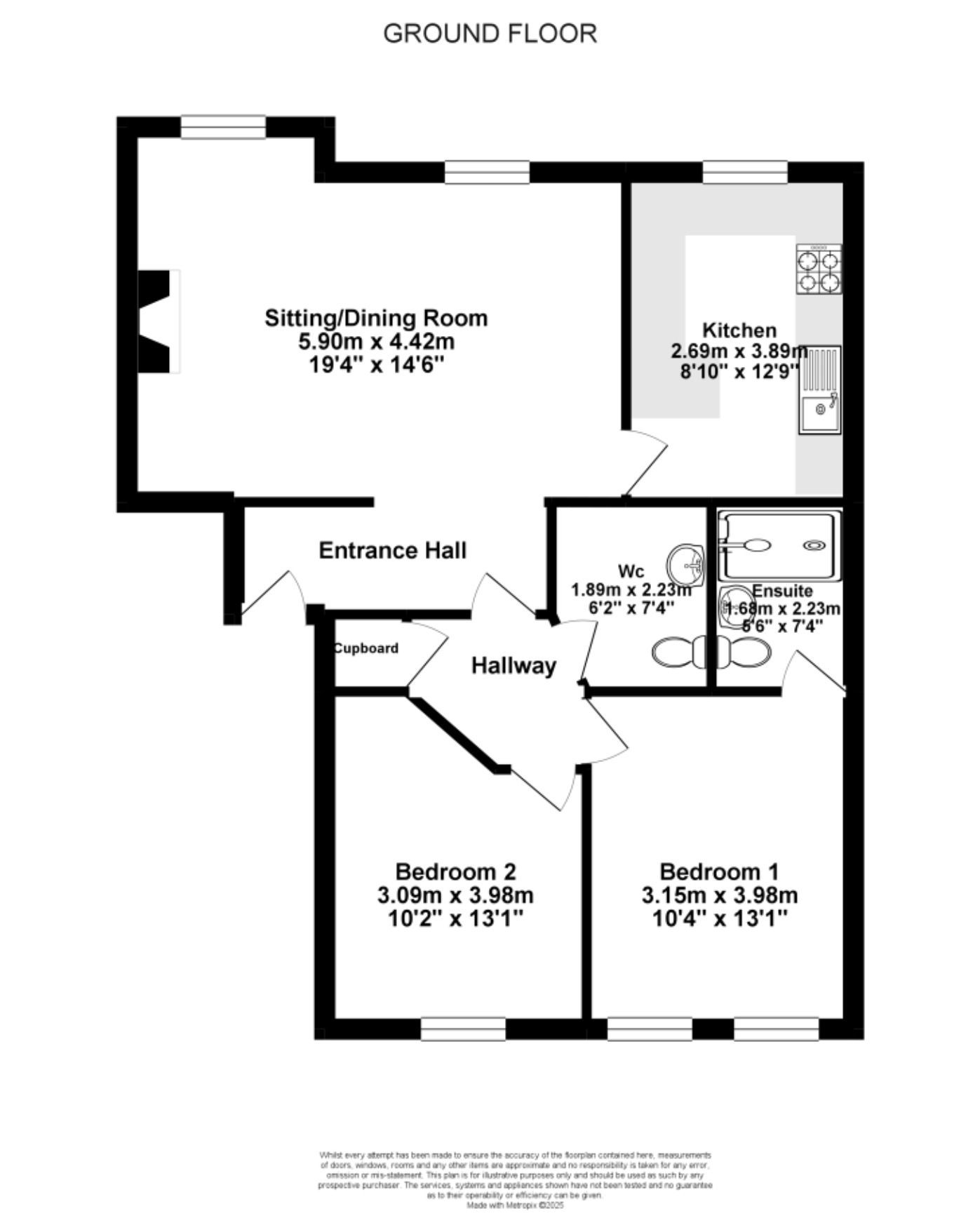
The apartment is situated within a smaller and quieter building of just two flats, distinct from the larger apartment blocks on the estate. It is accessed via a spacious, light and airy entrance hall shared with one other owner, featuring a well-proportioned staircase with attractive balustrading and a characterful candelabra light fitting. The hallway also provides space for hall furniture and includes a private storage cupboard.
From within the apartment, there are pleasant views across the beautiful, well-maintained communal gardens.
The accommodation includes a separate living/dining room which spans the majority of the width of the property, providing a bright and comfortable living space. Adjacent to this is a well-appointed kitchen with built-in appliances, ample storage, and a breakfast bar with seating for two.
To the front of the property are two well-proportioned bedrooms. The principal bedroom benefits from an en-suite bathroom, while the second bedroom includes fitted wardrobes along one wall and can serve as a generously sized guest bedroom accommodating a double bed, or alternatively lends itself well to use as a home office or dressing room. Completing the accommodation is a spacious marble-tiled WC and additional storage.
Outside
Frenchay is a highly regarded and picturesque village situated on the outskirts of Bristol, offering an appealing balance of semi-rural living with excellent transport links. The property is conveniently located for access to the M32 and Bristol Ring Road, making it ideal for those commuting in and out of the city.
The Frenchay Common is located just outside the development gates, while the Frome Valley Walkway and surrounding countryside provide a variety of scenic walks. The village church and a popular local pub are within walking distance, and a range of outstanding schools and other local amenities are also close by.
Location
To the exterior, the property continues to impress with beautifully maintained communal grounds, providing a peaceful setting surrounded by lawns and greenery. There is ample residents’ parking available on a first-come, first-served basis, together with the benefit of the allocated garage.
The gardens attract abundant birdlife, with squirrels resident within the grounds and foxes occasionally passing through, adding to the tranquil and natural environment.
Material information (provided by owner)
Leasehold - 946 years
Council tax band - D
£2340 annual Management charge