Skip to content
Ashton Gate Road
Ashton Gate, Bristol, BS3

Sold STC

£280,000

1 bed apartment / flat

Bedrooms

1

Living Rooms

1

Bathrooms

1

Step into your own peaceful oasis in this charming garden flat on Ashton Gate Road. Perfect for a single professional or couple looking for a cosy retreat.

Key features

  • Ashton Gate Road, Ashton Gate
  • Garden Flat
  • 1-Bedroom
  • Lounge
  • Kitchen
  • Conservatory
  • Bathroom
  • Garden

Detail

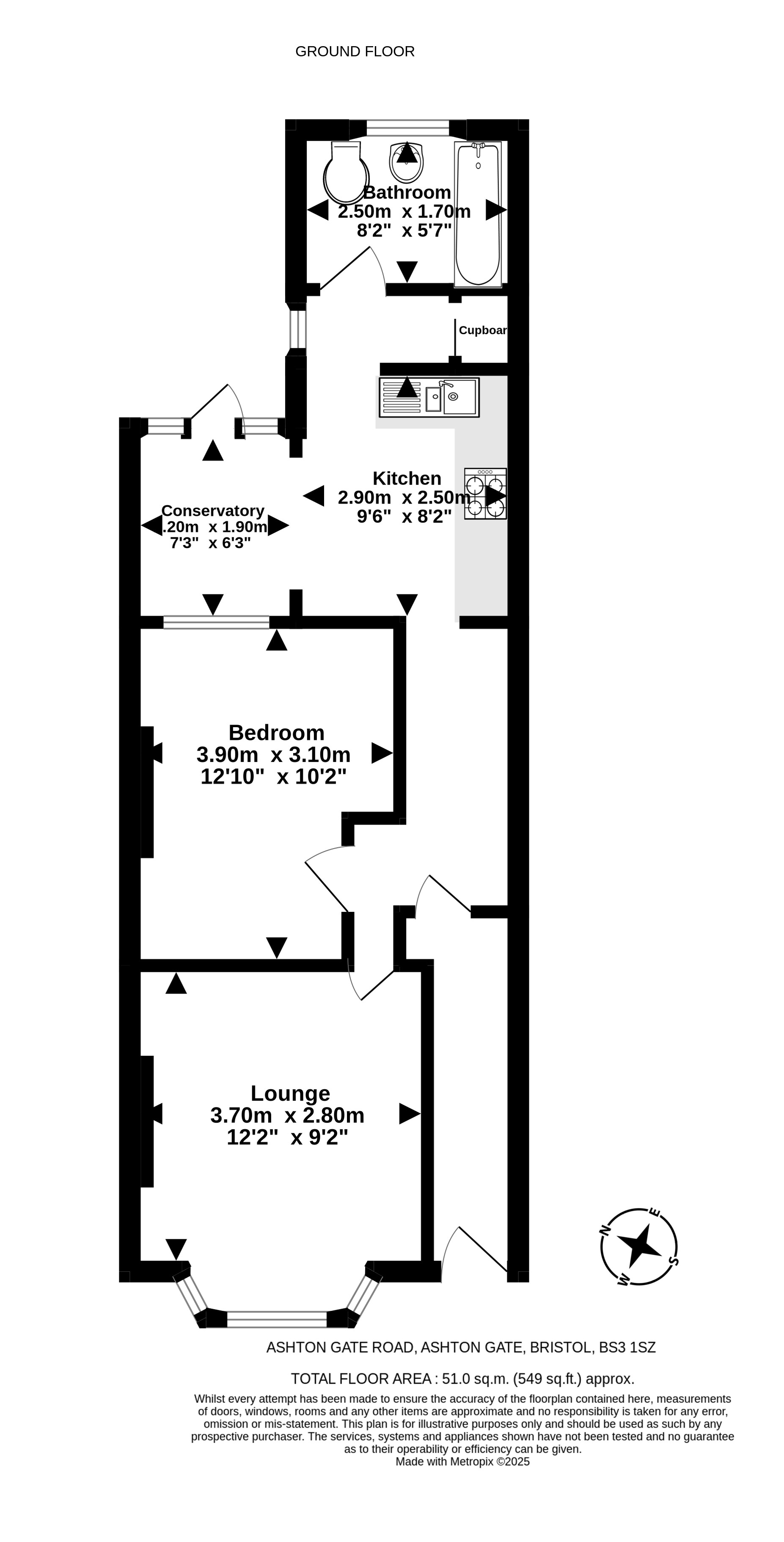
Welcome to this delightful 1-bedroom garden flat on Ashton Gate Road, offering a lounge, functional kitchen, conservatory, and a tranquil garden to enjoy on sunny days. The bathroom completes the picture, making this home a perfect haven for a single professional or couple. The location is ideal for those who appreciate a peaceful neighbourhood with easy access to local amenities and transport links.

Similar properties

Southville Sales
The Plaza, 275 North Street, Southville, Bristol, BS3 1JN
We’re open...

Sunday

Monday

Tuesday

Wednesday

Thursday

Friday

Saturday

Closed

09:00 - 18.00

09:00 - 18.00

09:00 - 18.00

09:00 - 18.00

09:00 - 18.00

09.00 - 16.00