Skip to content
The Coach House
Shirehampton, Bristol, BS11

£749,950

4 bed house

Bedrooms

4

Living Rooms

3

Bathrooms

2

This period home in the heart of Shirehampton village accessed via electric gates and private drive.

Key features

  • Period Property
  • Secluded Gardens
  • Heart of the village
  • Gated Entrance
  • 4 Bedrooms
  • Kitchen/Dining Room
  • 3 Reception Rooms
  • Wood Flooring
  • Security Alarm
  • Telephone Entry System
  • Gas Central Heating
  • Double Glazing
  • Shower Room/Utility
  • CCTV camera system
  • En-Suite
  • Parking

Detail

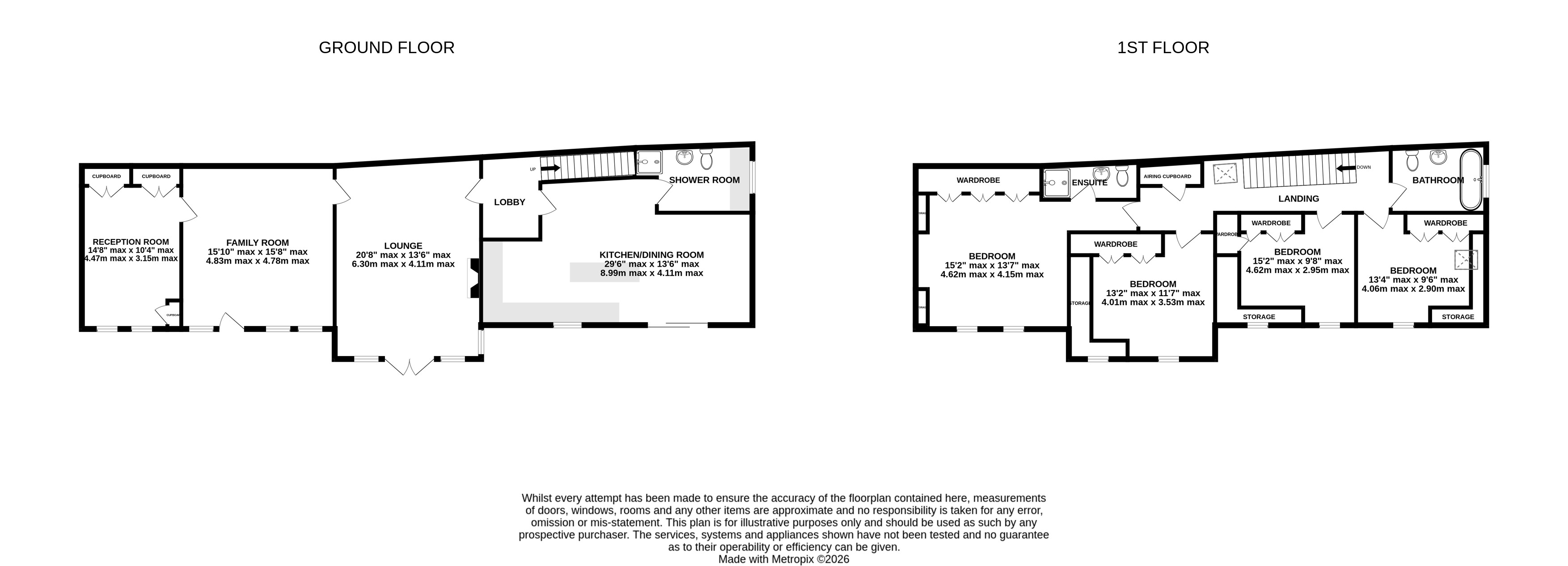
This period home in the heart of Shirehampton village accessed via electric gates and private drive. This feature filled house with flexible living accommodation. Hidden away from The High Street boasting wooden floors, gas central heating, CCTV camera system and double glazing. This unique property is sure to be in high demand. The ground floor is light and airy with a lounge, kitchen/dining room, two further reception rooms and a shower room/utility room. The first-floor landing is flooded with light from a skylight window and has doors leading to the master suite with fitted wardrobes and en-suite shower room, three further double bedrooms again with fitted wardrobes and a family bathroom.

Similar properties

Shirehampton

Area guide
Shirehampton Sales
14-16 High Street, Shirehampton, Bristol, BS11 0DP
We’re open...

Sunday

Monday

Tuesday

Wednesday

Thursday

Friday

Saturday

Closed

09:00 - 18.00

09:00 - 18.00

09:00 - 18.00

09:00 - 18.00

09:00 - 18.00

09.00 - 16.00