Skip to content
Churchlands Road
Bedminster, Bristol, BS3

Sold STC

£420,000

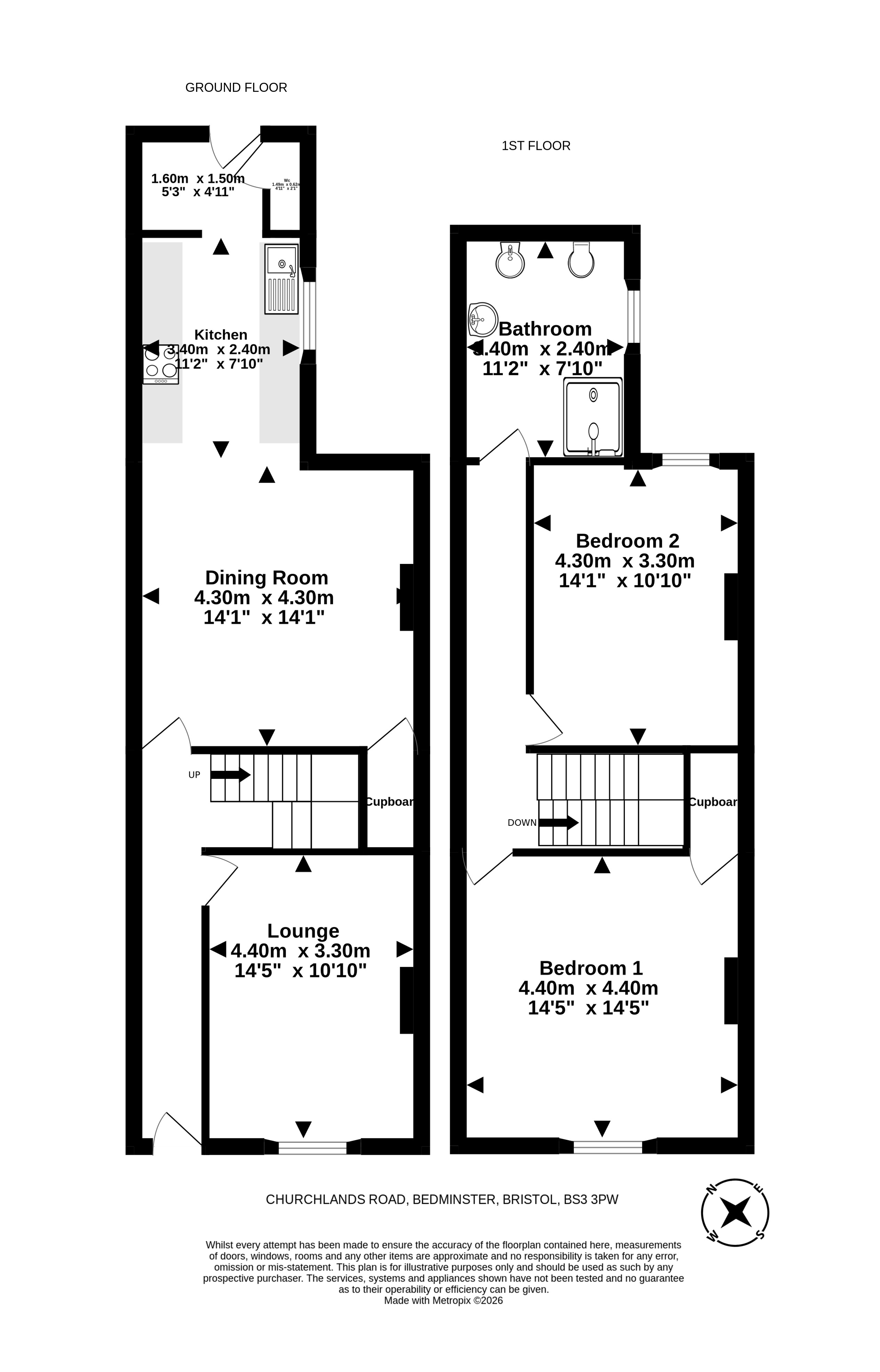
2 bed terraced house

Bedrooms

2

Living Rooms

2

Bathrooms

2

Charming 2-bed terraced house in Bedminster with courtyard garden. Perfect for first-time buyers or young professionals looking for a cosy home to relax in.

Key features

  • Churchlands Road, Bedminster
  • 2-Bedrooms
  • Mid Terraced
  • Lounge
  • Open Plan Kitchen/Diner
  • Downstairs WC
  • Upstairs Shower Room
  • Courtyard Garden

Detail

Welcome to this beautifully presented terraced home on Churchlands Road in Bedminster — a space that blends character, creativity, and modern living. Step inside to a cosy yet stylish lounge, where the log burner sets the tone for relaxed evenings, whether you’re unwinding with a book or hosting friends. This flows effortlessly into the open-plan kitchen/diner — a bright, sociable space that truly forms the heart of the home. A downstairs WC adds a practical touch, while upstairs the home continues to impress. Two well-proportioned bedrooms offer calm and comfortable retreats, and the beautifully finished 4-piece bathroom

Similar properties

Bedminster

Area guide
Southville Sales
The Plaza, 275 North Street, Southville, Bristol, BS3 1JN
We’re open...

Sunday

Monday

Tuesday

Wednesday

Thursday

Friday

Saturday

Closed

09:00 - 18.00

09:00 - 18.00

09:00 - 18.00

09:00 - 18.00

09:00 - 18.00

09.00 - 16.00