Skip to content
Brighton Road
Redland, Bristol, BS6

Sold STC

£250,000

1 bed apartment / flat

Bedrooms

1

Bathrooms

1

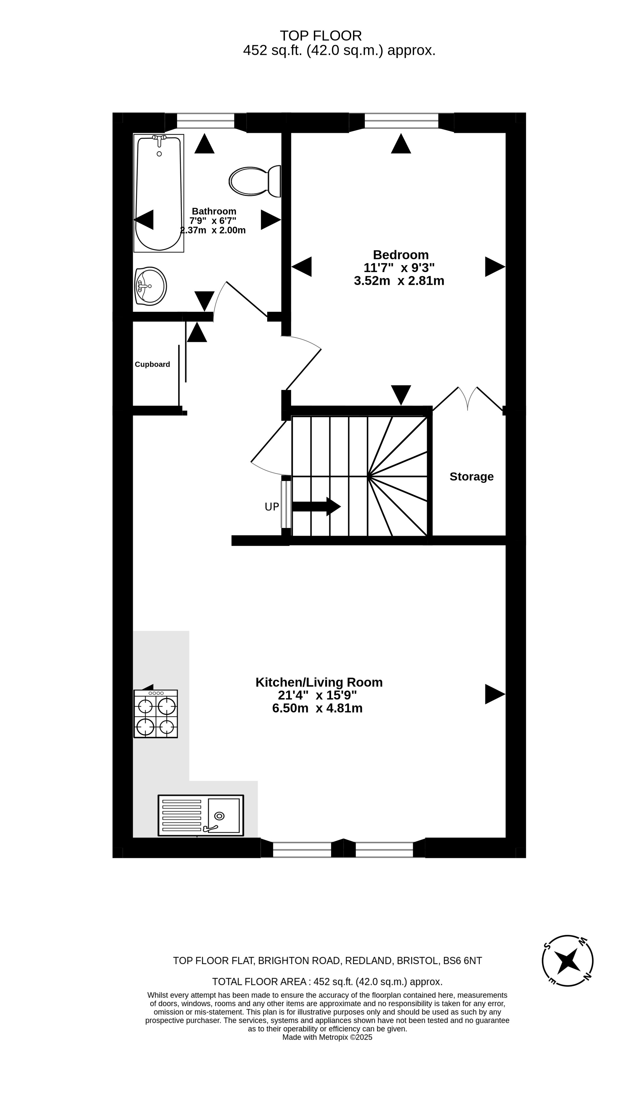
This charming 1-bedroom top floor flat, located on Brighton Road in the sought-after area of Redland, offers a perfect blend of comfort and convenience.

Key features

  • 1 bedroom top floor flat
  • Spacious living area
  • Modern bathroom
  • Dedicated storage cupboard
  • Double glazed windows
  • EPC - C
  • 42 sqm

Detail

This charming 1-bedroom top floor flat, located on Brighton Road in the sought-after area of Redland, offers a perfect blend of comfort and convenience. Situated just off the popular Chandos Road, the property is within easy reach of local amenities, cafes, and transport links. The flat boasts an open-plan kitchen and living room, featuring large double-glazed window...

Similar properties

Redland

Area guide
Clifton Sales
187-189 Whiteladies Road, Redland, Bristol, BS8 2RY
We’re open...

Sunday

Monday

Tuesday

Wednesday

Thursday

Friday

Saturday

Closed

09:00 - 18.00

09:00 - 18.00

09:00 - 18.00

09:00 - 18.00

09:00 - 18.00

09.00 - 16.00