Skip to content
Royal Court
Weston-super-Mare, BS23

Sold STC

£279,000

2 bed

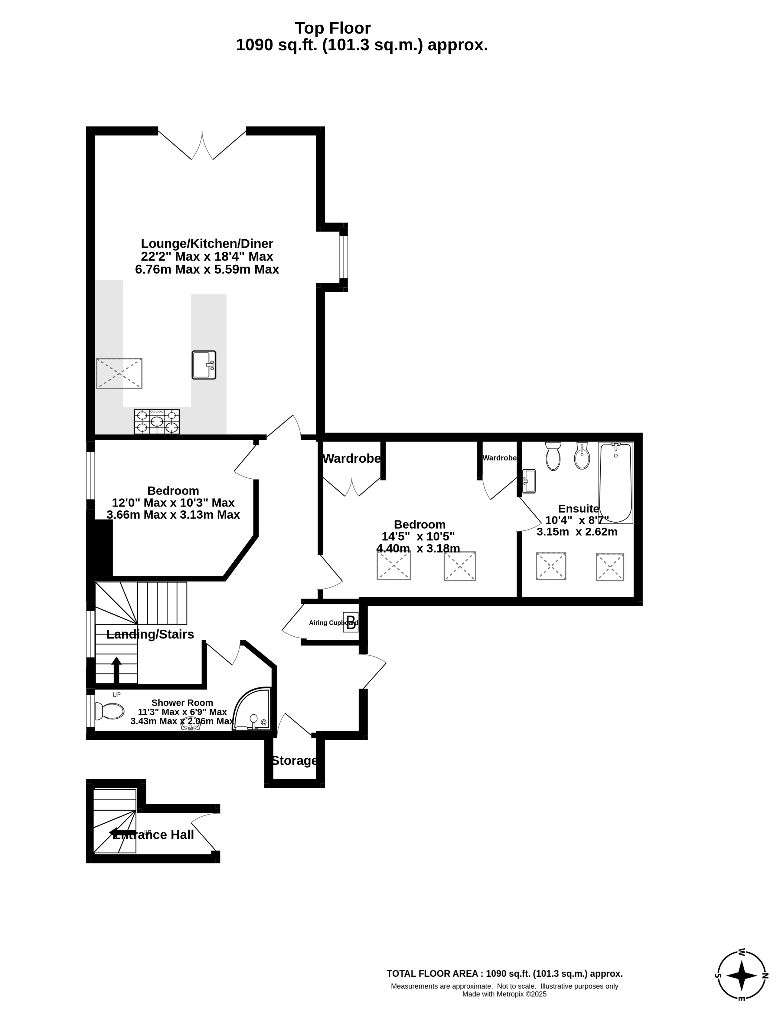
Bedrooms

2

Living Rooms

1

Bathrooms

2

This elegant and spacious two-bedroom top floor apartment boasts breath taking views of the golf course and sea/beach. Situated in the historic Royal Court, the former hospital chapel, this property is offered for sale with no onward chain.

Key features

  • Royal Sands
  • Sea, Beach and golf course views
  • Stunning top floor apartment
  • Spacious lounge/diner
  • West facing Juliet balcony
  • Access to outdoor space
  • No onward chain
  • Bespoke U shaped kitchen
  • Two generous bedrooms
  • Ensuite and shower room
  • Gated development
  • Allocated parking space and visitor spaces

Detail

Royal Sands is a prestigious Grade II listed development, originally the Chapel of the Royal Hospital, built in the late 19th century and thoughtfully converted around the Millennium. This exclusive, gated location offers enhanced security and privacy for its residents. The apartment occupies the top floor, with a private entrance hall located one floor below, giving th...

Similar properties

Weston-Super-Mare

Area guide
Weston Sales
Suite 57, Pure offices, Pastures Ave, St Georges, Weston-super-Mare, BS22 7SB
We’re open...

Sunday

Monday

Tuesday

Wednesday

Thursday

Friday

Saturday

Closed

09:00 - 18.00

09:00 - 18.00

09:00 - 18.00

09:00 - 18.00

09:00 - 18.00

09.00 - 16.00