This end terrace home is perfect for first time buyers and is being sold with no chain.
It has generous sized bedrooms, light & airy living spaces, a good sized back garden and off road parking to the front.
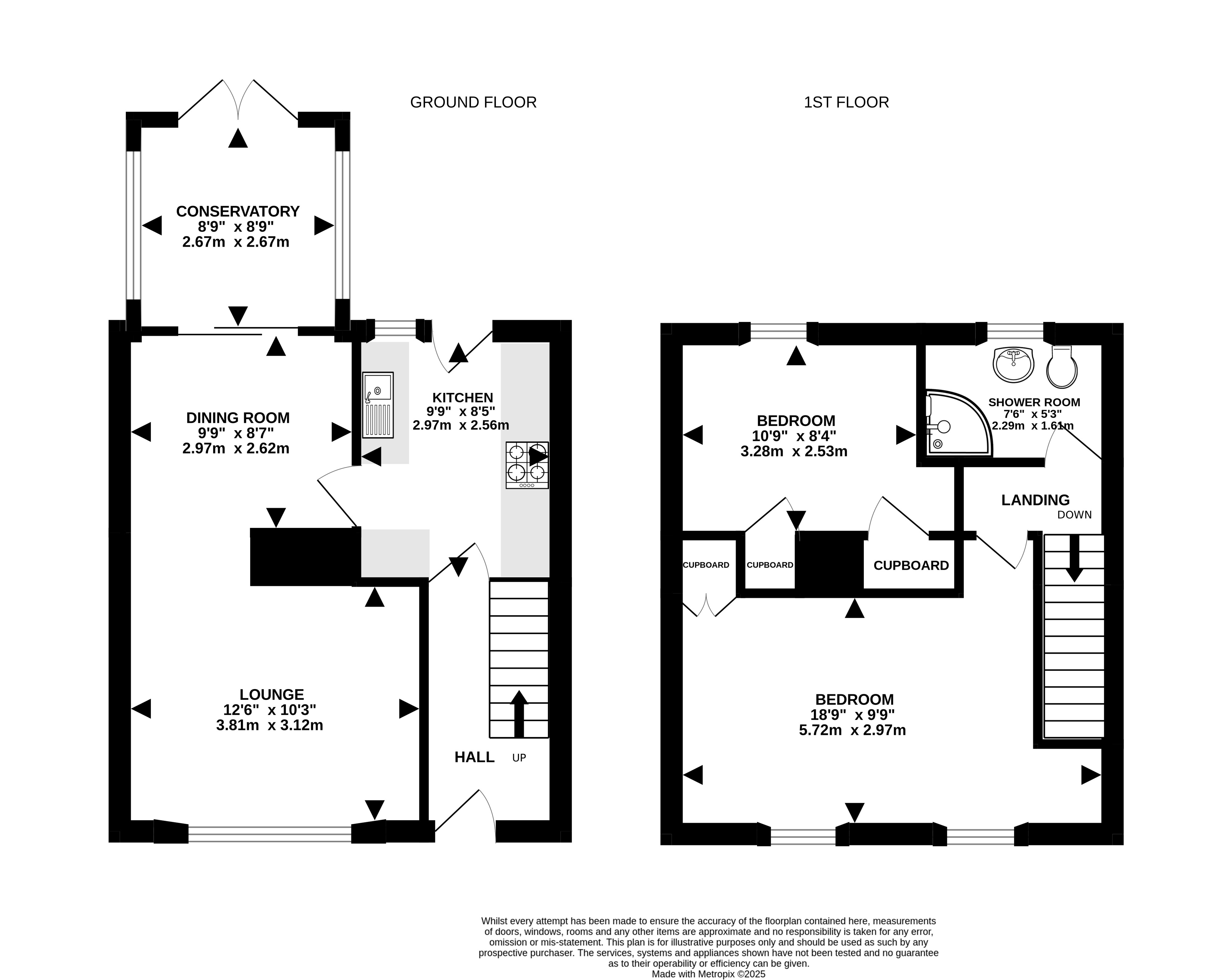
You enter the house into the main hallway and from here you can access the lounge and the kitchen.
The lounge has a large window to the front and the firepla...
This end terrace home is perfect for first time buyers and is being sold with no chain.
It has generous sized bedrooms, light & airy living spaces, a good sized back garden and off road parking to the front.
You enter the house into the main hallway and from here you can access the lounge and the kitchen.
The lounge has a large window to the front and the fireplace is a nice feature in this room.
An opening leads to the dining room meaning these can be very sociable spaces.
Off the dining room is the kitchen and the conservatory.
The kitchen has a modern feel to it and has some integrated appliances including a fridge/freezer and an oven & hob. A door opens to the garden.
The conservatory was added on many years ago and is a very useful addition.
It has an electric wall heater and a glazed roof so can be used throughout the year.
This makes a great work from home space, kids play room or garden room.
On the first floor there are 2 double bedrooms and a shower room.
The master bedroom spans the full width of the property and has fitted storage. There is potential here to divide this room and create a study or kids room.
The back bedroom is also a good sized double bedroom and has fitted storage cupboards. The bathroom has been converted to a shower room, but could easily be returned to a bathroom if required.
The house has double glazing and gas central heating from a combination boiler.
Like many houses in the area, the property is of Laing-Easi style construction, so please check with your lender prior to viewing.
Outside
The back garden is accessed either from the conservatory or kitchen, and there is also a gate to the side of the house.
The main part of the garden is lawned and is bordered and there is a decked area which is great for outdoor dining, whilst there is a patio next to the house. There is a brick built shed which provides excellent storage.
To the front is a driveway allowing for off road parking.
Location
Chakeshill Drive is a very convenient location - Southmead Hospital is just over a mile and half away, and Westbury Village with its selection of shops, cafes and pubs is less than 2 miles away.
Access is easy by public transport to Cribbs Causeway with its great selection of shops and leisure outlets. In the near future, the new arena at the Brabazon development will be within walking distance, as will Henbury Train Station that is due to open in 2028.
There’s both primary and secondary schools nearby, and you’ve plenty of green space to explore.
We think...
This is a very sensibly priced property that is perfect for first time buyers. It’s ready to move straight into and will provide a lovely home for the next owners.