Skip to content
Bilberry Close
Coombe Dingle, Bristol, BS9

£300,000

3 bed terraced house

Bedrooms

3

Living Rooms

2

Bathrooms

1

A 3 bedroom home, sitting on the fringes of Blaise Castle Estate woodlands in need of modernisation. Offered to the market with no onward chain.

Key features

  • No onward chain
  • 3 bedroom terraced home
  • Close to Blaise Castle & Kings Weston woodlands
  • Spacious lounge leading to a conservatory
  • Downstairs WC
  • Communal parking area

Detail

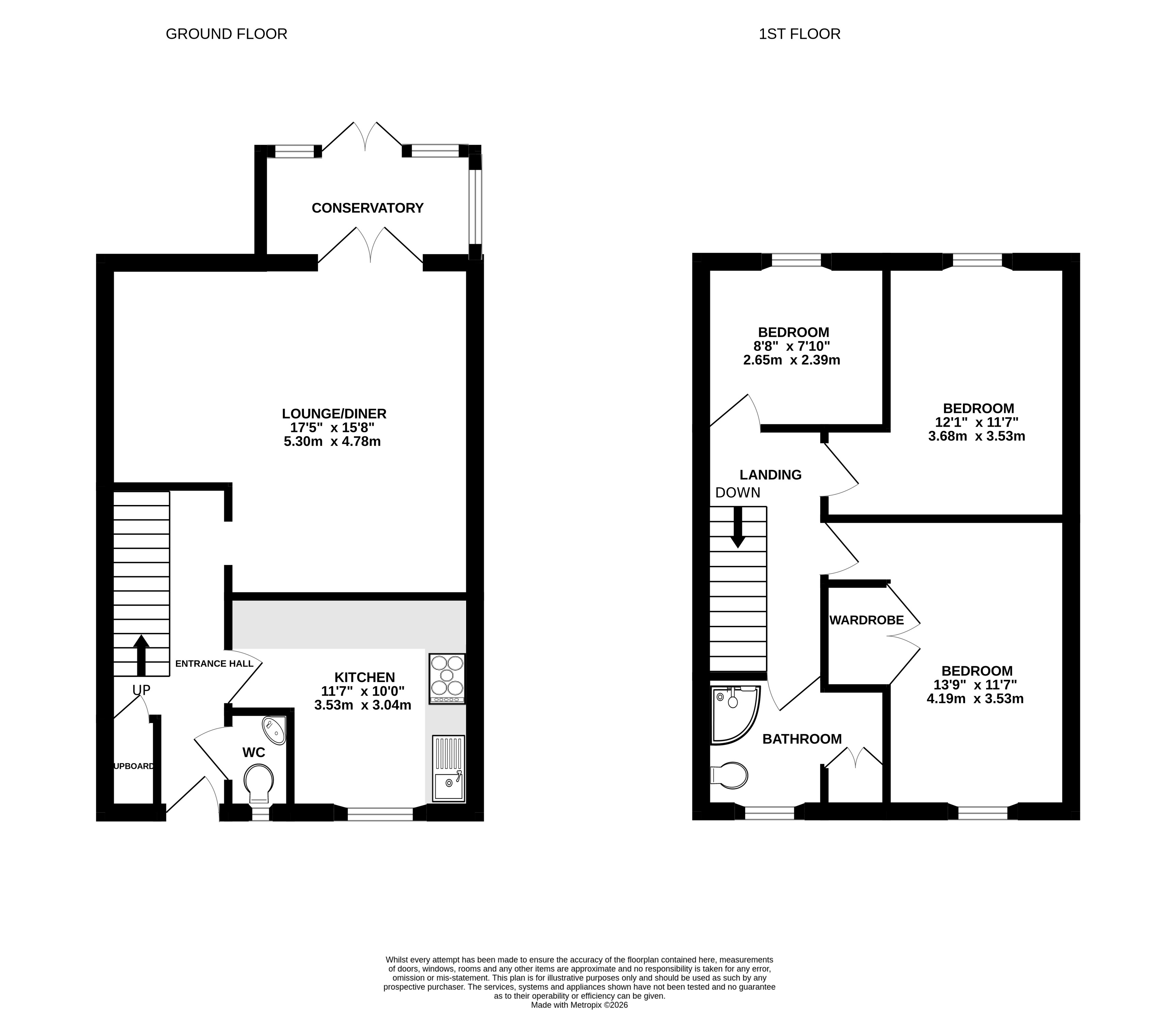
Upon entering via the front porch there is an entrance hall, which is a generous size, on the immediate right is the separate kitchen and a useful WC. The main living area of this house is at the rear of the property and spans the width of the house. It provides ample space for both lounge and dining furniture and has French doors that lead into the conservatory. Upstairs there is two very generously sized bedrooms both of which comfortably fit double beds and an additional single bedroom. The shower room has a walk-in shower and storage cupboard.

Similar properties

Coombe Dingle

Area guide
Shirehampton Sales
14-16 High Street, Shirehampton, Bristol, BS11 0DP
We’re open...

Sunday

Monday

Tuesday

Wednesday

Thursday

Friday

Saturday

Closed

09:00 - 18.00

09:00 - 18.00

09:00 - 18.00

09:00 - 18.00

09:00 - 18.00

09.00 - 16.00