Skip to content
Ashley Down Road
Bishopston, Bristol, BS7

Sold STC

£375,000

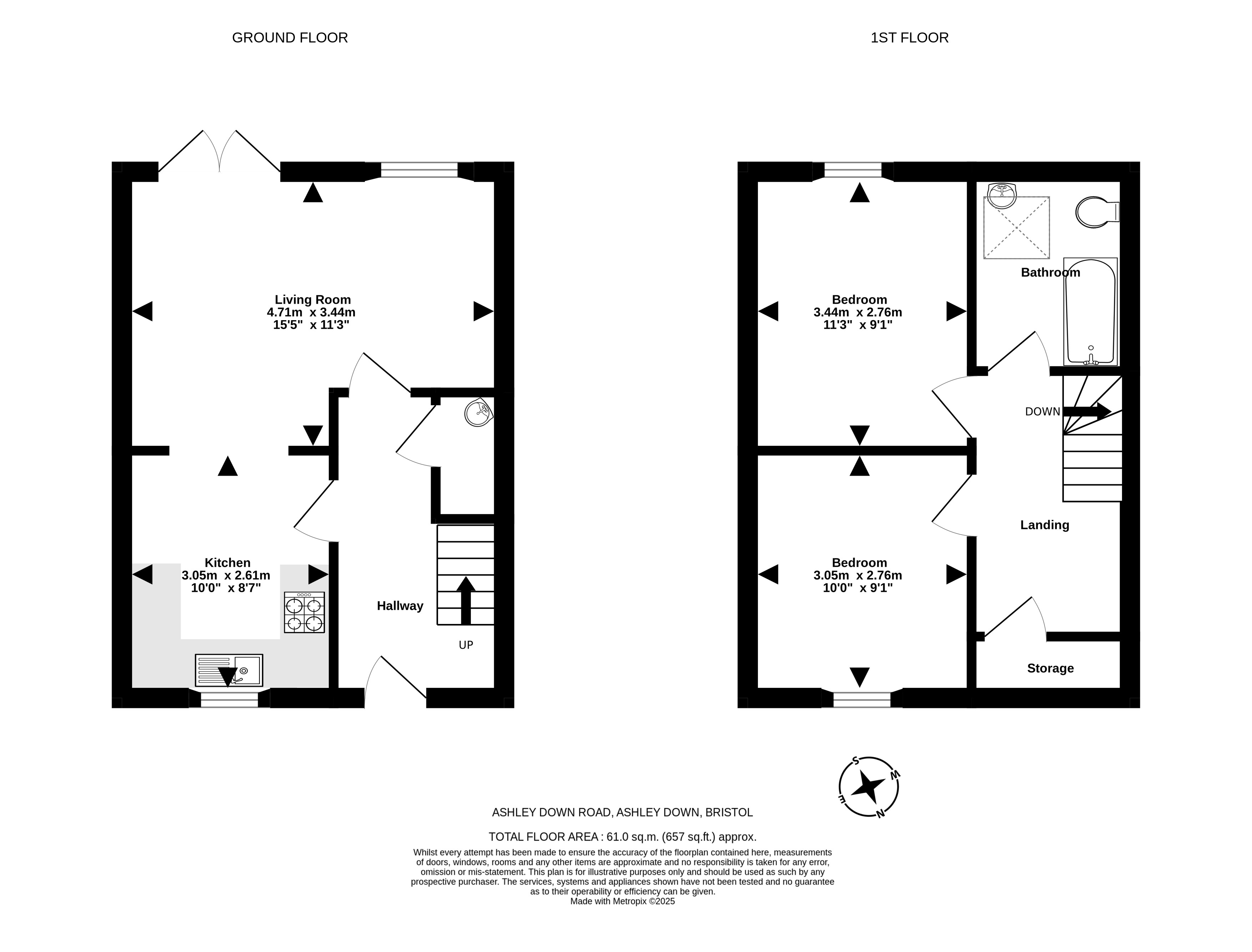
2 bed semi-detached house

Bedrooms

2

Living Rooms

1

Bathrooms

1

Tucked away from the hustle and bustle, this strikingly modern semi-detached home can be found down a quiet alcove in the heart of Ashley Down.

Key features

  • Semi-detached two-bedroom house
  • No-onward chain
  • Contemporary and modern interior
  • Spacious South-facing garden
  • Allocated parking
  • Walking distance to Gloucester Road
  • 100m to Ashley Down primary school
  • Excellent transport links into the City centre and further afield
  • EPC - C

Detail

Peaceful and calm yet close to the hub of BS7; this is a true gem of a house - and you would never know that you are minutes from the hustle and bustle of Gloucester Road. We adore the light and airy interior, with it's modern flooring and neutral kitchen design, making this a classy and elegant home. The open plan reception leads onto the south-facing garden with its low maintenance aesthetic and flexible functionality. The wide, double doors open up, linking together the inside and out, making it feel like one large, interconnected space. We love it.

Similar properties

Bishopston

Area guide
Bishopston Sales
201 Gloucester Rd, Bishopston, Bristol, BS7 8BG
We’re open...

Sunday

Monday

Tuesday

Wednesday

Thursday

Friday

Saturday

Closed

09:00 - 18.00

09:00 - 18.00

09:00 - 18.00

09:00 - 18.00

09:00 - 18.00

09.00 - 16.00