Skip to content
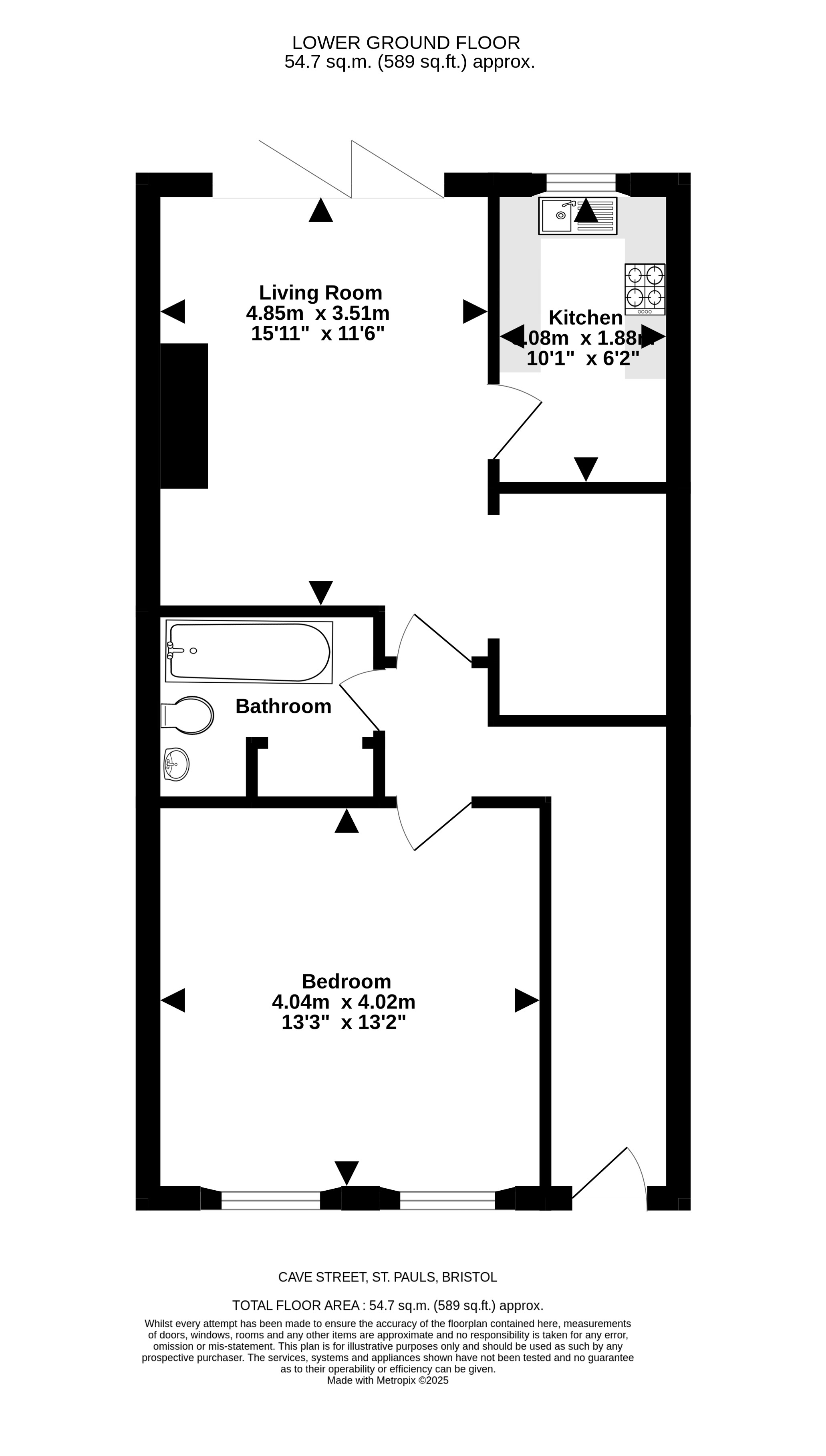
Cave Street
Central Bristol, BS2

Sold STC

£245,000

1 bed apartment / flat

Bedrooms

1

Living Rooms

1

Bathrooms

1

A stones throw away from the historic Portland Square, this garden flat set within a grand Georgian building is a home that provides comfort and space in an ever happening location.

Key features

  • No onward-chain
  • Attractive garden flat with it's own private entrance
  • Double glazed period windows and bi-fold doors
  • Excellent central Bristol location
  • Less than 10 minutes walk to Bristol City Centre
  • Short walk to Cabot Circus, Stokes Croft and Gloucester Road
  • EPC - D

Detail

Tucked away on Cave Street, just a stones throw from Bristol's iconic Portland Square you will find this charming one-bedroom garden flat. Inside you are welcomed by a spacious entrance hallway leading to the main living area which also has a large separate alcove perfect as a dining area or spacious home work space. A cosy and welcoming area, with bi-folding doors that...

Similar properties

Bishopston Sales
201 Gloucester Rd, Bishopston, Bristol, BS7 8BG
We’re open...

Sunday

Monday

Tuesday

Wednesday

Thursday

Friday

Saturday

Closed

09:00 - 18.00

09:00 - 18.00

09:00 - 18.00

09:00 - 18.00

09:00 - 18.00

09.00 - 16.00