Skip to content
Rolls Lodge
Weston-super-Mare, BS23

£330,000

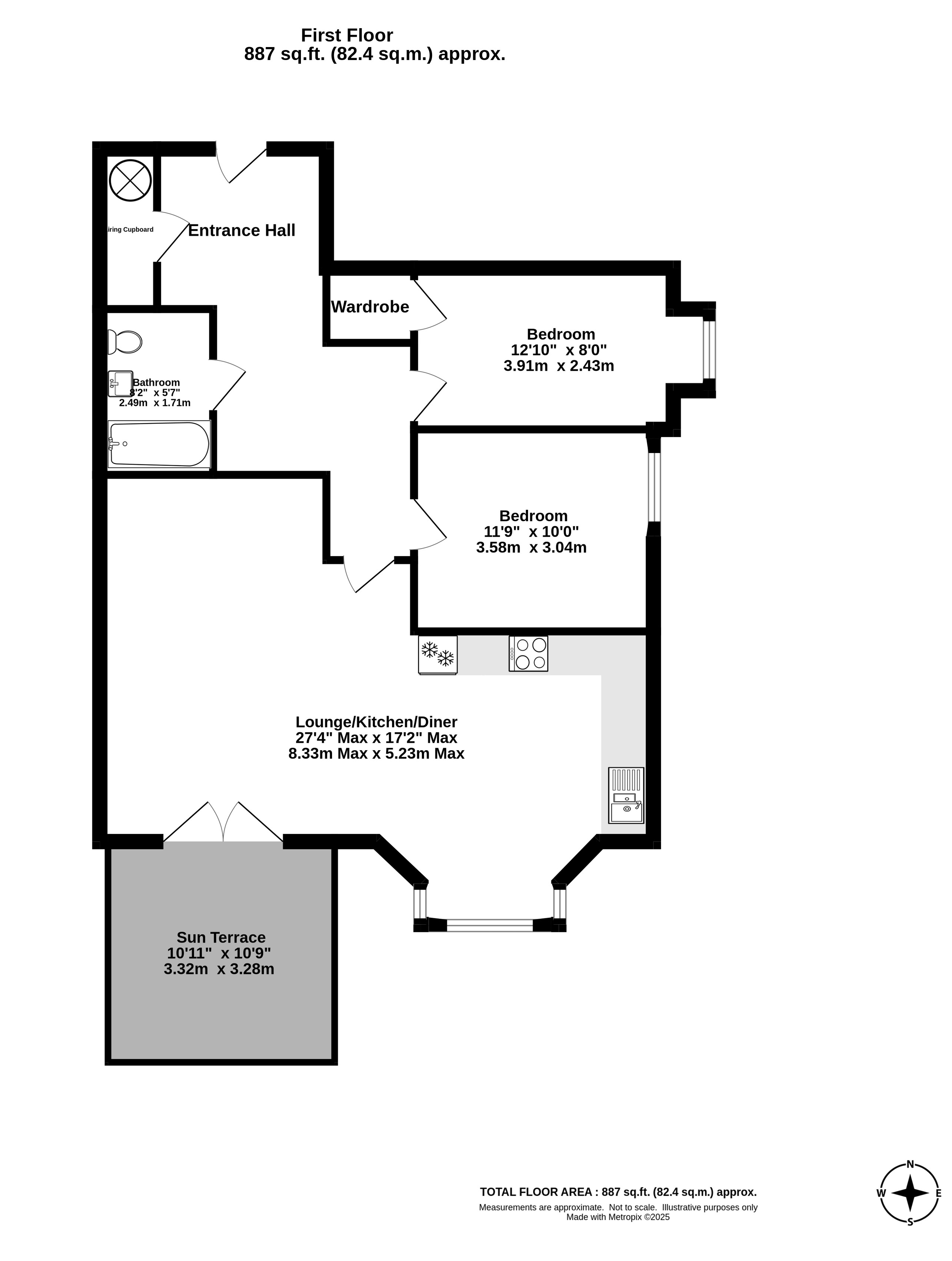
2 bed

Bedrooms

2

Living Rooms

1

Bathrooms

1

A stunning two double bedroom first floor apartment with a very impressive sun terrace with breathtaking Marine Lake and Coastal views.

Key features

  • Rolls Lodge, Paragon Road
  • Front line, seafront apartment
  • Stunning Channel view
  • South facing Alfresco terrace
  • Impressive lounge/diner
  • Beautiful kitchen with fitted appliances
  • Two double bedrooms
  • Allocated parking space
  • First floor

Detail

This wonderful apartment is located in the former Birnbeck Lodge. The building is now named Rolls Lodge after its former use as a holiday home for Rolls Royce staff and guests. This majestic period building was originally built in the 1870s and converted into the current apartments circa 2022/2023. This is an impressive apartment that offers superb South facing vistas a...

Similar properties

Weston-Super-Mare

Area guide
Weston Sales
Suite 57, Pure offices, Pastures Ave, St Georges, Weston-super-Mare, BS22 7SB
We’re open...

Sunday

Monday

Tuesday

Wednesday

Thursday

Friday

Saturday

Closed

09:00 - 18.00

09:00 - 18.00

09:00 - 18.00

09:00 - 18.00

09:00 - 18.00

09.00 - 16.00