Skip to content
Woodlands Court
Shirehampton, Bristol, BS11

£185,000

1 bed apartment / flat

Bedrooms

1

Living Rooms

1

Bathrooms

1

A beautifully finished ground floor apartment in a sought after location close to both Shirehampton village and The Cotswold Estate with no onward chain.

Key features

  • No onward chain
  • Beautifully presented throughout
  • Ground floor apartment
  • Allocated parking space
  • Sought after location
  • Well kept communal gardens

Detail

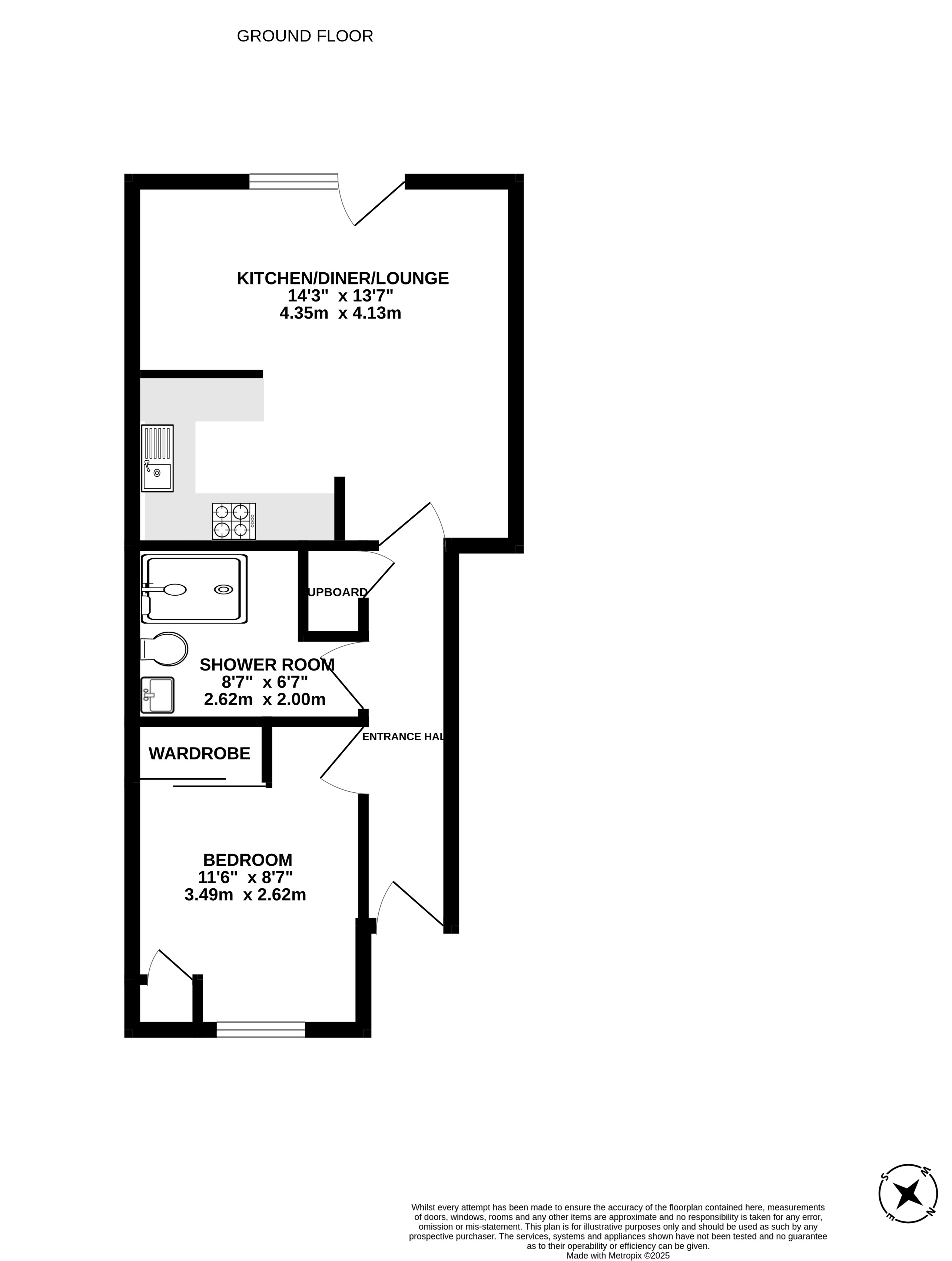
This lovely apartment offers an open plan living space with a fully fitted kitchen, offering ample storage and worktop space. The lounge area offers good space and has patio doors that lead onto a private patio which is open to the communal gardens. There is a double bedroom with a fitted wardrobes and an internal bathroom that, like the rest of the apartment, has been finished to a high standard with a walk-in shower.

Similar properties

Shirehampton

Area guide
Shirehampton Sales
14-16 High Street, Shirehampton, Bristol, BS11 0DP
We’re open...

Sunday

Monday

Tuesday

Wednesday

Thursday

Friday

Saturday

Closed

09:00 - 18.00

09:00 - 18.00

09:00 - 18.00

09:00 - 18.00

09:00 - 18.00

09.00 - 16.00