Skip to content
Crownleaze
Soundwell, Bristol, BS16

Sold STC

£270,000

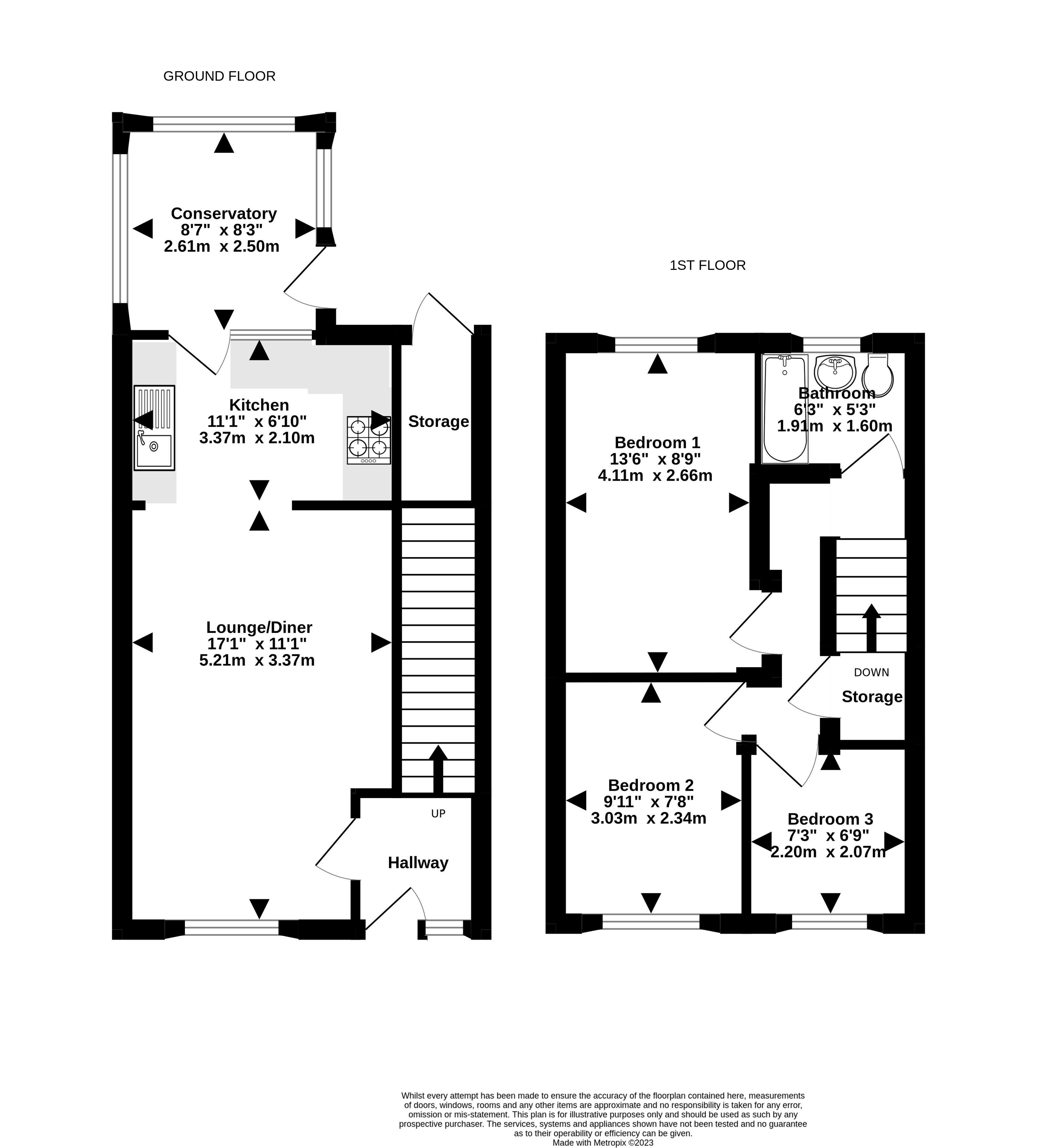
3 bed terraced house

Bedrooms

3

Living Rooms

1

Bathrooms

1

New to the market is this well proportioned 3 bedroom mid terrace property in Staple Hill, BS16.

Key features

  • Driveway for x2 vehicles
  • Good sized rear garden
  • Great location
  • Well maintained
  • Additional storage
  • EPC - E
  • Floor area -

Detail

Being sold with no onward chain this well maintained 3 bedroom mid terrace property situated in the heart of Staple Hill comes to the market offering a great opportunity as an ideal family home or investment purchase. To the ground floor the property consists of a small hallway upon entrance which leads you to a spacious living/dining room with great dual aspect nat...

Similar properties

Downend Sales
11a Badminton Road, Downend, Bristol, BS16 6BD
We’re open...

Sunday

Monday

Tuesday

Wednesday

Thursday

Friday

Saturday

Closed

09:00 - 18.00

09:00 - 18.00

09:00 - 18.00

09:00 - 18.00

09:00 - 18.00

09.00 - 16.00