Wright Way
                
                    Stoke Park, Bristol, BS16
                
                £6,080 pcm
8 bed house
8
2
***STUDENT PROPERTY *** 8 double bedrooms student property 5 min walk from University of the West of England. Bills included - Move in July 2026.
Key features
- Bills Included
 - 900mb Internet Speed
 
- Close to UWE
 
Detail
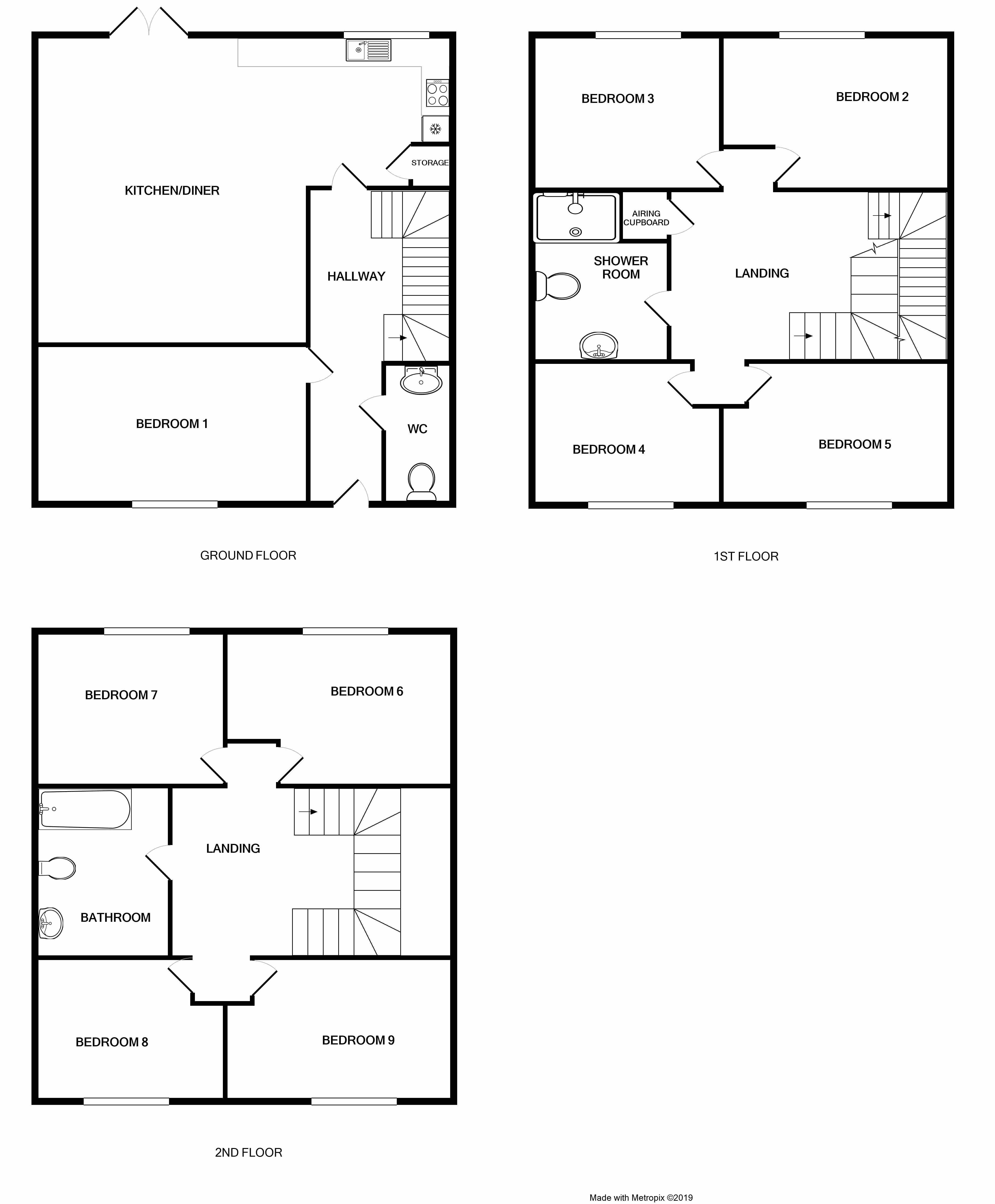
*** STUDENT PROPERTY *** A fantastic opportunity to let this modern, very rare EIGHT double bedroom town house. This property comprises of a kitchen/ living room, downstairs w/c as well as two communal bathrooms and nine double bedrooms!! This superb property is offered on a fully furnished basis, with additional benefits such as: double glazing, gas central heati...
Useful tools
Useful guides
Similar properties
Bradley Stoke Lettings 
                            
                                Unit 7 Willow Brook Centre, Savages Wood Road, Bradley Stoke, Bristol, BS32 8BS
                            
                        We’re open...
                    Sunday
Monday
Tuesday
Wednesday
Thursday
Friday
Saturday
Closed
09:00 - 18.00
09:00 - 18.00
09:00 - 18.00
09:00 - 18.00
09:00 - 18.00
09.00 - 16.00