This immaculate one-bedroom flat is to let and is in the popular Southville area of Bristol, ideally suited to singles or couples seeking a well-presented urban home close to the Harbourside.
Set within an urban location approximately two minutes from Wapping Wharf, the property offers convenient access to Bristol’s vibrant waterfront, with its range of restaurants,...
This immaculate one-bedroom flat is to let and is in the popular Southville area of Bristol, ideally suited to singles or couples seeking a well-presented urban home close to the Harbourside.
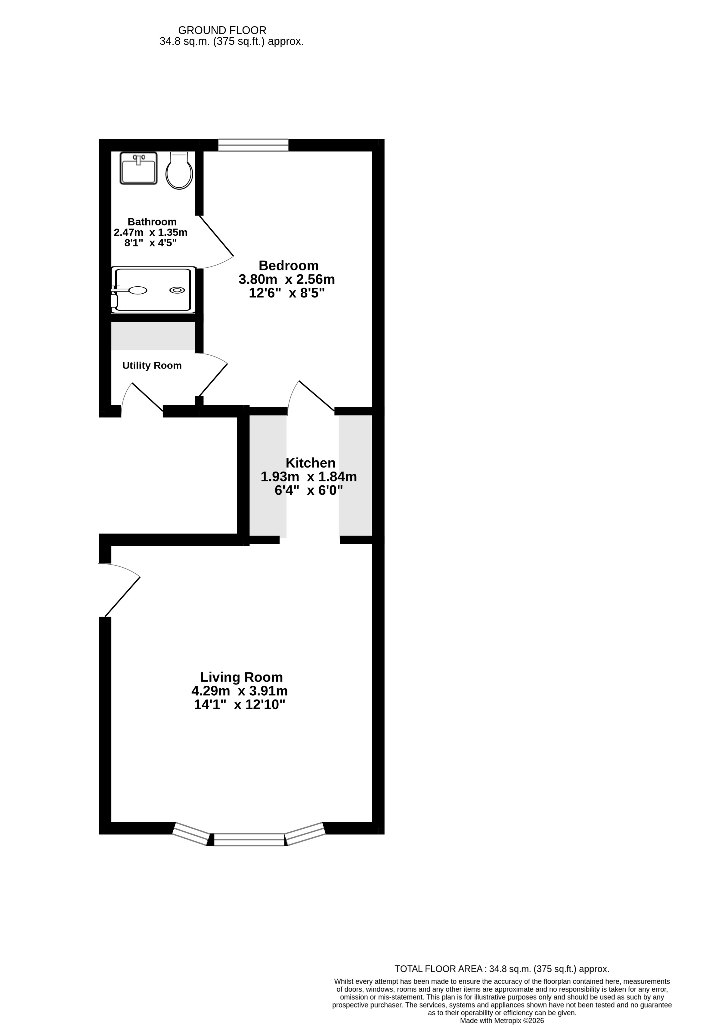
Set within an urban location approximately two minutes from Wapping Wharf, the property offers convenient access to Bristol’s vibrant waterfront, with its range of restaurants, cafés and independent retailers. The open-plan reception room features large windows and a river view, providing a bright, attractive living and dining space. There is one double bedroom and a contemporary bathroom fitted with a rain shower. The property also benefits from communal parking, an EPC rating of D and Council Tax Band A.
Southville is well known for its independent shops, bars and eateries along nearby North Street, as well as green spaces and walking routes along the River Avon. The Wapping Wharf area and Bristol Harbourside offer further leisure, cultural and dining options within easy walking distance.
Public transport connections are accessible, with Bristol Temple Meads station reachable by bus or on foot for many commuters, offering routes to London Paddington in around 1 hour 40 minutes and regular services to Bath, Cardiff and the wider region. Local bus services operate along main routes into the city centre and surrounding districts.
This one-bedroom flat to let represents an appealing opportunity for those seeking an immaculate, well-situated home in Southville with river views and excellent access to Bristol’s harbourside amenities.
Material facts (Parts A + B) information correct as of DATE: 10/02/2026
– Council tax band – A
– Energy rating – D
– Holding deposit – £1384
– Damage deposit – £276
– What floor is the property situated? - Hall Floor
– Parking – Communal & Residents permit - costs apply, subject to availability through council
– Headlease – n/a
– Utilities – Electric / Water on a meter
– Utility restrictions – n/a
– Heating source – GAS
– Indoor Phone coverage (source Ofcom) graded Likely, Limited or None – EE limited, Vodafone limited, Three likely, O2 likely
– Broadband download speed and supply type (source Ofcom) – Standard up to 7 mbps and Ultrafast up to 1000 mbps
– Building Material type – Brick
– Lift access – n/a
Material facts (Part C)
– Building Safety – Known issues/details of any works? n/a
– Restrictions and Rights – not known at this time. Please ask agent
– Rights and Easements - not known at this time. Please ask agent
– Flood and Erosion in last 5 years - not known at this time. Please ask agent
– Planning Permissions - not known at this time. Please ask agent
– Property accessibility/adaptations - not known at this time. Please ask agent
– Coalfield or Mining – not known at this time. Please ask agent