Skip to content
Bishopsworth Road
Bedminster Down, Bristol, BS13

Let agreed

£1,400 pcm

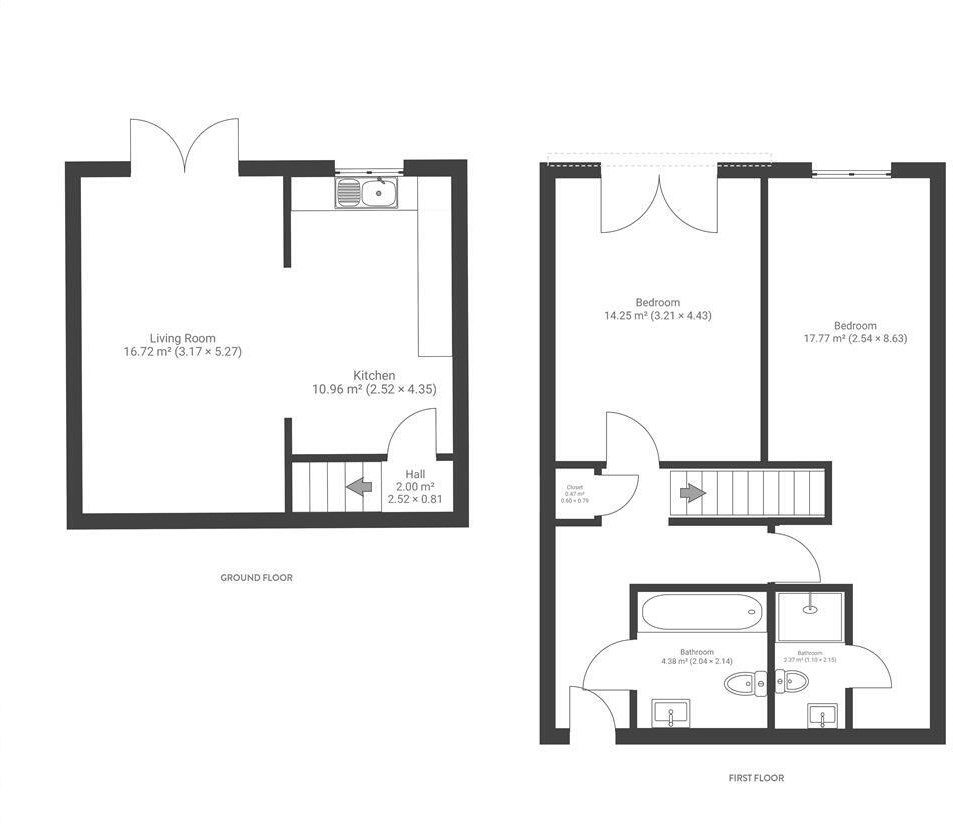
2 bed maisonette

Bedrooms

2

Living Rooms

1

Bathrooms

2

Ocean present a two-storey maisonette located in the gated Valley Heights development. The flat is very spacious and is ready to move in immediatly. On the top floor you have two double bedrooms which overlook the garden. There are two bathrooms in this property with the master bedroom being service by an en-suite. Downstairs there is a large open planned living space with french doors leading out to the large patio garden space. The flat is located at the rear of the development and backs onto a sloping forest area. The flat has intercom and comes with an allocated parking space in a secure, gated park park.

Key features

  • Secure development with allocated parking
  • Two double bedrooms
  • Large garden

Detail

Ocean present a two-storey maisonette located in the gated Valley Heights development. The flat is very spacious and is ready to move in immediatly. On the top floor you have two double bedrooms which overlook the garden. There are two bathrooms in this property with the master bedroom being service by an en-suite. Downstairs there is a large open planned living space w...

Similar properties

Bedminster Down

Area guide
Southville Lettings
275 North St, Bristol, BS3 1JN
We’re open...

Sunday

Monday

Tuesday

Wednesday

Thursday

Friday

Saturday

Closed

09:00 - 18.00

09:00 - 18.00

09:00 - 18.00

09:00 - 18.00

09:00 - 18.00

09.00 - 16.00