This spacious Victorian semi-detached student property is arranged over three floors and offers six bedrooms, making it ideal for a group of students for the 26/27 academic year. Located within easy reach of Gloucester Road, the city centre, and Montpelier train station, it provides excellent access to shops, cafés, transport links, and university bus routes.
The g...
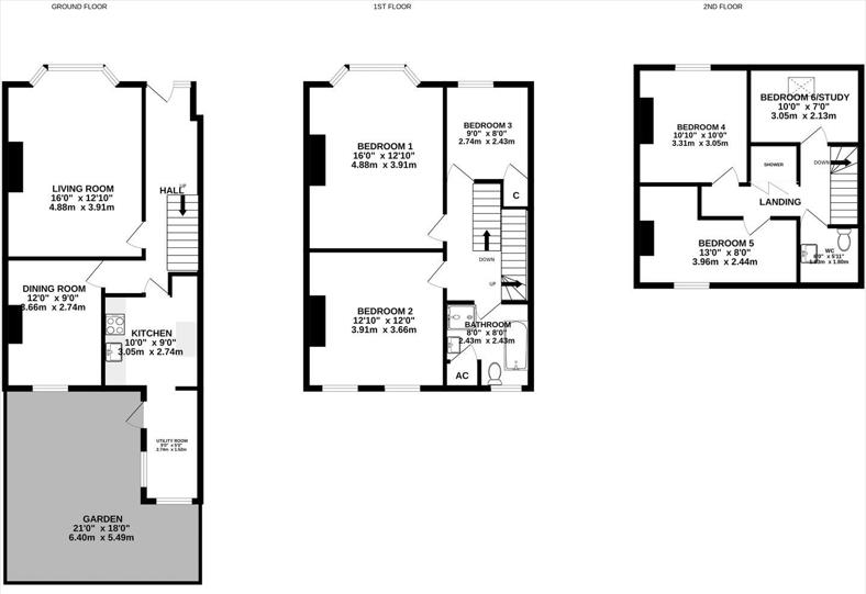
This spacious Victorian semi-detached student property is arranged over three floors and offers six bedrooms, making it ideal for a group of students for the 26/27 academic year. Located within easy reach of Gloucester Road, the city centre, and Montpelier train station, it provides excellent access to shops, cafés, transport links, and university bus routes.
The ground floor includes an entrance hall, two bright reception rooms perfect for social space or study areas, a fitted kitchen, and a separate utility room. The first floor features three double bedrooms and a bathroom, with stairs leading to the top floor where you’ll find three further bedrooms (one being a single), a shower room, and a cloakroom. Upper-floor rooms benefit from elevated views across the city.
Additional features include double glazing throughout, gas central heating, and an enclosed rear garden ideal for outdoor socialising.
Material facts (Parts A + B) information correct as of 19th of November, 2025:
– Council tax band – D (students would need to apply to the council for an exemption)
– Energy rating –
– Holding deposit – £1107
– Damage deposit – £6646 (6 weeks)
– What floor is the property situated? - House
– Parking – On street
– Headlease – no
– Utilities – Gas / Electric / Water on a meter
– Utility restrictions – n/a
– Heating source – Gas central heating
– Indoor Phone coverage (source Ofcom) graded Good, Variable, Poor – All good (EE , Three , O2 , Vodafone)
– Broadband download speed and supply type (source Ofcom) – Standard 19 mbps and Ultrafast 1800 mbps
– Building Material type – Brick
– Lift access – no
Material facts (Part C)
– Building Safety – Known issues/details of any works?
– Restrictions and Rights – not known at this time. Please ask agent
– Rights and Easements - not known at this time. Please ask agent
– Flood and Erosion in last 5 years - not known at this time. Please ask agent
– Planning Permissions - not known at this time. Please ask agent
– Property accessibility/adaptations - not known at this time. Please ask agent
– Coalfield or Mining – not known at this time. Please ask agent