Skip to content
Sandgate Road
Brislington, Bristol, BS4

Let agreed

£1,800 pcm

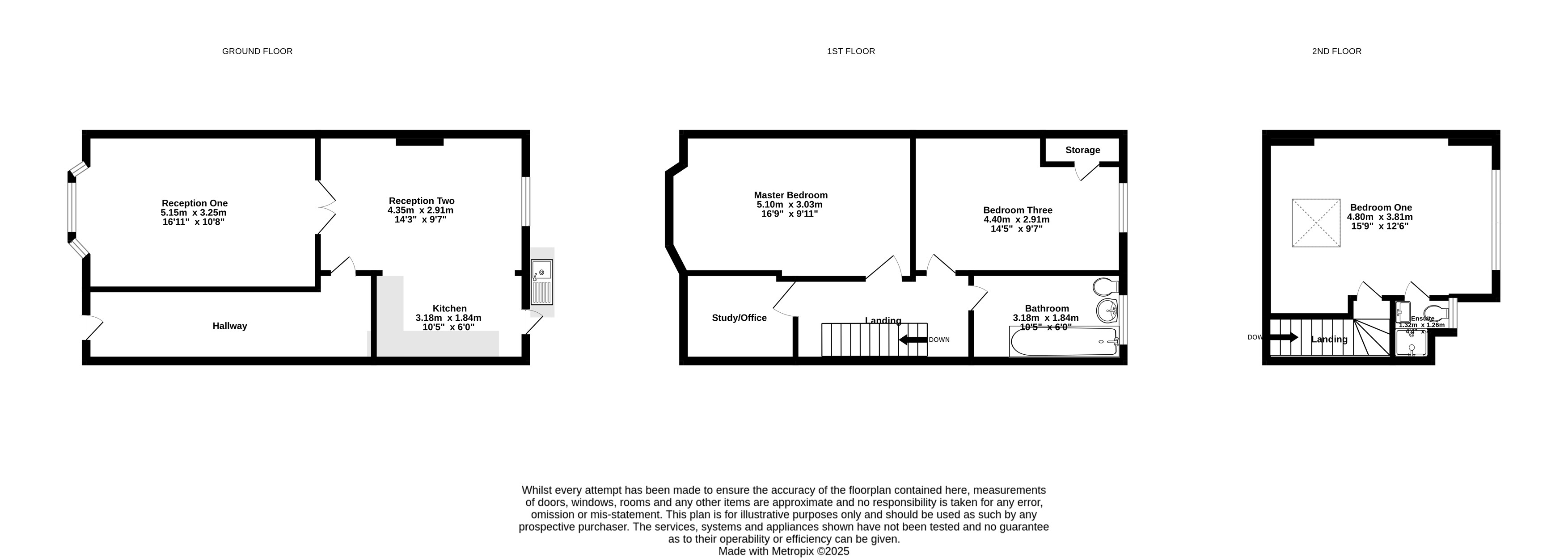
3 bed terraced

Bedrooms

3

Living Rooms

2

Bathrooms

2

***THREE SHARERS WELCOME*** A well-maintained three-bedroom terraced home on Sandgate Road, featuring an en-suite, stylish main bathroom, open-plan kitchen, two spacious reception rooms with garden access, and excellent transport and cycling links—ideal for sharers seeking convenience and comfort.

Key features

  • Three sharers welcome
  • Three double bedroom
  • Home office

Detail

Presenting to let, a well-maintained terraced property situated on Sandgate Road in Brislington This delightful home is offered will be undergoing some minor renovatrions and is ideally suited for sharers seeking convenient access to public transport links, local amenities, and excellent cycling routes in this sought-after Bristol location. The property boasts three...

Similar properties

Brislington

Area guide
Southville Lettings
275 North St, Bristol, BS3 1JN
We’re open...

Sunday

Monday

Tuesday

Wednesday

Thursday

Friday

Saturday

Closed

09:00 - 18.00

09:00 - 18.00

09:00 - 18.00

09:00 - 18.00

09:00 - 18.00

09.00 - 16.00