Skip to content
Hawksmoor Lane
Stoke Park, Bristol, BS16

Let agreed

£3,400 pcm

5 bed house

Bedrooms

5

Bathrooms

2

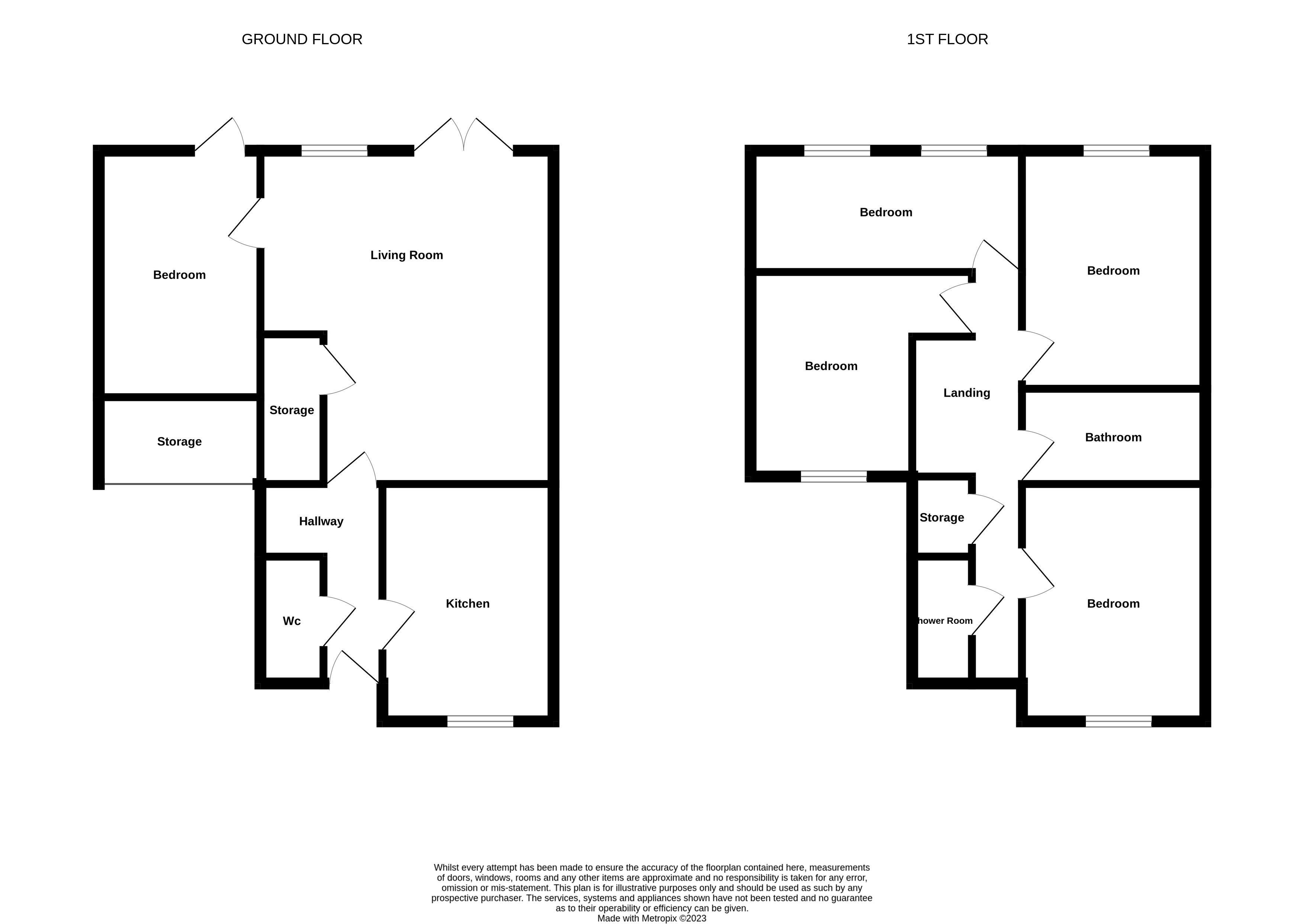
*** STUDENT HOUSE *** A large five bedroom house. Offered on a furnished basis from July. Internet included. A full bills package option is available.

Key features

  • 5 Bedrooms
  • Internet Included
  • Driveway Parking
  • New Kitchen Refusbishment 2026

Detail

*** STUDENT HOUSE *** A large 5 bedroom student house. The property comprises of a downstairs WC, kitchen and separate lounge, four double bedrooms and one single bedroom, one bathroom and one shower room. Additional benefits include; double glazing, gas central heating, garden and furnished. Internet is included but no other bills will be. This property is situated wit...

Similar properties

Bradley Stoke Lettings
Unit 7 Willow Brook Centre, Savages Wood Road, Bradley Stoke, Bristol, BS32 8BS
We’re open...

Sunday

Monday

Tuesday

Wednesday

Thursday

Friday

Saturday

Closed

09:00 - 18.00

09:00 - 18.00

09:00 - 18.00

09:00 - 18.00

09:00 - 18.00

09.00 - 16.00