Skip to content
Slade Baker Way
Stoke Gifford, Bristol, BS16

Let agreed

£3,500 pcm

5 bed semi-detached

Bedrooms

5

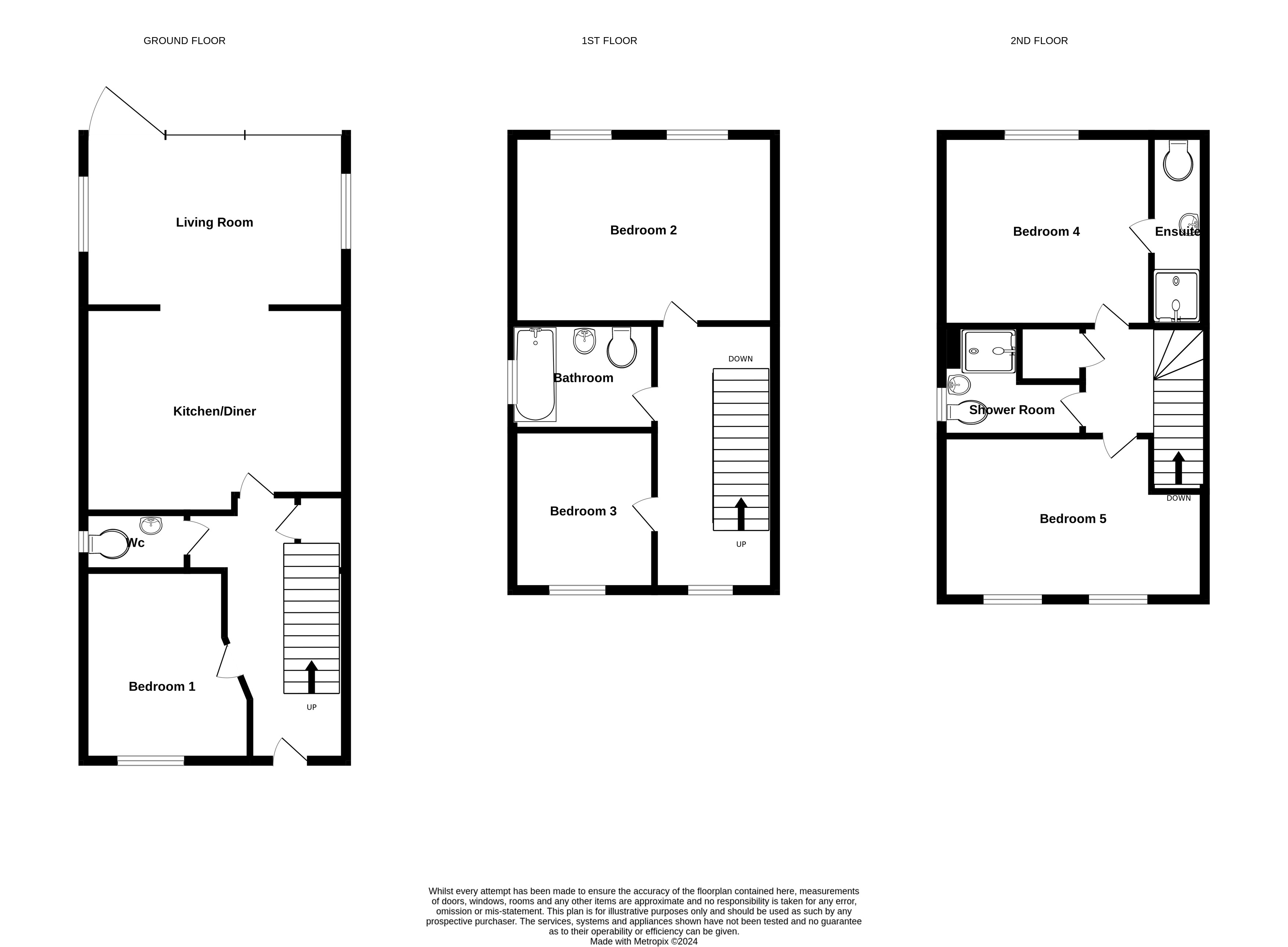
A five bedroom STUDENT house offered on a furnished basis. Available in July, close to UWE. Bills not included.

Key features

  • Five Bedrooms
  • Furnished
  • Parking

Detail

*** STUDENT HOUSE *** A perfect opportunity to rent this fantastic town house in the popular Scholars Chase development. Recently refurbished into a 5 bedroom house, the property comprises of; an open plan kitchen, dining room and living room, W/C, five double bedrooms, one en-suite and two communal bathrooms. The property is offered on a furnished basis and available i...

Similar properties

Stoke Gifford

Area guide
Bradley Stoke Lettings
Unit 7 Willow Brook Centre, Savages Wood Road, Bradley Stoke, Bristol, BS32 8BS
We’re open...

Sunday

Monday

Tuesday

Wednesday

Thursday

Friday

Saturday

Closed

09:00 - 18.00

09:00 - 18.00

09:00 - 18.00

09:00 - 18.00

09:00 - 18.00

09.00 - 16.00