Skip to content
Wood Mead
Stoke Park, Bristol, BS16

£3,800 pcm

5 bed house

Bedrooms

5

Living Rooms

1

Bathrooms

3

** STUDENT HOUSE!!!!! Five bedrooms and fully furnished available for August 2026 - BILLS INCLUDED!!!!

Key features

  • Cheswick Village
  • 5 Bedrooms
  • Student House

Detail

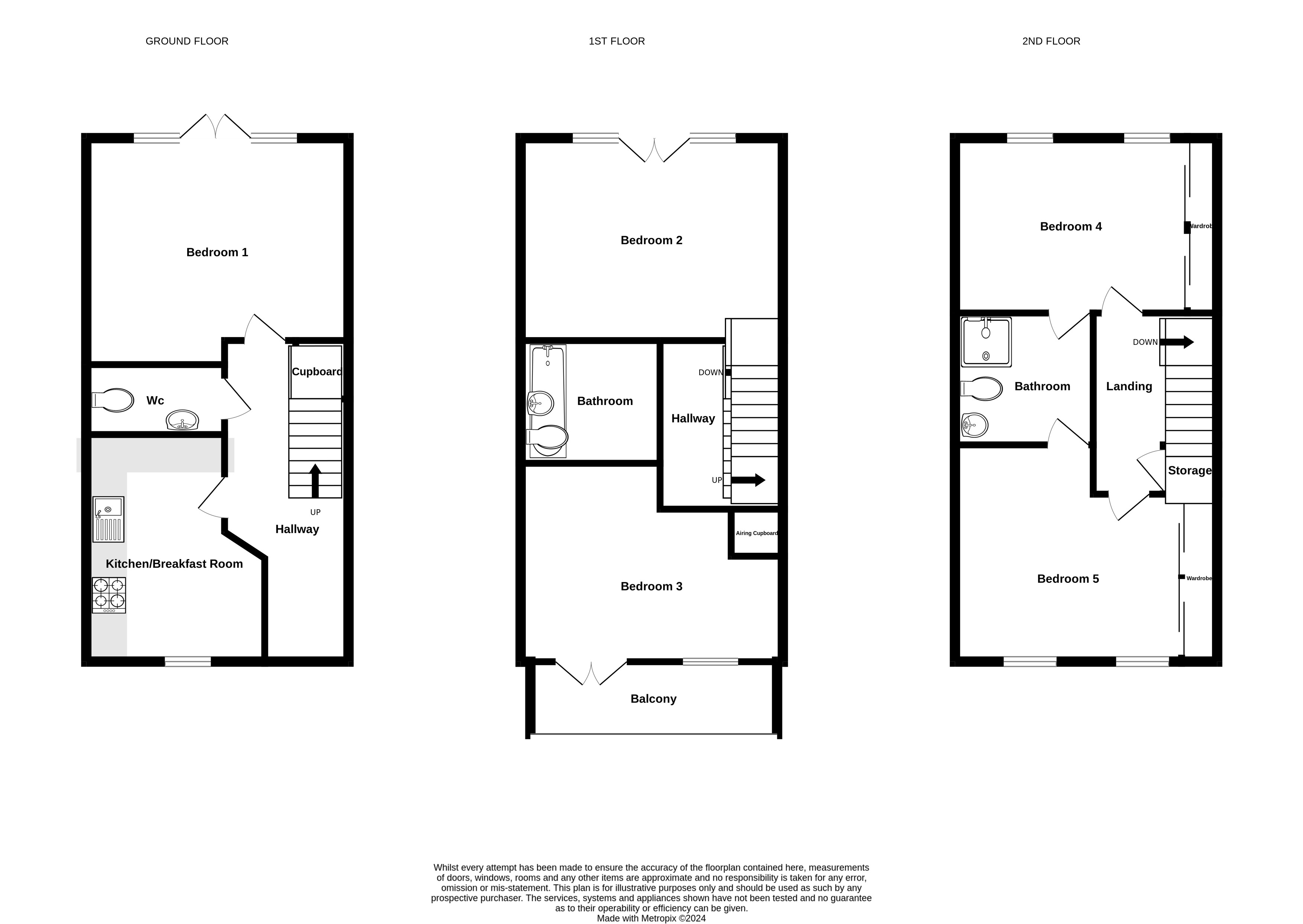
*STUDENT HOUSE* - This 5 double bedroom property is available in August on a fully furnished basis with bills INCLUDED To the ground floor there is the kitchen/ diner, a downstairs WC and the main living area. The doors to the rear garden open from the living room. To the first floor there are two double bedrooms with a bathroom positioned between them and to the top...

Similar properties

Bradley Stoke Lettings
Unit 7 Willow Brook Centre, Savages Wood Road, Bradley Stoke, Bristol, BS32 8BS
We’re open...

Sunday

Monday

Tuesday

Wednesday

Thursday

Friday

Saturday

Closed

09:00 - 18.00

09:00 - 18.00

09:00 - 18.00

09:00 - 18.00

09:00 - 18.00

09.00 - 16.00