Skip to content
Slade Baker Way
Stoke Gifford, Bristol, BS16

Let agreed

£2,940 pcm

4 bed semi-detached

Bedrooms

4

** STUDENT house** located just a 5 minute walk from the University, in new developmet, Scholars Chase. Offered on a furnished basis, available in July 2026. BILLS EXCLUDED

Key features

  • STUDENT HOUSE
  • Four Bedrooms
  • Furnished

Detail

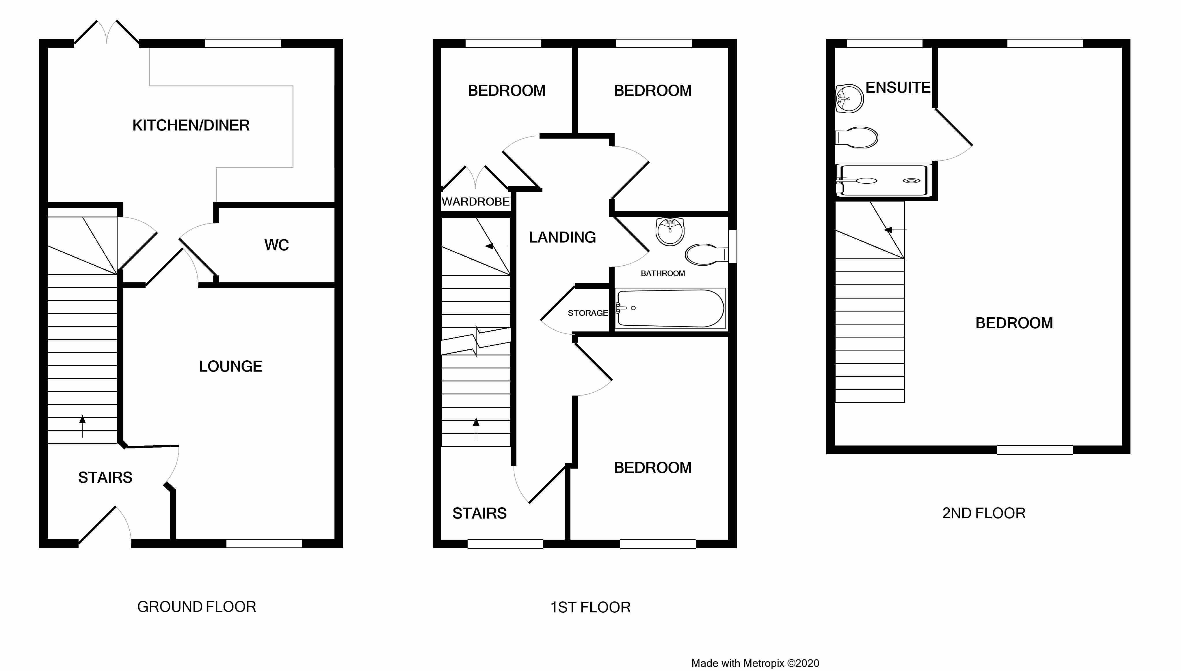
A four bed STUDENT property available just a 5 minute walk from the University. A new semi-detached house in Scholars Chase. The house comprises of living room, kitchen diner and WC downstairs, 3 bedrooms and communal bathroom on the first floor and another bedroom with en-suite on the top floor. Additional benefits include driveway parking, for at least 2 cars. Bills a...

Similar properties

Stoke Gifford

Area guide
Bradley Stoke Lettings
Unit 7 Willow Brook Centre, Savages Wood Road, Bradley Stoke, Bristol, BS32 8BS
We’re open...

Sunday

Monday

Tuesday

Wednesday

Thursday

Friday

Saturday

Closed

09:00 - 18.00

09:00 - 18.00

09:00 - 18.00

09:00 - 18.00

09:00 - 18.00

09.00 - 16.00