Skip to content
Home Leas Close
Stoke Gifford, Bristol, BS16

£3,960 pcm

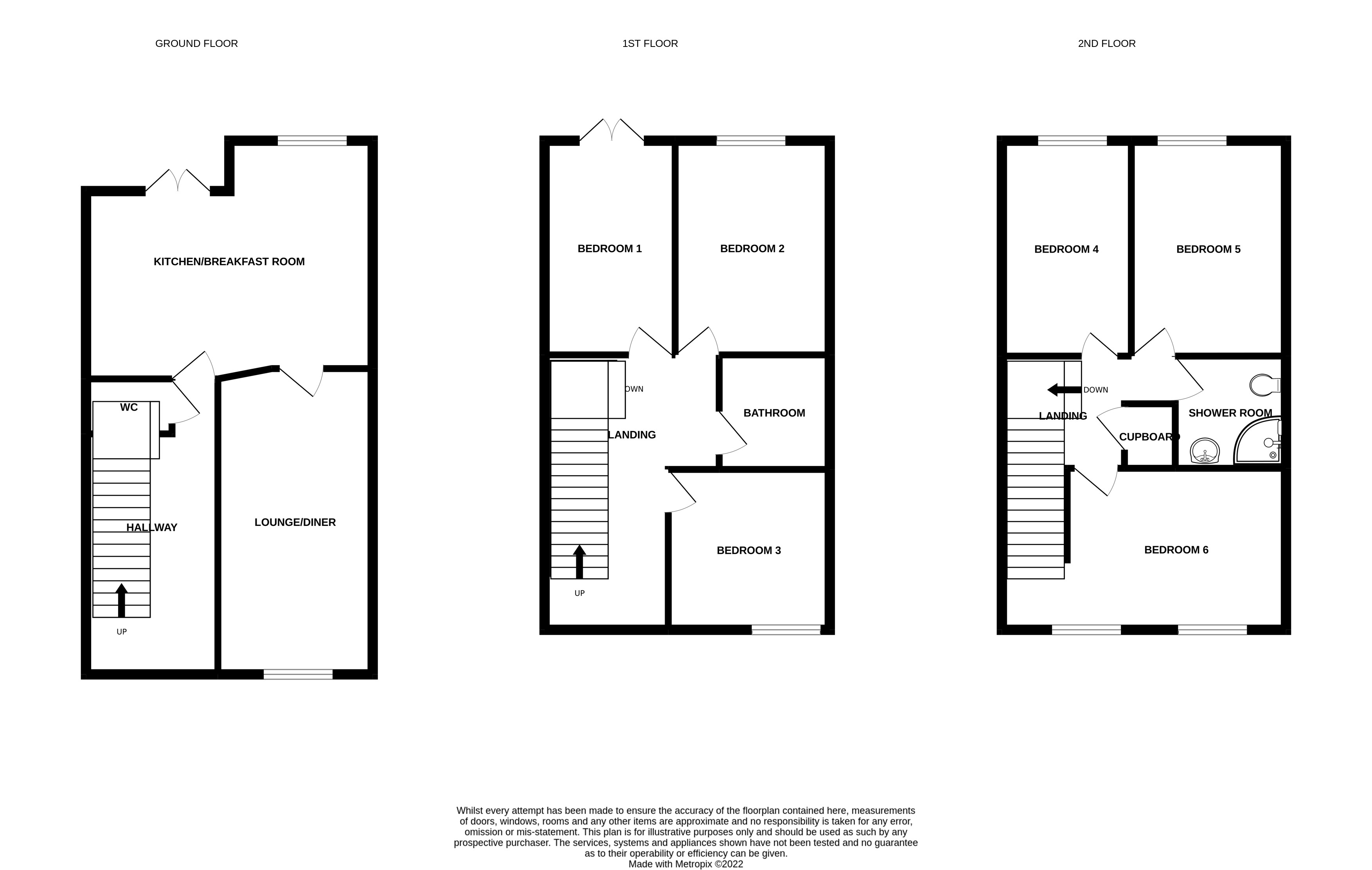
6 bed house

Bedrooms

6

6 Bedroom student property available in September, close to UWE!

Key features

  • Student accomodation
  • Six double bedrooms
  • Fully furnished

Detail

Offered to the market on a fully furnished basis, is this 6 bedroom student property. Bills EXCLUDED The ground floor offers a large kitchen/ breakfast bar area in an 'L' shape, with doors opening onto the rear garden and a door giving access to the living/ dining room. The kitchen is a modern, yet unique style, giving this home a stylish touch. Set over the first an...

Similar properties

Stoke Gifford

Area guide
Bradley Stoke Lettings
Unit 7 Willow Brook Centre, Savages Wood Road, Bradley Stoke, Bristol, BS32 8BS
We’re open...

Sunday

Monday

Tuesday

Wednesday

Thursday

Friday

Saturday

Closed

09:00 - 18.00

09:00 - 18.00

09:00 - 18.00

09:00 - 18.00

09:00 - 18.00

09.00 - 16.00