Nestled between Kingsdown and the City Centre is this beautifully presented one bedroom character property. Ideally positioned for Bristol University and the City Centre yet tucked away from the hustle and bustle.
Offering a private entrance, natural light to all rooms and pleasant front courtyard, this property has been lovingly updated throughout to include oak flo...
Nestled between Kingsdown and the City Centre is this beautifully presented one bedroom character property. Ideally positioned for Bristol University and the City Centre yet tucked away from the hustle and bustle.
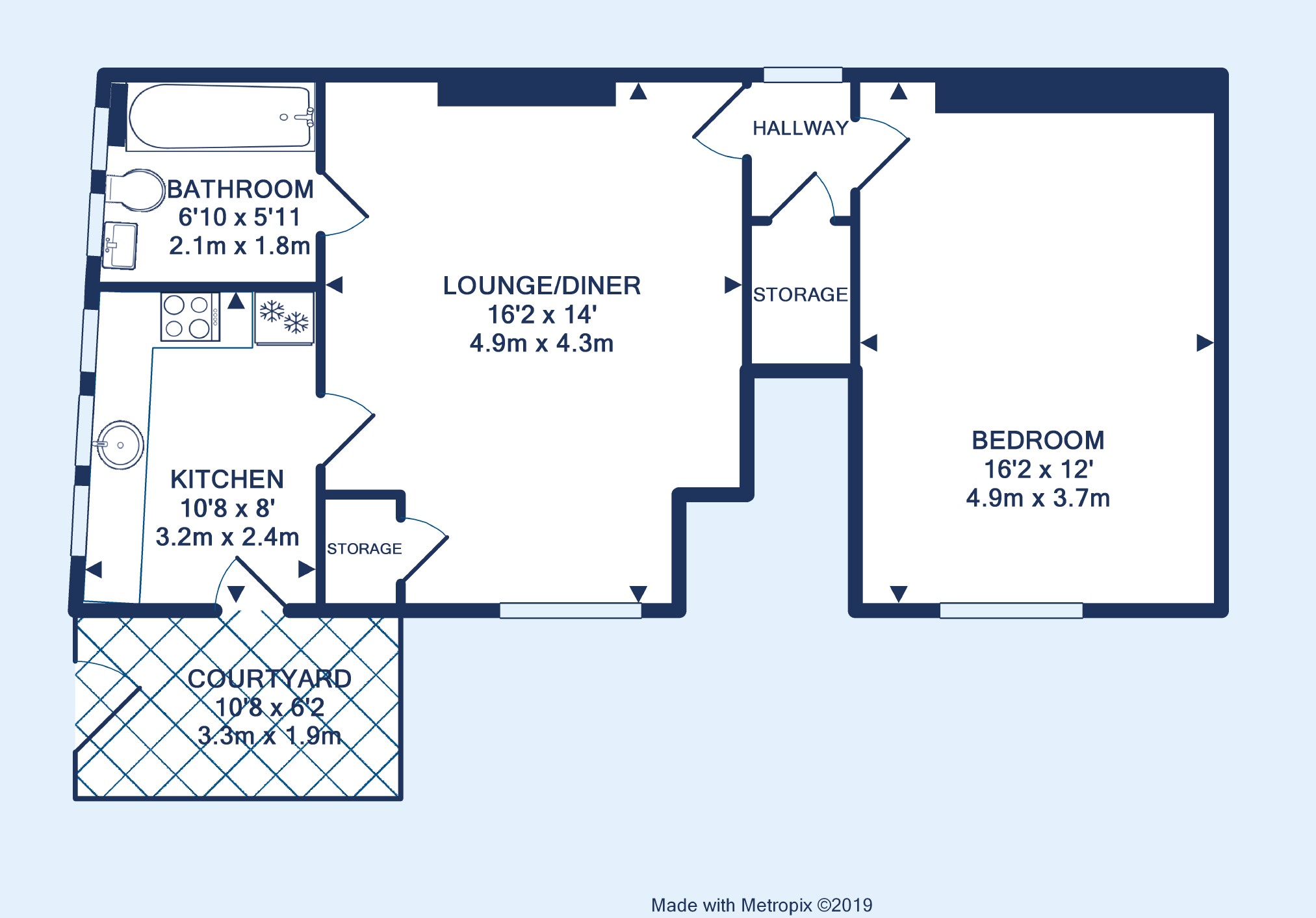
Offering a private entrance, natural light to all rooms and pleasant front courtyard, this property has been lovingly updated throughout to include oak flooring and new timber framed double glazed windows in some rooms.
The modern separate kitchen has integrated appliances and leads to a delightful lounge/diner with period style fireplace, casement window and storage cupboard, modern tiled bathroom with white suite, inner hallway with side window and under stair storage, large bedroom with casement window, period style fireplace and space for wardrobe. Property is set within the Central Parking Zone.
Material facts (Parts A + B) information correct as of 12th Febraury 2026:
– Council tax band –B
– Energy rating – E
– Holding deposit – £300
– Damage deposit – £1,500
– What floor is the property situated? - Ground floor
– Parking – None available. Property has no parking and is in the central parking zone
– Headlease – No
– Utilities – Gas / Electric / Water on a meter
– Utility restrictions – n/a
– Heating source – Gas central heating
– Indoor Phone coverage (source Ofcom) graded Good, Variable or None – EE and Three - Variable. O2 and Vodafone - Good
– Broadband download speed and supply type (source Ofcom) – Standard 16 mbps and Ultrafast 1800 mbps
– Building Material type – Brick
– Lift access – N/a
Material facts (Part C)
– Building Safety – Known issues/details of any works?
– Restrictions and Rights – not known at this time. Please ask agent
– Rights and Easements - not known at this time. Please ask agent
– Flood and Erosion in last 5 years - not known at this time. Please ask agent
– Planning Permissions - not known at this time. Please ask agent
– Property accessibility/adaptations - not known at this time. Please ask agent
– Coalfield or Mining – not known at this time. Please ask agent