Skip to content
Great Clover Leaze
Stoke Gifford, Bristol, BS16

£3,600 pcm

6 bed house

Bedrooms

6

Bathrooms

3

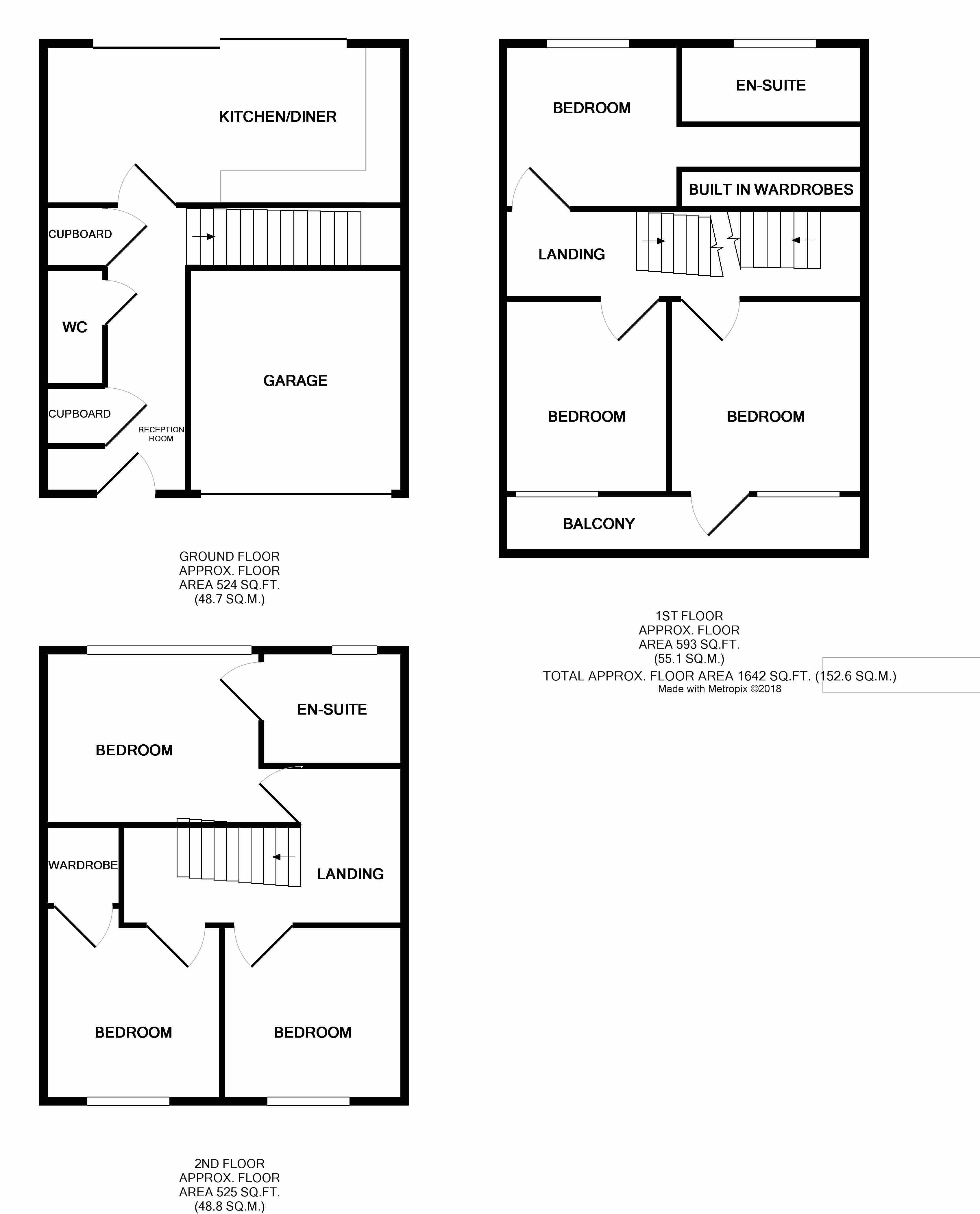
*** STUDENT PROPERTY *** - A superb six bedroom property in a brand new development of Stoke Gifford (close to UWE) on a fully furnished basis with internet included.

Key features

  • Student property
  • Fantastic location
  • Internet Included

Detail

*** STUDENT PROPERTY *** - A superb six bedroom property in a brand new development of Stoke Gifford (close to UWE) on a fully furnished basis. This property comprises of a large kitchen/diner, downstairs wc, six bedrooms (two en suite), family bathroom and garden. Available from August 2026!All billls included! Call now to secure this property! Material facts (Part...

Similar properties

Stoke Gifford

Area guide
Bradley Stoke Lettings
Unit 7 Willow Brook Centre, Savages Wood Road, Bradley Stoke, Bristol, BS32 8BS
We’re open...

Sunday

Monday

Tuesday

Wednesday

Thursday

Friday

Saturday

Closed

09:00 - 18.00

09:00 - 18.00

09:00 - 18.00

09:00 - 18.00

09:00 - 18.00

09.00 - 16.00