Skip to content
Jekyll Close
Stoke Park, Bristol, BS16

£6,240 pcm

8 bed house

Bedrooms

8

Bathrooms

2

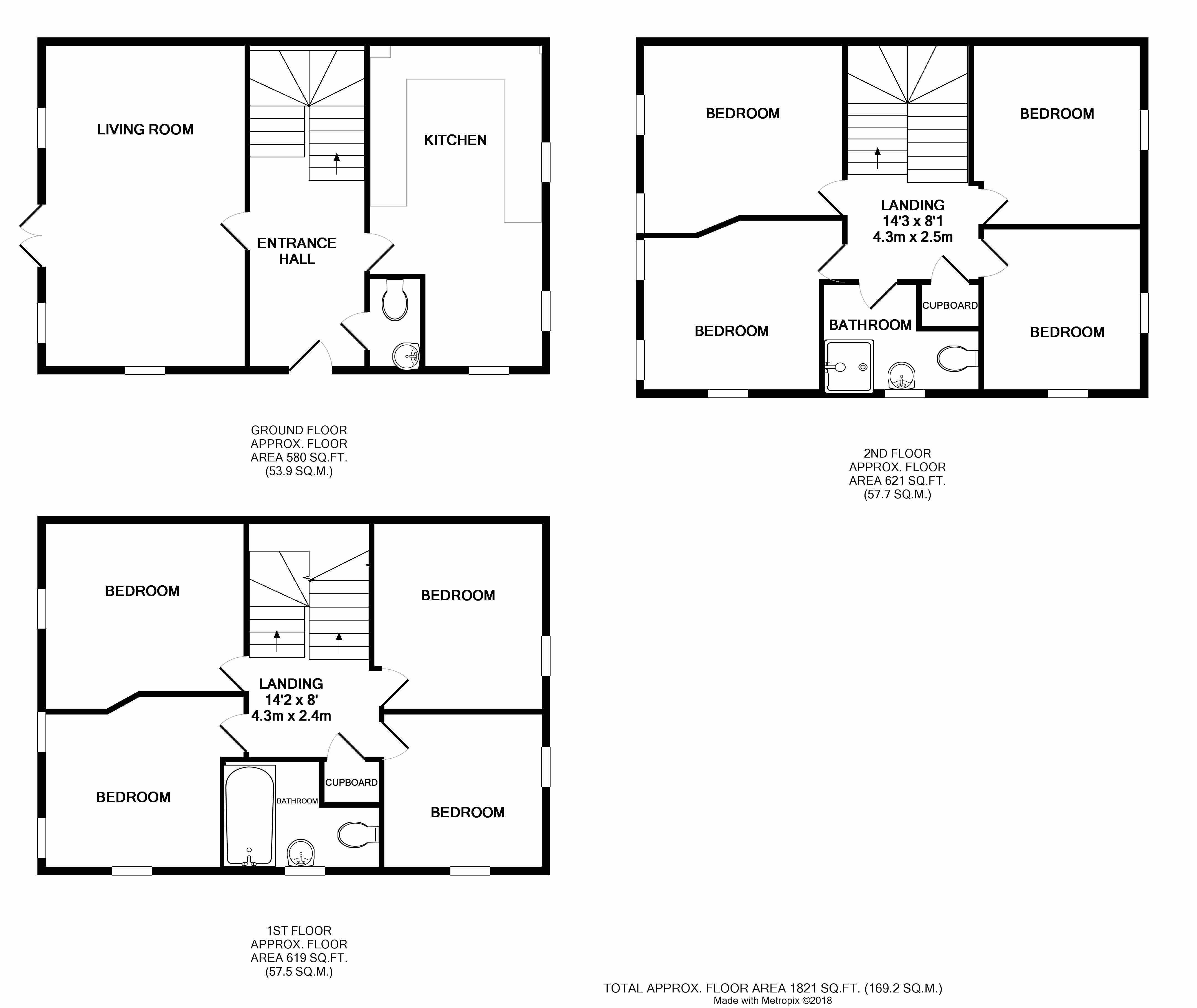
*** STUDENT HOUSE *** 8 Bedroom student property, 5 min walk to University of the West of England. Bills included - Move in July 2026.

Key features

  • Bills Included
  • Eight Bedrooms
  • Two Bathrooms
  • 900mb Internet Speed

Detail

*** STUDENT PROPERTY*** A rare, fully furnished, EIGHT bedroom student home. This exciting property comprises of a serparate living room and kitchen, eight double bedrooms, two bathrooms and a WC. Additional benefits include double glazing, allocated parking in front of the garage (one space), gas central heating and a covered rack in the garden for bikes. BILLS AR...

Similar properties

Bradley Stoke Lettings
Unit 7 Willow Brook Centre, Savages Wood Road, Bradley Stoke, Bristol, BS32 8BS
We’re open...

Sunday

Monday

Tuesday

Wednesday

Thursday

Friday

Saturday

Closed

09:00 - 18.00

09:00 - 18.00

09:00 - 18.00

09:00 - 18.00

09:00 - 18.00

09.00 - 16.00