Skip to content
Foxglove Close
Stoke Gifford, BS34

£4,935 pcm

7 bed house

Bedrooms

7

Bathrooms

2

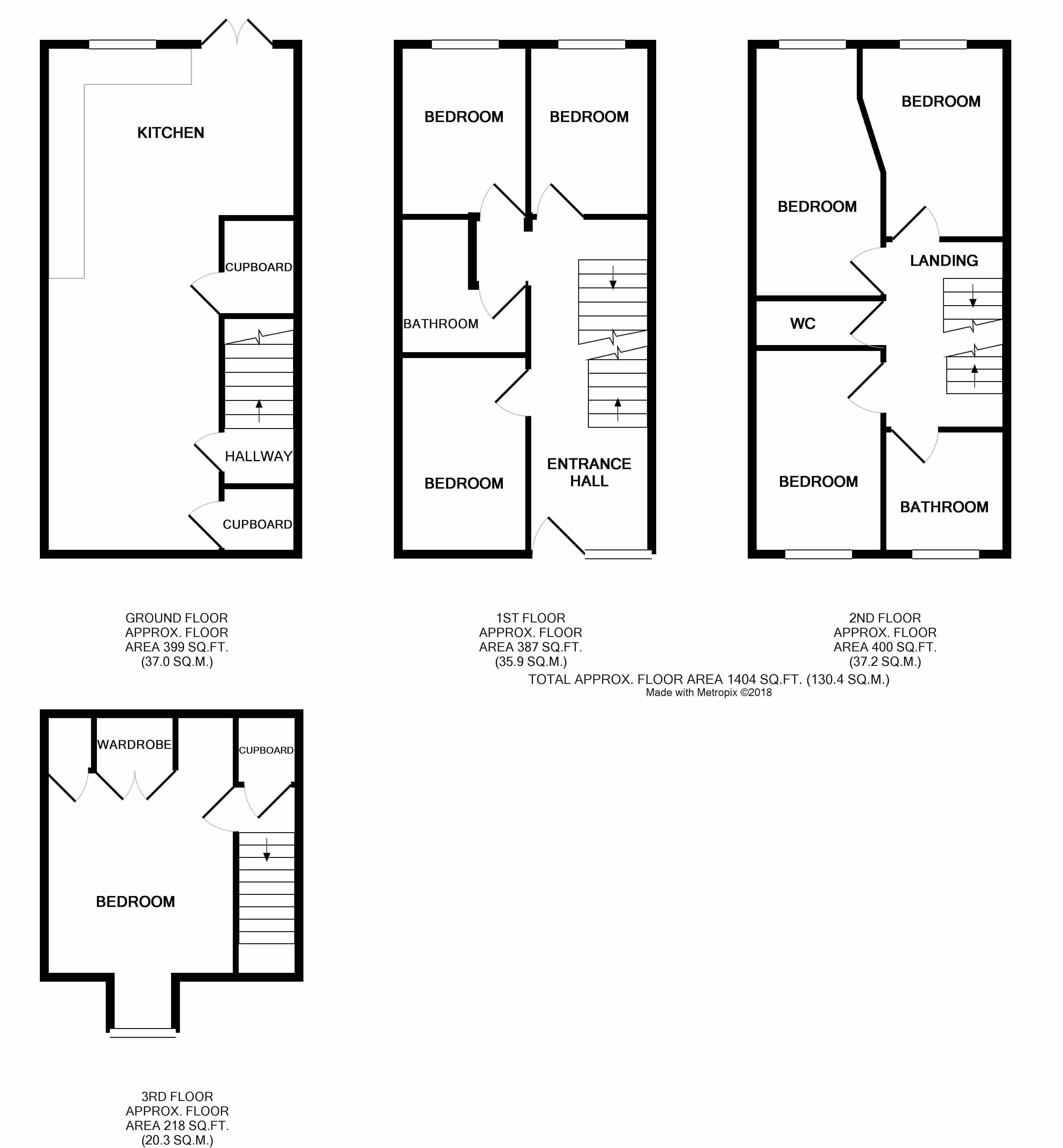
*** STUDENT HOUSE *** 7 Bedroom student property, 10 min walk to University of the West of England. Bills included - Move in July 2026.

Key features

  • Bills Included
  • Furnished
  • Parking and Garage
  • 900mb Internet Speed

Detail

*** STUDENT PROPERTY*** A beautiful, fully furnished, SEVEN bedroom student home. This spacious property comprises of an open plan living room / kitchen, over one whole floor, seven double bedrooms, two bathrooms and a WC. Additional benefits include double glazing, garage included, a parking spot in front of the garage, gas central heating and a lovely garden with...

Similar properties

Stoke Gifford

Area guide
Bradley Stoke Lettings
Unit 7 Willow Brook Centre, Savages Wood Road, Bradley Stoke, Bristol, BS32 8BS
We’re open...

Sunday

Monday

Tuesday

Wednesday

Thursday

Friday

Saturday

Closed

09:00 - 17.30

09:00 - 17.30

09:00 - 17.30

09:00 - 17.30

09:00 - 17.30

09.00 - 16.00