Skip to content
Casson Drive
Stoke Park, Bristol, BS16

Let agreed

£5,400 pcm

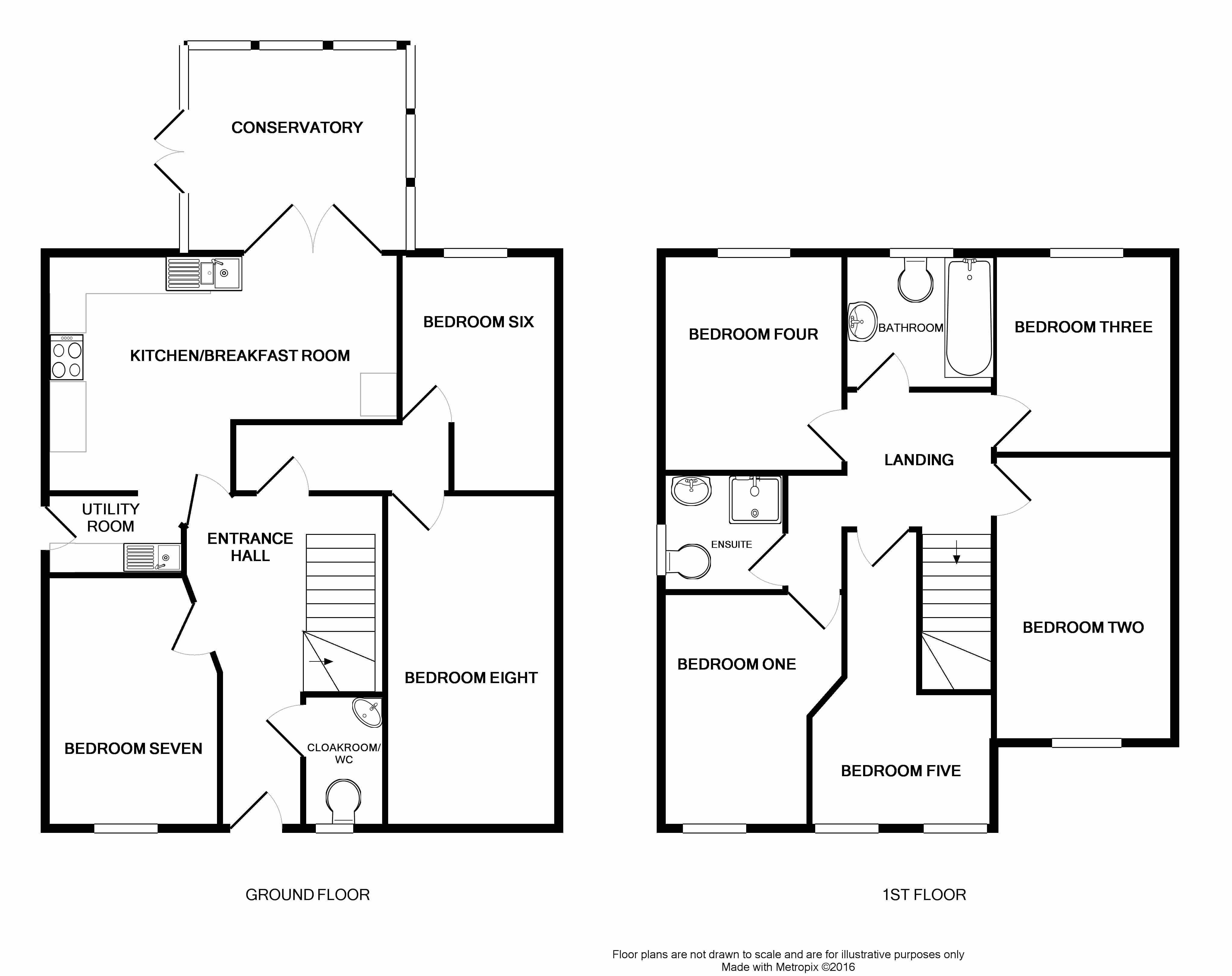
8 bed detached

Bedrooms

8

***STUDENT PROPERTY *** ALL BILLS INCLUDED *** A superb eight bedroom student house offered on a fully furnished basis with bills includedwith bills included. Available from July 2026.

Key features

  • Bills Included
  • Conservatory
  • Superfast Unlimited Fibre Internet

Detail

*** STUDENT PROPERTY *** ALL BILLS INCLUDED *** This fantastic detached home is offered on a fully furnished basis. This spacious property comprises of eight double bedrooms, two bathrooms, separate wc, living room, kitchen and utility room. Additional Benefits of this property - bills are included in the rent (gas, electric, water, TV license and Superfast Unlimite...

Bradley Stoke Lettings
Unit 7 Willow Brook Centre, Savages Wood Road, Bradley Stoke, Bristol, BS32 8BS
We’re open...

Sunday

Monday

Tuesday

Wednesday

Thursday

Friday

Saturday

Closed

09:00 - 18.00

09:00 - 18.00

09:00 - 18.00

09:00 - 18.00

09:00 - 18.00

09.00 - 16.00