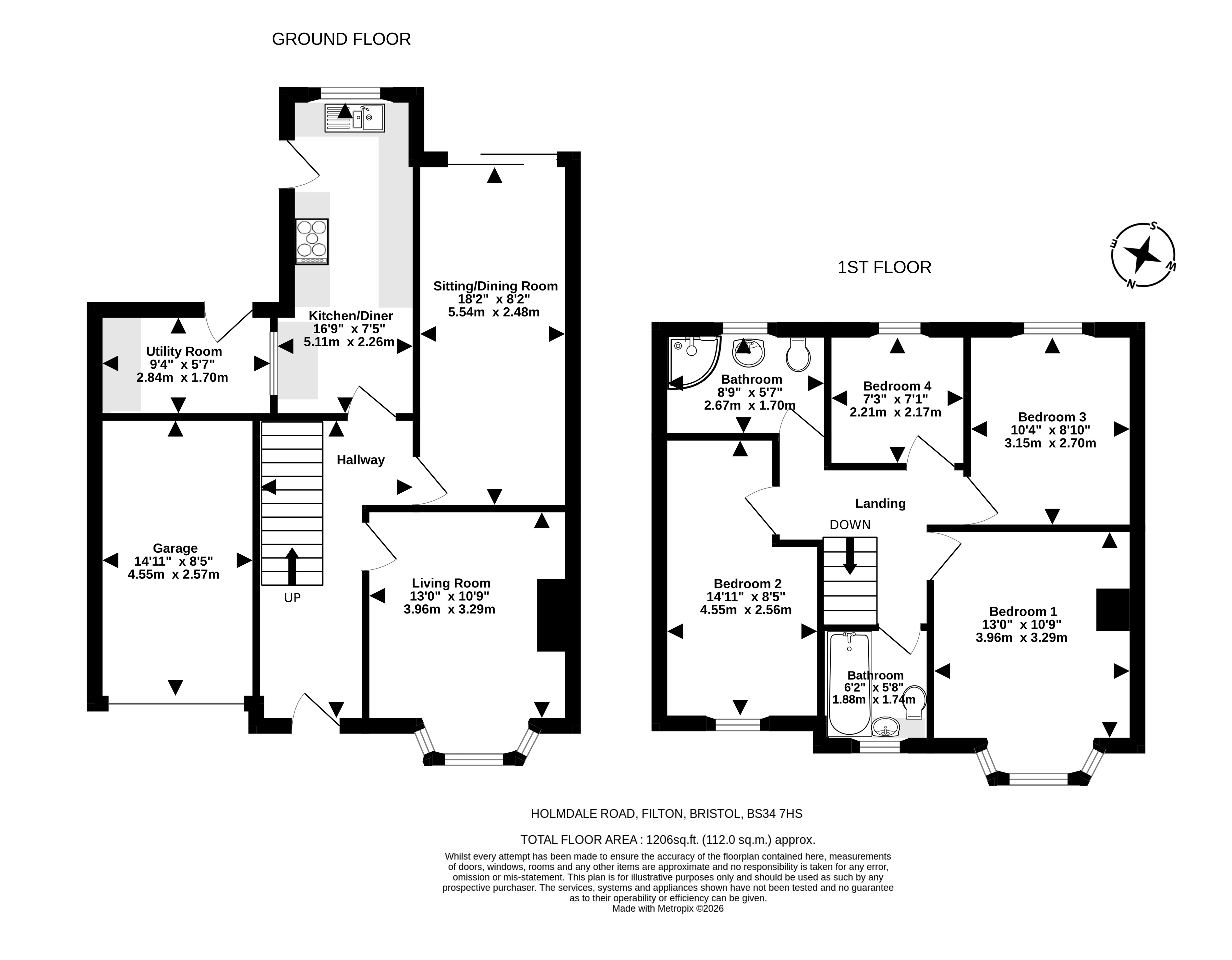
Loving attention has been poured into this four-bedroom home, which has been extended and enhanced to create a welcoming atmosphere. The downstairs has been thoughtfully redesigned. To the right is a sitting room, which boasts a fireplace and an attractive bay window. Further down, both the lounge/dining room, and kitchen have been extended providing two excellent living spaces. The kitchen has a bright palette and benefits from plenty of storage and counterspace. A useful utility room that leads off of the garage can also be found on this level.
Moving upstairs, four good-sized bedrooms provide flexible spaces for growing families, guests or home offices. There are two family bathrooms on this level.
Loving attention has been poured into this four-bedroom home, which has been extended and enhanced to create a welcoming atmosphere. The downstairs has been thoughtfully redesigned. To the right is a sitting room, which boasts a fireplace and an attractive bay window. Further down, both the lounge/dining room, and kitchen have been extended providing two excellent living spaces. The kitchen has a bright palette and benefits from plenty of storage and counterspace. A useful utility room that leads off of the garage can also be found on this level.
Moving upstairs, four good-sized bedrooms provide flexible spaces for growing families, guests or home offices. There are two family bathrooms on this level.
Outside
The garden faces South and enjoys sun throughout the day. As you enter the garden you will find a recently installed composite decking, this then extends onto a beautifully kept lawn area. At the foot of the garden there is an enclosed patio area covered by a wooden pergola, it is the perfect space for entertaining guests. Further features include a garage and a large driveway for two vehicles at the front of the home.
Location
Holmdale Road is a leafy and quiet residential road in Filton. The property is perfectly located close to Cribbs causeway with its vast range of shops and restaurants whilst remaining in close proximity to major employers such as Southmead Hospital, Airbus and The MoD. The new YTL arena which is scheduled to be built on the Brabazon hangars at the former Filton airfield is also a short walk away. The property is also perfectly located close to the green open spaces of Elm Park which is hugely popular with families in the area and boasts an impressive recreational park and swimming pool. Local residents can also enjoy Filton community garden with its array of greenery and peaceful seating area.
We think...
This property partners style with functionality, offering the perfect living space for a large family.
Material information (provided by owner)
Freehold and Council Tax Band B.