Skip to content
Greystoke Gardens
Westbury-on-Trym, Bristol, BS10

Sold STC

£317,500

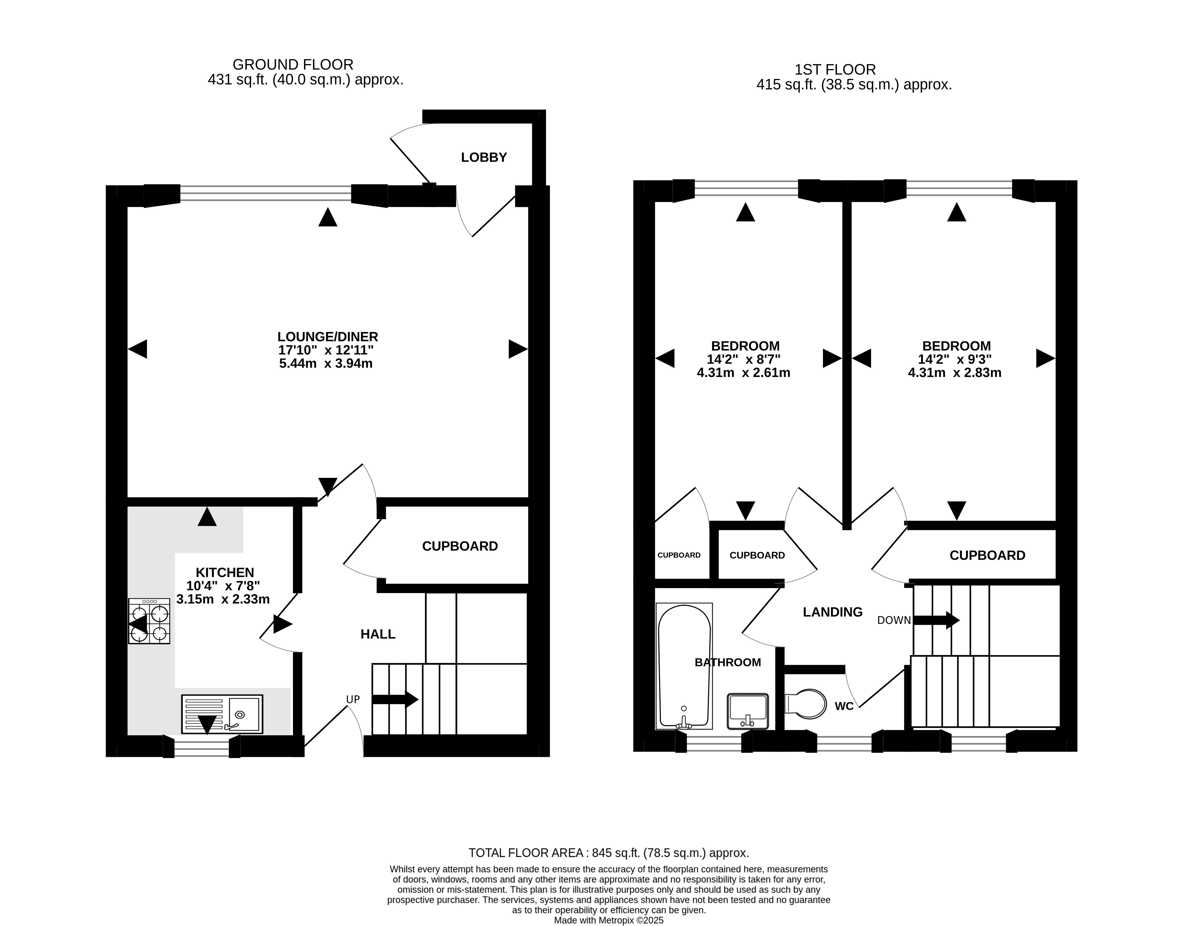
2 bed terraced house

Bedrooms

2

Living Rooms

1

Bathrooms

1

This perfectly positioned 2 bedroom home is minutes away from Westbury Village and Bristol Free School.

Key features

  • Superb location being so close to Westbury Village & Southmead Hospital
  • Perfect position for both Westbury Primary & Bristol Free Secondary
  • 2 spacious double bedrooms
  • Large full width living room
  • Garden with rear access
  • Approx 77 sqm

Detail

The property is located on Greystoke Gardens which offers convenient access to the beautiful village of Westbury on Trym and its fabulous mixture of shops, cafés and coffee shops, as well as sought after local schools including Bristol Free Secondary and Westbury on Trym primary. The accommodation compromises entrance hall with generous storage cupboard, kitchen with...

Similar properties

Westbury-on-Trym

Area guide
Westbury-on-Trym Sales
73 Westbury Hill, Westbury-on-Trym, Bristol, BS9 3AD
We’re open...

Sunday

Monday

Tuesday

Wednesday

Thursday

Friday

Saturday

Closed

09:00 - 18.00

09:00 - 18.00

09:00 - 18.00

09:00 - 18.00

09:00 - 18.00

09.00 - 16.00