Skip to content
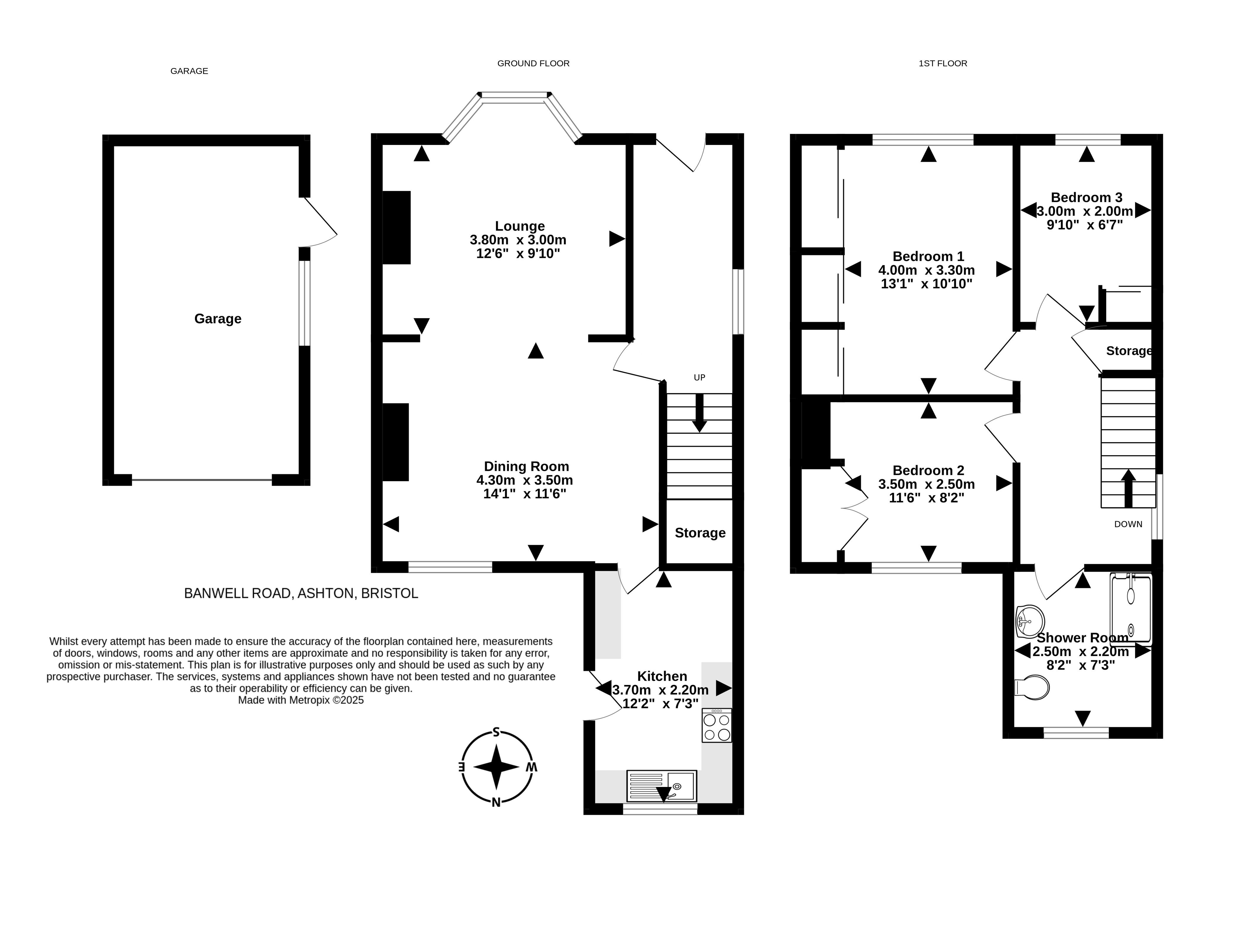
Banwell Road
Ashton, Bristol, BS3

Sold STC

£485,000

3 bed semi-detached house

Bedrooms

3

Bathrooms

1

Looking for a new project in Ashton? Check out this 3-bed semi-detached house on Banwell Road. Garage, driveway, and great access to the BS3 community! Offers over £485,000

Key features

  • Banwell Road, Ashton
  • 3 Bedroom Semi-detached House
  • Open-plan Lounge/Dining Room
  • Kitchen
  • Shower Room
  • Garage
  • Driveway
  • Family-size Garden
  • Side Access
  • Needs updating
  • Potential to extend (subject to planning)
  • No Chain

Detail

Looking for a blank canvas to make your mark? This 3-bedroom semi-detached house on Banwell Road is just waiting for someone to bring it back to life. The open-plan lounge/dining room offers plenty of space for entertaining or relaxing, while the kitchen is ready for your personal touch. The shower room is convenient for everyday use, and the garage and driveway provide...

Similar properties

Southville Sales
The Plaza, 275 North Street, Southville, Bristol, BS3 1JN
We’re open...

Sunday

Monday

Tuesday

Wednesday

Thursday

Friday

Saturday

Closed

09:00 - 18.00

09:00 - 18.00

09:00 - 18.00

09:00 - 18.00

09:00 - 18.00

09.00 - 16.00