Skip to content
Elmgrove Road
Redland, Bristol, BS6

Guide price

£280,000

1 bed apartment / flat

Bedrooms

1

Living Rooms

1

Bathrooms

1

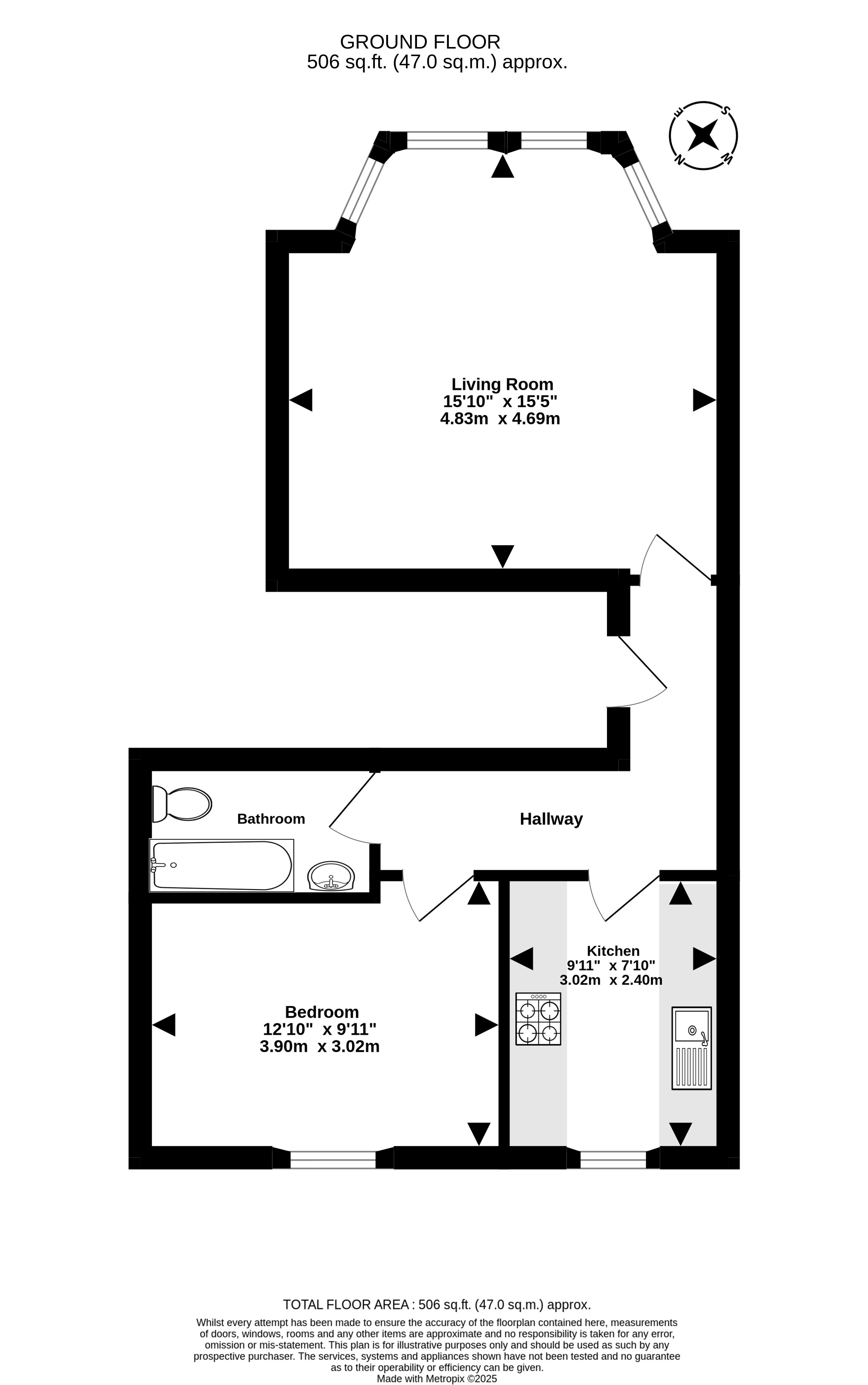
Situated on the ever-popular Elmgrove Road, this elegant one-bedroom hall-floor apartment offers an impressive blend of period charm and comfortable modern living. Set within a striking Victorian building, the property benefits from beautiful high ceilings, original cornicing, and large sash windows that fill the space with natural light.

Key features

  • Elmgrove road
  • Hall floor one bedroom flat
  • Lots of character features and charm
  • Easy access to Whiteladies Road, Gloucester Road, Redland train station, and Cotham Gardens Park
  • Floor area 47 square metres
  • No onward chain

Detail

Situated on the ever-popular Elmgrove Road, this elegant one-bedroom hall-floor apartment offers an impressive blend of period charm and comfortable modern living. Set within a striking Victorian building, the property benefits from beautiful high ceilings, original cornicing, and large sash windows that fill the space with natural light. At the front of the apartmen...

Similar properties

Redland

Area guide
Clifton Sales
187-189 Whiteladies Road, Redland, Bristol, BS8 2RY
We’re open...

Sunday

Monday

Tuesday

Wednesday

Thursday

Friday

Saturday

Closed

09:00 - 17.30

09:00 - 17.30

09:00 - 17.30

09:00 - 17.30

09:00 - 17.30

09.00 - 16.00