Positioned along the sought-after Avebury Road, this beautifully presented three-bedroom semi-detached home offers the perfect blend of space, privacy and practicality — ideal for those seeking a stylish residence in a well-connected Bristol area.
Set back from the road and screened by mature hedging, the property enjoys a wonderful sense of seclusion. A generous fro...
Positioned along the sought-after Avebury Road, this beautifully presented three-bedroom semi-detached home offers the perfect blend of space, privacy and practicality — ideal for those seeking a stylish residence in a well-connected Bristol area.
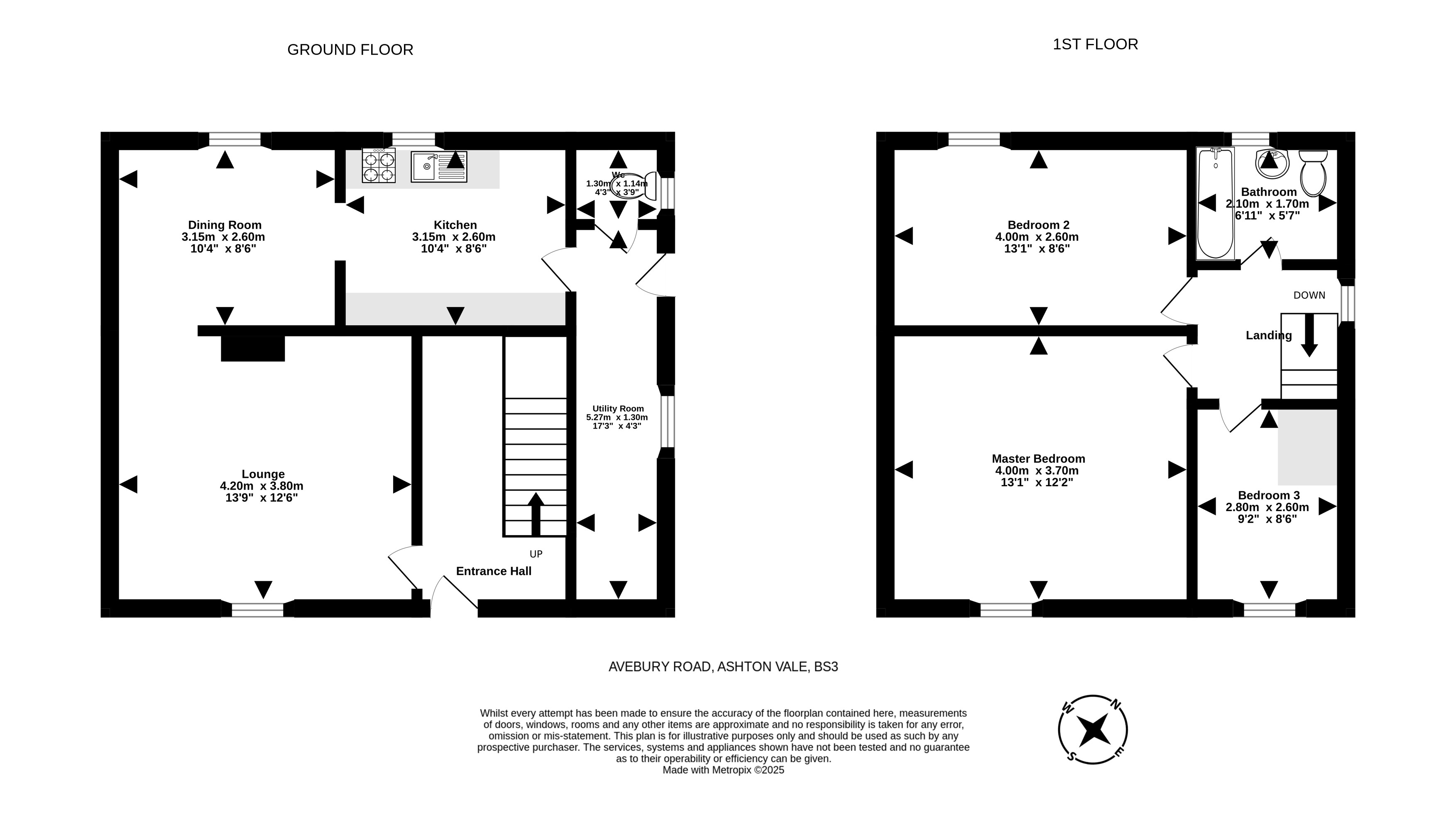
Set back from the road and screened by mature hedging, the property enjoys a wonderful sense of seclusion. A generous front garden leads to the entrance, where you are welcomed by a wide hallway, which is a versatile and functional space, perfect for coats, shoes or prams.
To the left, the main reception areas unfold. The lounge and dining room are cleverly semi open-plan, creating a natural flow between spaces while still offering defined zones for relaxing and entertaining. Large windows invite in plenty of natural light, enhancing the home’s warm and inviting atmosphere.
The kitchen follows a traditional galley layout , both practical and efficient, with direct access to a long utility area and a conveniently positioned downstairs WC. The utility corridor also opens onto the rear garden, making it an ideal set-up for family life and day-to-day functionality.
Upstairs, three well-proportioned bedrooms await. The principal and third bedrooms enjoy a pleasant outlook to the front aspect, while the second bedroom offers views across the garden to the rear.
**Please note this property is not of standard construction so we would strongly advise specific lenders such as Halifax and Santander**
Outside
Outside, the rear garden is a true highlight — a large, private space that perfectly balances relaxation and entertainment. A mixture of lawn and patio areas creates distinct zones for dining, play and leisure, while the addition of a bespoke wooden bar area makes this garden a fantastic spot for summer gatherings and outdoor hosting.
Location
Avebury Road in Ashton, BS3, offers the perfect blend of city convenience and suburban tranquillity. Nestled in one of South Bristol’s most desirable pockets, this quiet residential street is lined with attractive period and modern homes, creating a welcoming community atmosphere.
Just moments away lies North Street, renowned for its vibrant mix of independent cafés, artisan bakeries, boutique shops, and award-winning restaurants. For those who enjoy the outdoors, Greville Smyth Park and the Ashton Court Estate are within easy reach, providing acres of green space ideal for weekend walks, cycling, and picnics.
Commuters will appreciate the excellent transport links, with Parson Street Station nearby, regular bus services into the city centre, and easy access to the A370 and M5 for travel further afield. Bristol City Centre, Wapping Wharf, and Harbourside are all just a short distance away, making this location ideal for professionals, families, and those seeking the best of both urban living and community charm.
We think...
This property is ideal for anybody looking for a great family home with good proportions or an investment property in a highly sought after area.
Material information (provided by owner)
SQM - 89m2 (from epc)
EPC - D
**Please note this property is not of standard construction so we would strongly advise specific lenders such as Halifax and Santander**
Freehold - Council Tax A - £1722.60