Skip to content
Shrubbery Road
Staple Hill, Bristol, BS16

Sold STC

£350,000

2 bed semi-detached house

Bedrooms

2

Living Rooms

2

Bathrooms

1

New to the market is this charming, 2 double bedroom Victorian home located in a popular area of Downend, BS16.

Key features

  • Charming Semi detached Victorian home
  • Many original features through out
  • 2 double bedrooms
  • Great location
  • Beautiful rear garden with side access
  • EPC - D
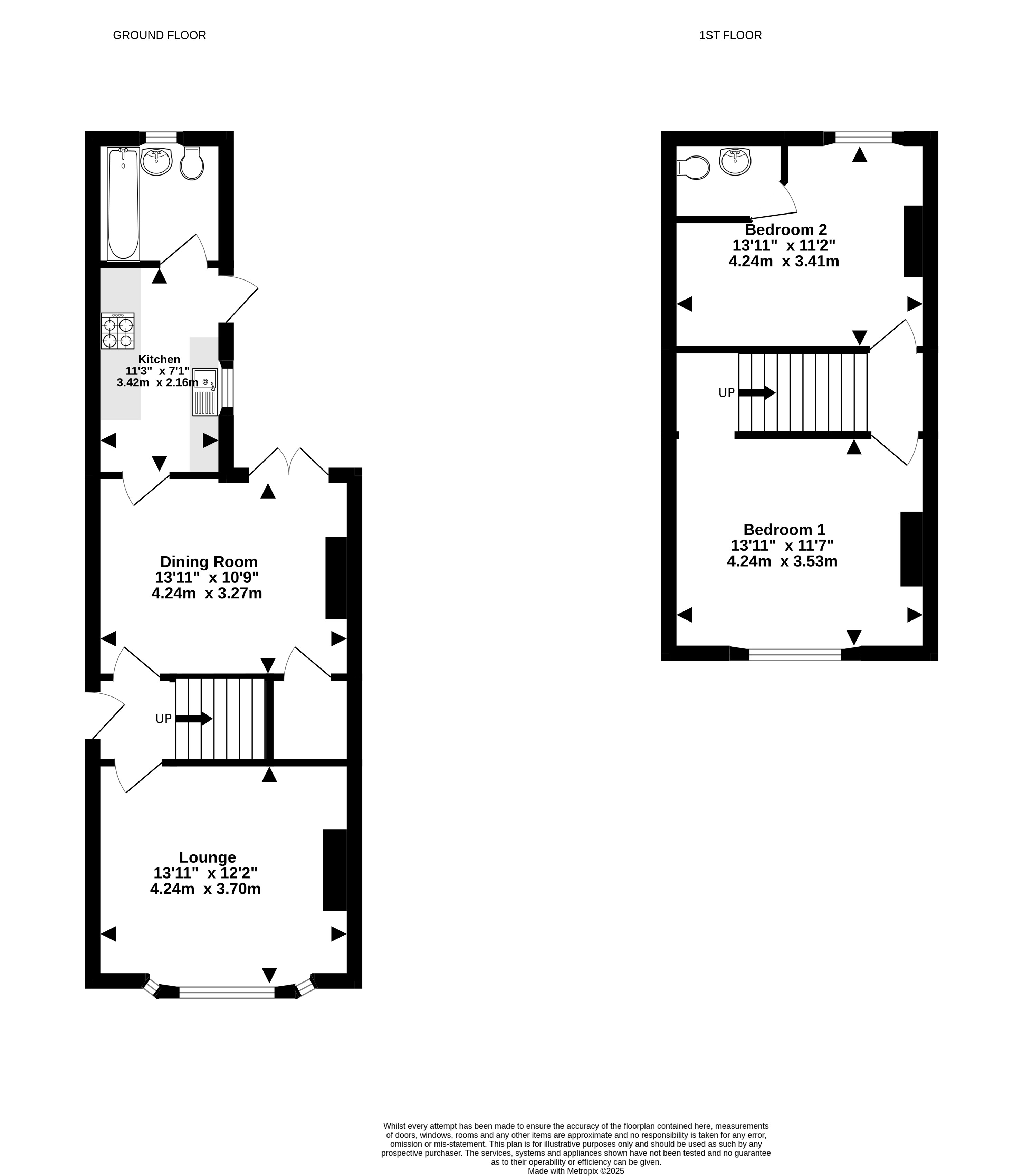
  • Floor area - 76 Square metres

Detail

On entering you are welcomed into an entrance hall featuring a charming period-style floor and staircase rising to the first floor. To the front, the spacious lounge boasts wooden flooring, a feature window, and an attractive period fireplace creating a warm and inviting living space. To the rear, a separate dining room offers flagstone-style flooring, useful under-stairs storage, and access to both the rear garden and the kitchen. The kitchen is fitted with a range of wall and base units and also provides garden access, as well as entry to the modern three-piece bathroom. Upstairs, there are two generously sized double bedrooms. The master bedroom further benefits from an en-suite cloakroom, adding convenience and comfort.

Similar properties

Staple Hill

Area guide
Downend Sales
11a Badminton Road, Downend, BS16 6BD
We’re open...

Sunday

Monday

Tuesday

Wednesday

Thursday

Friday

Saturday

Closed

09:00 - 18.00

09:00 - 18.00

09:00 - 18.00

09:00 - 18.00

09:00 - 18.00

09.00 - 16.00