Skip to content
Ashton Drive
Ashton Vale, Bristol, BS3

Sold STC

£485,000

4 bed terraced house

Bedrooms

4

Living Rooms

1

Bathrooms

2

Imagine waking up to stunning views of the Suspension Bridge from your master bedroom in this charming 4-bed terrace in Ashton Vale - a must-see!

Key features

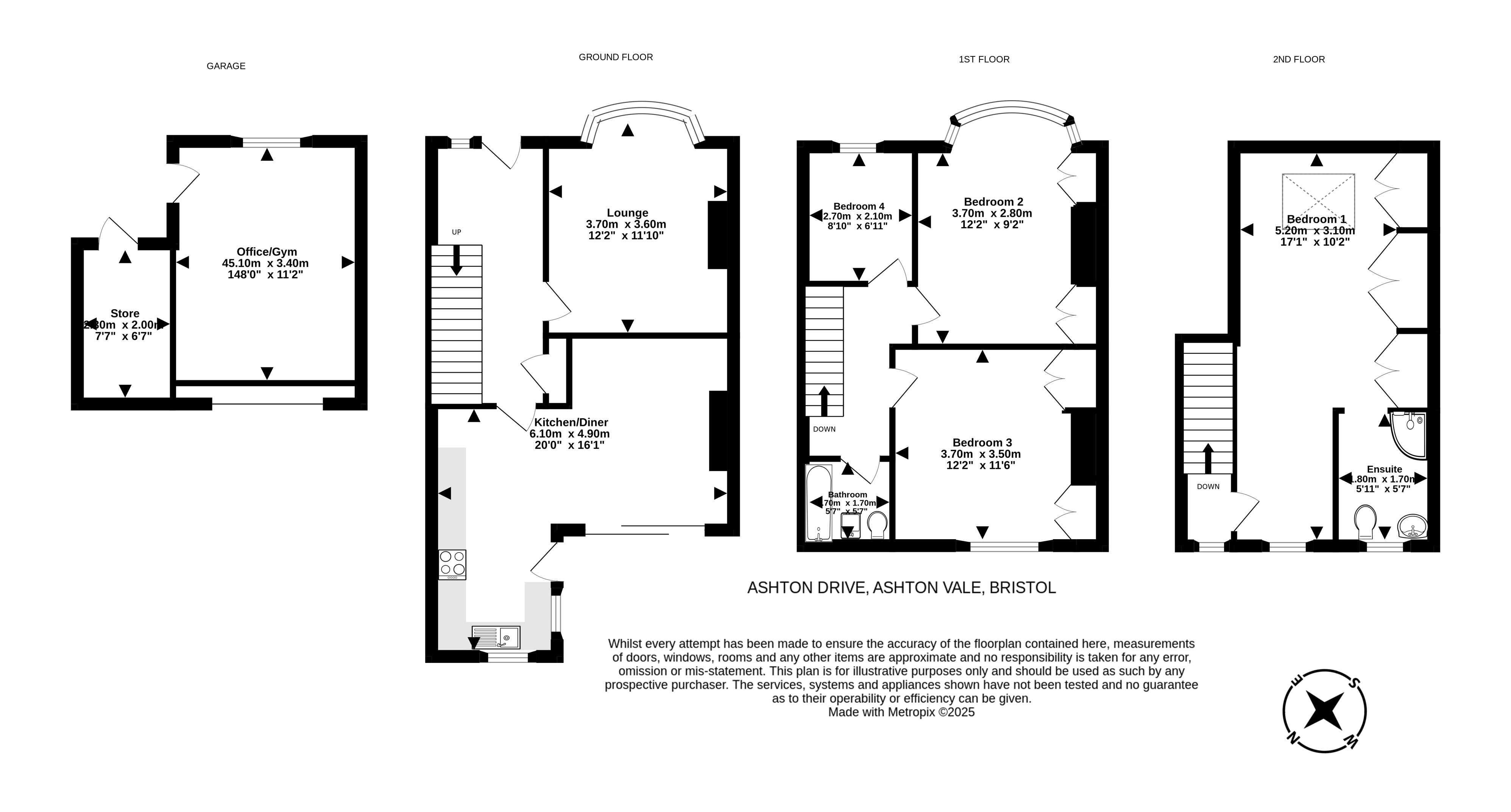
  • - 4 Bedroom Terrace House
  • - Lounge, Kitchen/Diner
  • - Family Bathroom, En-suite
  • - Gym/Office, Store Room
  • -Spacious Rear Garden
  • - Rear Access, Parking for 2 Cars
  • - Views of Suspension Bridge from Master Bedroom

Detail

Set on Ashton Drive, this 4-bed terraced house is a family's dream, with a cozy lounge, spacious kitchen/diner with access to the rear garden, this space is perfect for family events and gathering around the table at Christmas. You have a family bathroom, , gym/office, store room, rear access, and parking for 2 cars. The master bedroom offers a breathtaking view of the Suspension Bridge, and a en-suite. This space is great for a growing family or use as a guest for family/friends.

Similar properties

Ashton Vale

Area guide
Southville Sales
The Plaza, 275 North Street, Southville, Bristol, BS3 1JN
We’re open...

Sunday

Monday

Tuesday

Wednesday

Thursday

Friday

Saturday

Closed

09:00 - 17.30

09:00 - 17.30

09:00 - 17.30

09:00 - 17.30

09:00 - 17.30

09.00 - 16.00