Skip to content
Lynmouth Road
St Werburghs, Bristol, BS2

Sold STC

£475,000

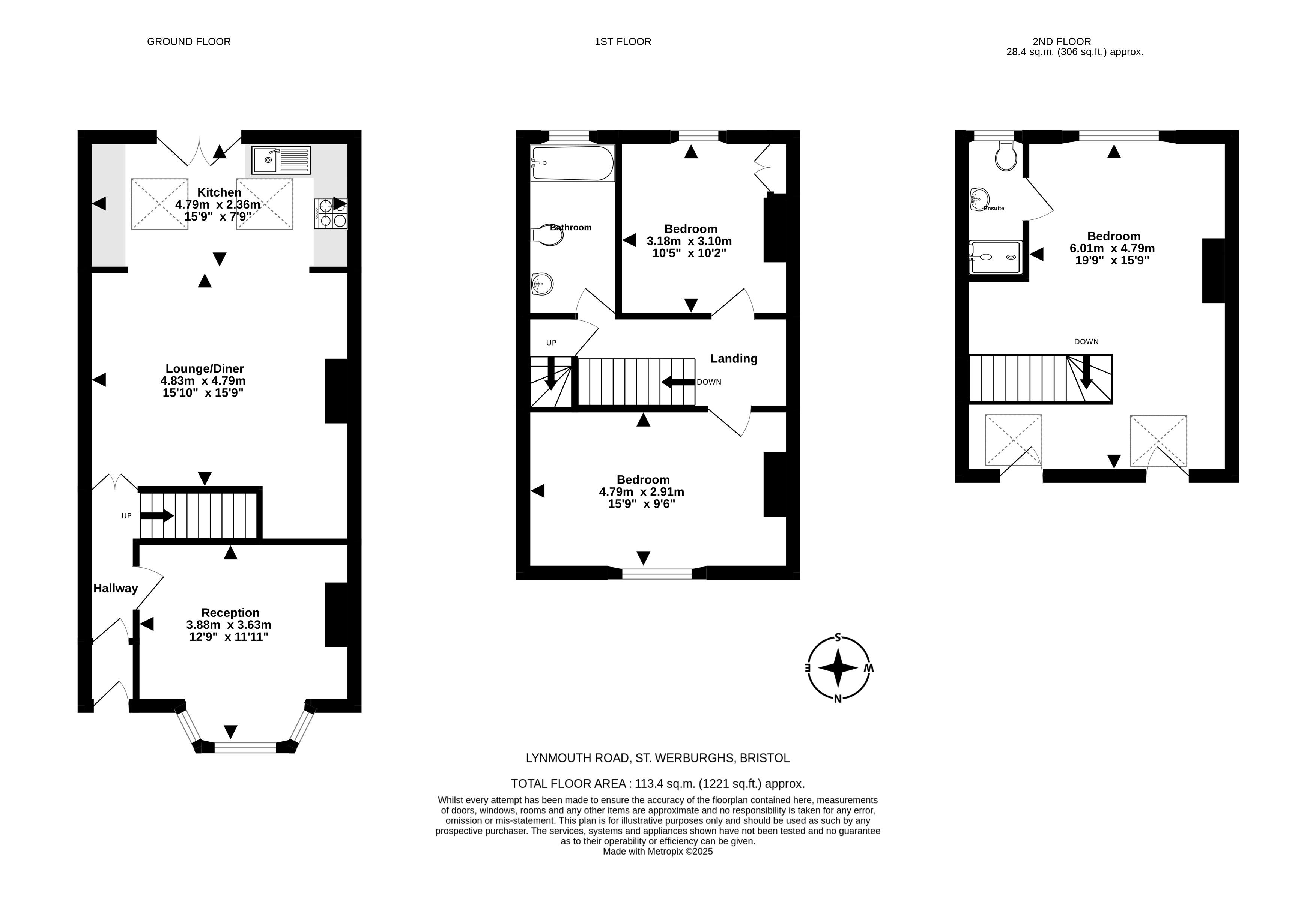
3 bed terraced house

Bedrooms

3

Living Rooms

2

Bathrooms

2

On a peaceful street, moments from Narroways nature reserve, this beautifully cared for three-bedroom house in St. Werburghs offers a bright, flexible layout and a perfectly orientated South-facing garden.

Key features

  • Three-double bedrooms
  • Meticulously maintained and looked after by the current owners
  • Traditional and classic features
  • Private and tranquil South-facing garden
  • Close to the shops, cafe's and restaurants of Mina Road
  • Easy access to the M32 motorway
  • Within walking and cycling distance of Bristol City Centre

Detail

Nestled close to Narroways nature reserve, this three-bedroom Victorian terrace has been lovingly cared for with practicality and a clear sense of purpose. The main attraction here is the light and spacious kitchen/diner. Natural light pours in through the stunning skylights and doors, that open directly onto the South-facing garden, softening the boundary between indoo...

Similar properties

St Werburghs

Area guide
Bishopston Sales
201 Gloucester Rd, Bishopston, Bristol, BS7 8BG
We’re open...

Sunday

Monday

Tuesday

Wednesday

Thursday

Friday

Saturday

Closed

09:00 - 18.00

09:00 - 18.00

09:00 - 18.00

09:00 - 18.00

09:00 - 18.00

09.00 - 16.00