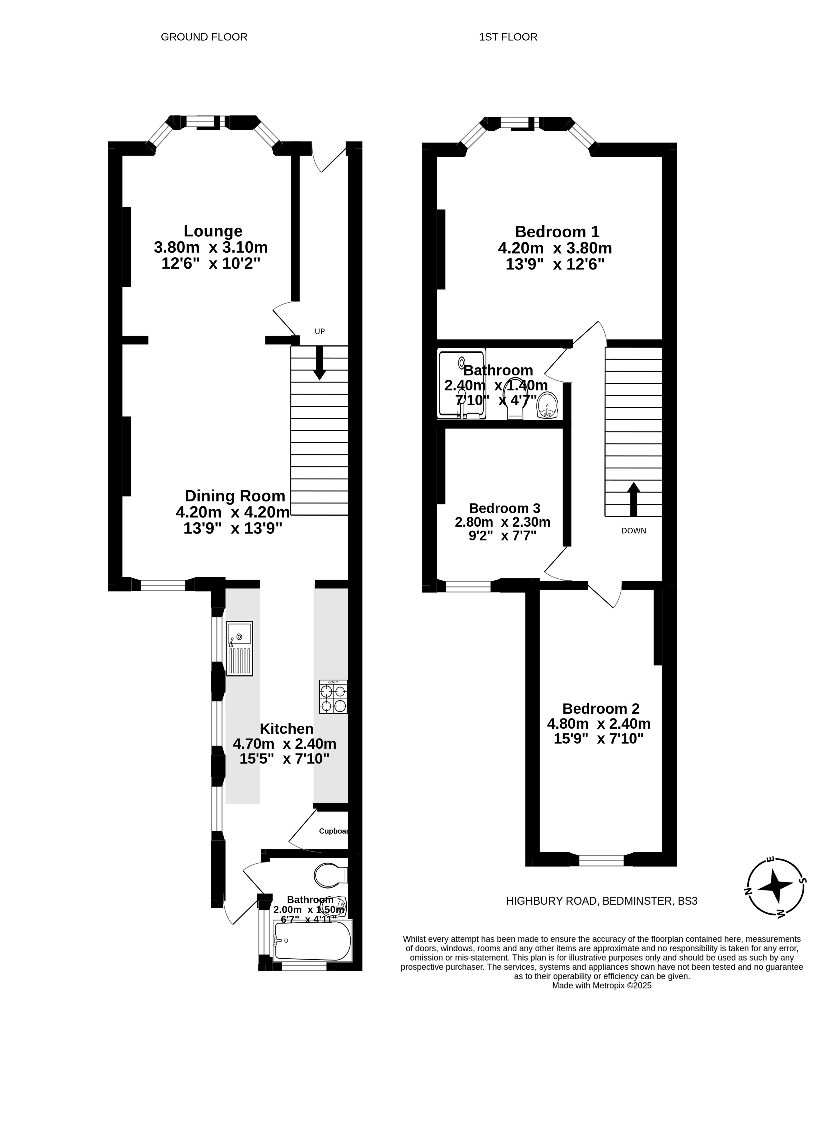
As you step inside, the inviting entrance hall sets the tone, offering access to the staircase and leading through to a spacious open-plan living and dining room. The lounge area features a striking bay window, filling the room with natural light, and a charming period fireplace, all complemented by crisp white walls that enhance the sense of light and space. This is th...
As you step inside, the inviting entrance hall sets the tone, offering access to the staircase and leading through to a spacious open-plan living and dining room. The lounge area features a striking bay window, filling the room with natural light, and a charming period fireplace, all complemented by crisp white walls that enhance the sense of light and space. This is the perfect setting for relaxing evenings or entertaining family and friends.
Continuing through, you’ll find the traditional galley-style kitchen, thoughtfully designed with ample storage, generous worktop space, and a bright, airy feel. To the rear of the home lies the stylish ground-floor bathroom, finished in a vibrant green with elegant white panelling, a contemporary twist on classic design that adds character and flair.
Upstairs, there are three well-proportioned bedrooms, each offering flexibility for family living, home working, or guest accommodation. An additional upstairs shower room provides added convenience, ideal for busy households.
Externally, the property boasts a delightful rear garden, with a mix of paved seating area and green lawn, perfect for outdoor dining or relaxation. An outbuilding provides useful additional storage or potential for a creative workspace.
With no onward chain, this property presents a rare opportunity to secure a home that’s ready to move into while still offering potential for personal touches.
Location
Highbury Road enjoys a prime position in the heart of Bedminster, one of Bristol’s most vibrant and well-connected neighbourhoods. Known for its strong community feel and colourful character, this area blends traditional Bristol charm with a thriving independent spirit.
Just moments away lies North Street, the cultural hub of BS3, home to an array of artisan cafés, award-winning restaurants, boutique shops, and lively pubs. From weekend brunches at local favourites to evening drinks in atmospheric bars, everything you need for a social, urban lifestyle is on your doorstep.
We think...
Just moments from the vibrant energy of North Street and offered with no onward chain, this property is perfect for anybody looking to put their stamp on a fantastic property with huge potential.
Material information (provided by owner)
SQM - 94m2 (from epc)
EPC - D
Freehold - Council Tax B