Skip to content
Consort House
Southville, Bristol, BS3

Sold STC

£400,000

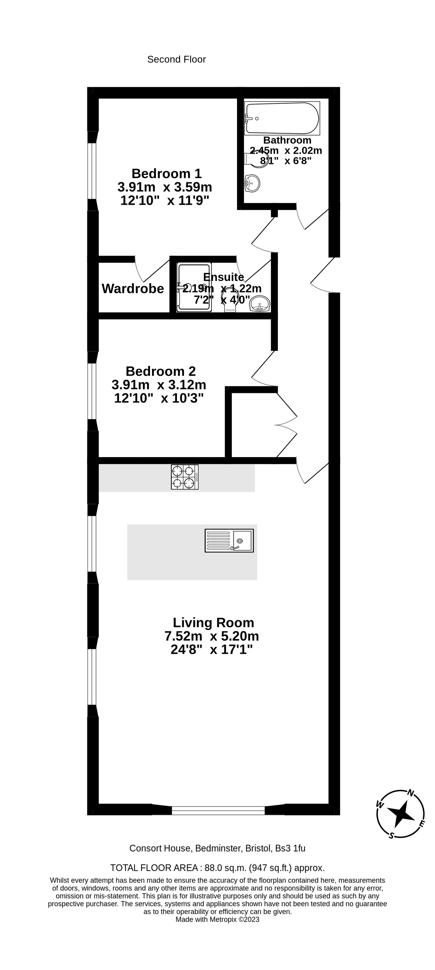
2 bed apartment / flat

Bedrooms

2

Living Rooms

1

Bathrooms

2

This apartment is a rare offering in a development that combines architectural charm with modern interiors – an ideal opportunity for buyers seeking space, sophistication and a vibrant lifestyle setting.

Key features

  • Consort House
  • Allocated Parking
  • Close to city centre
  • 2 Bedroom's
  • Living space with fully integrated kitchen, engineered oak flooring
  • Stunning 3 piece bathroom
  • Ensuite to master

Detail

Positioned within the prestigious Consort House development in the heart of ever-popular Bedminster, this exceptional two-bedroom apartment combines contemporary design with refined, high-end finishes to create an effortlessly stylish home – ideal for modern city living. From the moment you step inside, the sense of considered design is clear. The entrance landing im...

Similar properties

Southville

Area guide
Southville Sales
The Plaza, 275 North Street, Southville, Bristol, BS3 1JN
We’re open...

Sunday

Monday

Tuesday

Wednesday

Thursday

Friday

Saturday

Closed

09:00 - 18.00

09:00 - 18.00

09:00 - 18.00

09:00 - 18.00

09:00 - 18.00

09.00 - 16.00