Skip to content
Briary Road
Portishead, Bristol, BS20

Sold STC

£195,000

2 bed apartment / flat

Bedrooms

2

Living Rooms

1

Bathrooms

1

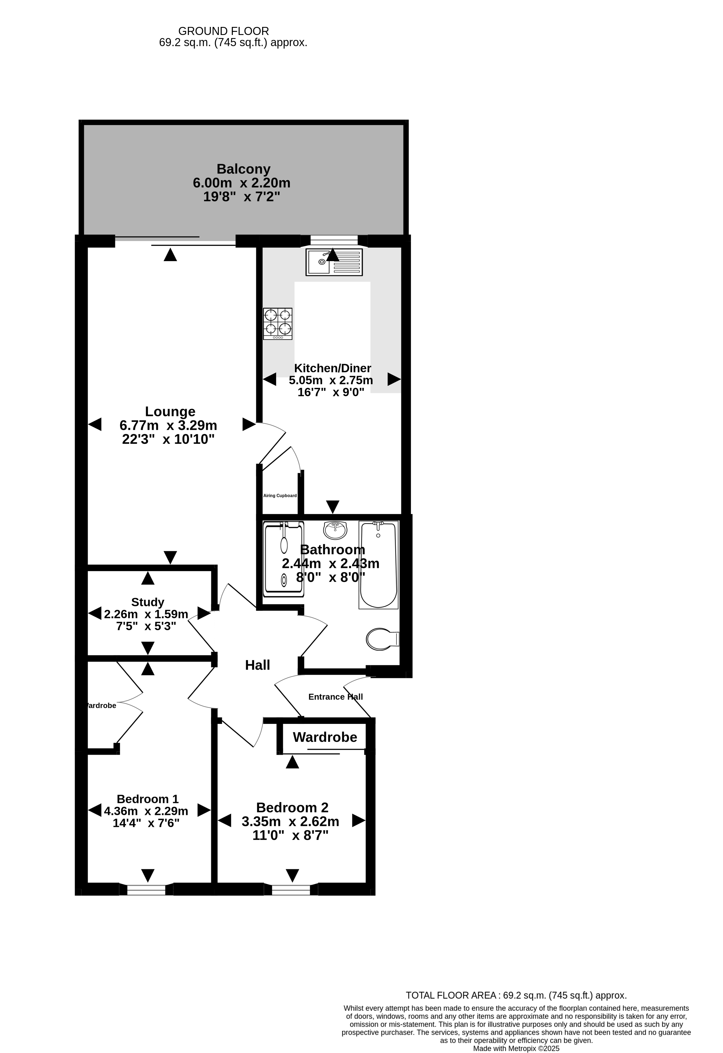
A well presented 2-bedroom flat on Briary Road that is just a brief walk from the High Street. Complete with its own garage situated beneath the building, this property is ideal for a first time buyer or for a individual looking for a quiet place to downsize.

Key features

  • Briary Road
  • Portishead
  • 2 Bedrooms
  • Balcony
  • Leasehold
  • Garage & Off Street Parking
  • EPC - TBC

Detail

Step inside this fantastic property and be welcomed by a spacious entrance hall that guides you into a bright living room with sliding patio doors that open up to a sizable balcony. The recently updated modern kitchen diner featuring plenty of kitchen cupboards and includes two ovens, ideal for cooking and entertaining. Boasting two double bedrooms, a study room perfect for occasional remote work, and a stylish four-piece bathroom with a separate shower, this home offers comfortable living areas and is ideal for those looking for space.

Similar properties

Portishead

Area guide
Portishead Sales
43 High Street, Portishead, BS20 6AA
We’re open...

Sunday

Monday

Tuesday

Wednesday

Thursday

Friday

Saturday

Closed

09:00 - 17.30

09:00 - 17.30

09:00 - 17.30

09:00 - 17.30

09:00 - 17.30

09.00 - 16.00