Skip to content
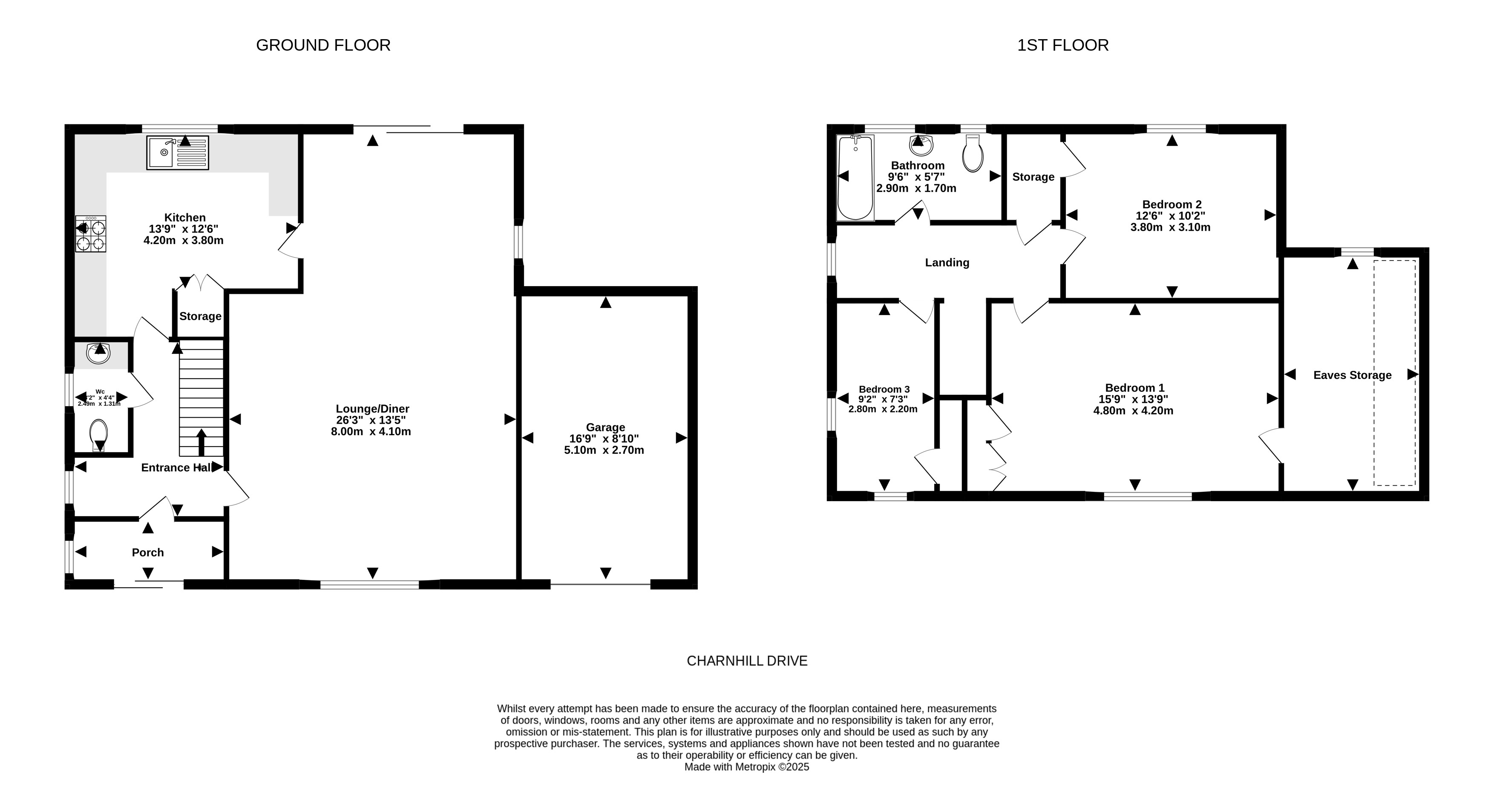
Charnhill Drive
Mangotsfield, Bristol, BS16

Sold STC

£500,000

3 bed detached house

Bedrooms

3

Living Rooms

1

Bathrooms

1

Sold with no onward chain is this 3 bedroom detached family home on Charnhill Drive, Mangotsfield.

Key features

  • No Chain
  • 3 Bedrooms
  • Detached Family Home
  • Open Plan lounge/dining room
  • Master Bedroom offered with walk in wardrobe area
  • Sought after location
  • EPC - D
  • Floor area - TBC

Detail

A rare opportunity to purchase this beautiful detached home located in a popular part of Mangotsfield and would make the perfect family home. Upon entering the home via the entrance porch you are welcomed in to a traditional hall that will lead you through the entire ground floor. To the right you will find a sizeable living/dining room that spans the entire length o...

Similar properties

Mangotsfield

Area guide
Downend Sales
11a Badminton Road, Downend, BS16 6BD
We’re open...

Sunday

Monday

Tuesday

Wednesday

Thursday

Friday

Saturday

Closed

09:00 - 18.00

09:00 - 18.00

09:00 - 18.00

09:00 - 18.00

09:00 - 18.00

09.00 - 16.00