Skip to content
Chapel Road
Fishponds, Bristol, BS16

Offers over

£400,000

3 bed terraced house

Bedrooms

3

Living Rooms

2

Bathrooms

2

Ocean are pleased to bring to the market this immaculately presented 3 bedroom townhouse on Chapel Road, BS16.

Key features

  • Garage
  • Modern throughout
  • Well kept rear garden
  • Open planned living
  • Popular location
  • EPC - B
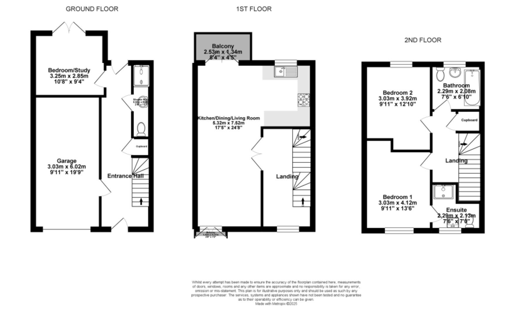
  • Floor area - 100 Sqm

Detail

Newly built in 2020 and situated on a popular Linden development in Fishponds is this stylish 3 bedroom terraced home perfect for first time buyers, families or investors alike. To the ground floor the property comprises of a large entrance hall which leads the full length of the home and provides access to the integral garage, shower room with W/C and 3rd bedroom/st...

Similar properties

Fishponds

Area guide
Downend Sales
11a Badminton Road, Downend, BS16 6BD
We’re open...

Sunday

Monday

Tuesday

Wednesday

Thursday

Friday

Saturday

Closed

09:00 - 18.00

09:00 - 18.00

09:00 - 18.00

09:00 - 18.00

09:00 - 18.00

09.00 - 16.00