Skip to content
Kings Weston Lane
Lawrence Weston, Bristol, BS11

Sold STC

£285,000

3 bed semi-detached house

Bedrooms

3

Living Rooms

1

Bathrooms

1

Beautifully presented semi-detached home with large gardens and an elevated position.

Key features

  • Semi Detached
  • 3 Bedrooms
  • Lounge
  • Fitted Kitchen
  • Dining Room
  • Double Glazing
  • Gas Central Heating
  • Utility Room
  • Downstairs Cloakroom
  • Gardens
  • Elevated Position
  • PRC Rebuild

Detail

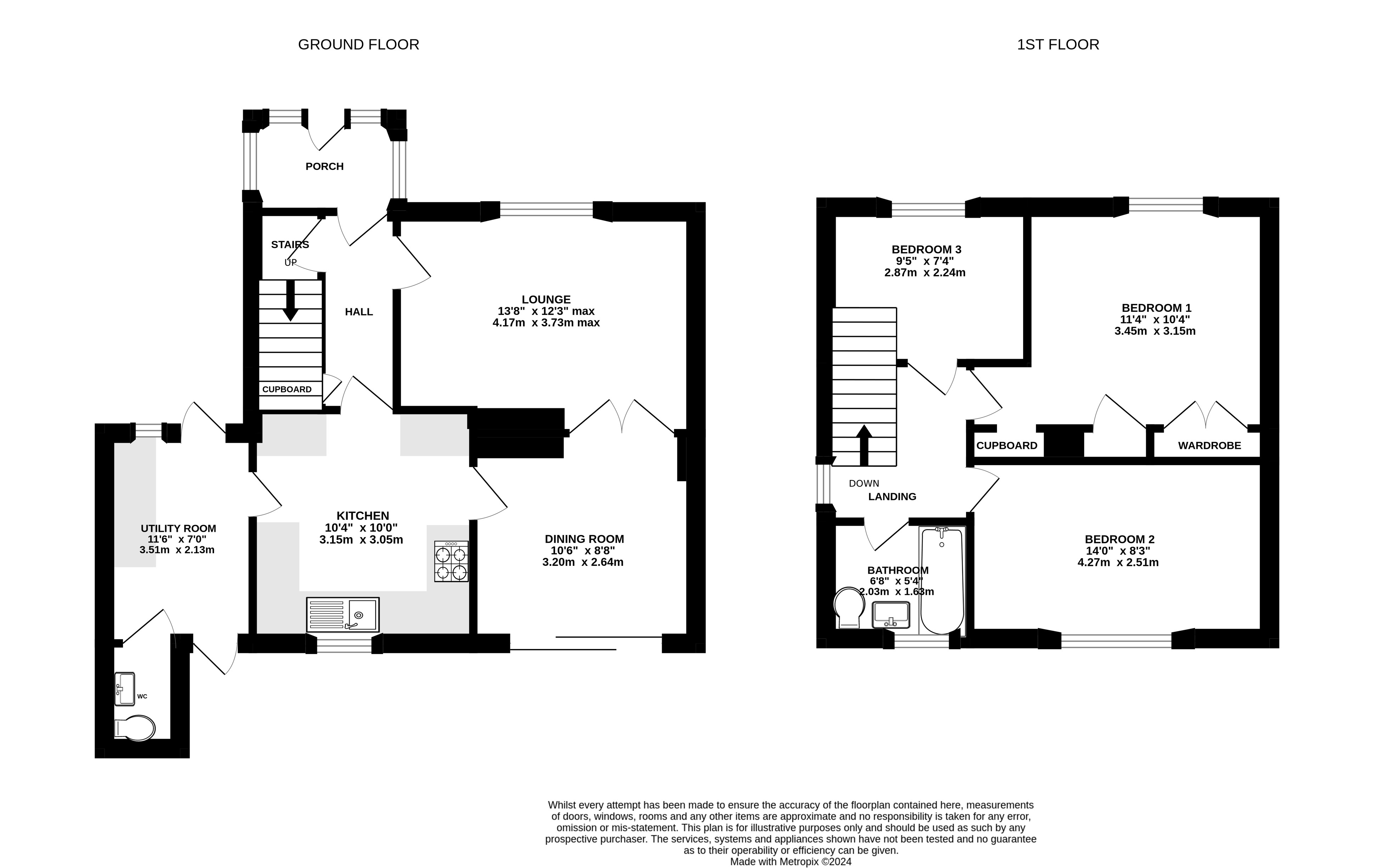
The house features an spacious living accomodation on the ground floor which is perfect for families. As you enter the front door there is a a large lounge to your left which has a large window, letting in plenty of light in. The kitchen and dining room are at the rear of the house and can be accessed from either the lounge or the hallway. There is plenty of cupboard space in the kitchen, as well as an integral oven & hob. The kitchen door leads to a utility room and a downstairs WC. Upstairs there are 3 bedrooms, 2 of which are good-sized double rooms and a family bathroom.

Similar properties

Lawrence Weston

Area guide
Shirehampton Sales
14-16 High Street, Shirehampton, Bristol, BS11 0DP
We’re open...

Sunday

Monday

Tuesday

Wednesday

Thursday

Friday

Saturday

Closed

09:00 - 18.00

09:00 - 18.00

09:00 - 18.00

09:00 - 18.00

09:00 - 18.00

09.00 - 16.00