Skip to content
Baytree Road
Milton, Weston-Super-Mare, BS22

£580,000

3 bed detached house

Bedrooms

3

Living Rooms

3

Bathrooms

2

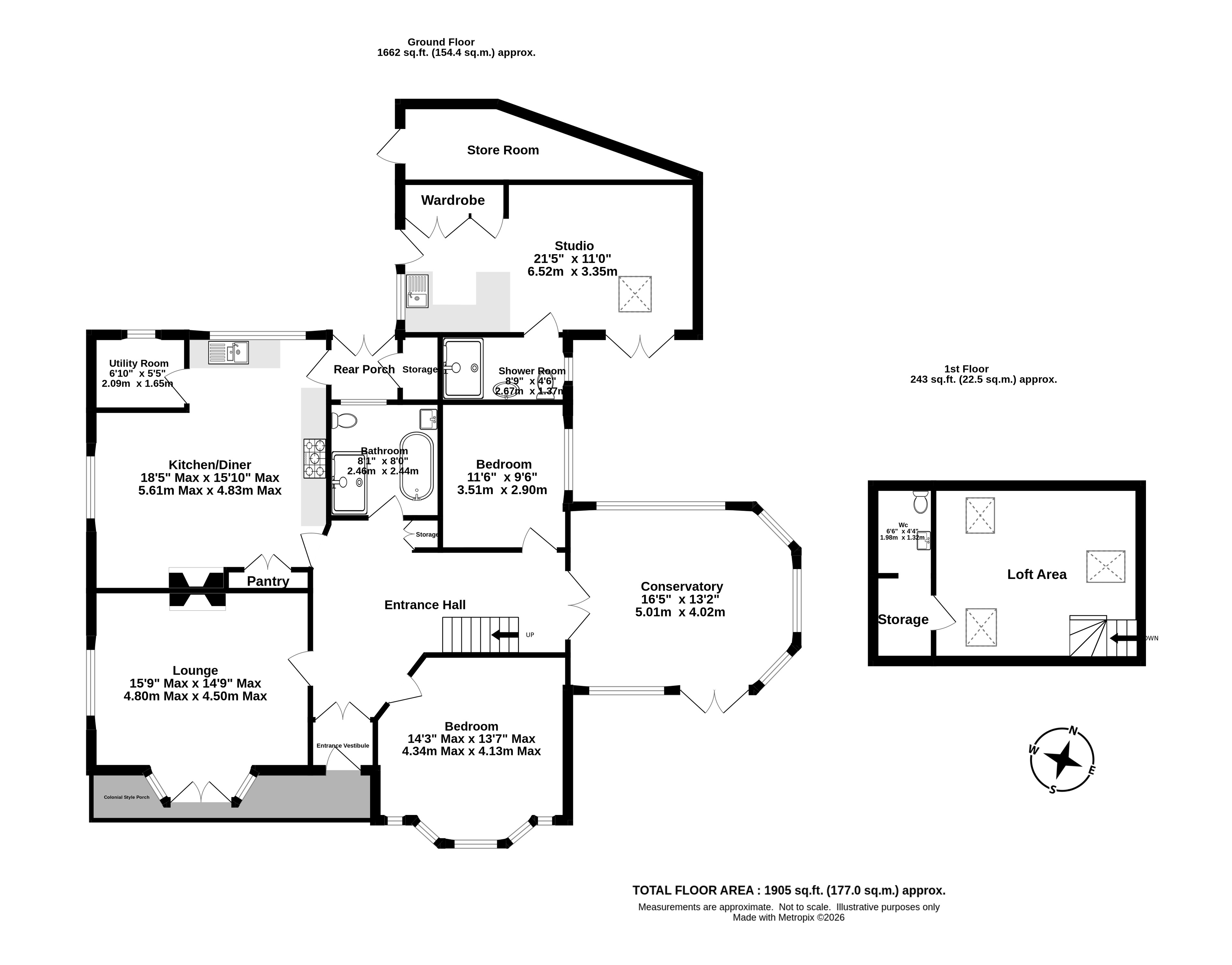
This is a beautiful 3/4 bed detached property set back and above the road on a sizeable plot ideal for gardeners, families (particularly merging or multi generational families) and anyone looking to extend without losing valuable garden space.

Key features

  • Baytree Road
  • Planning in place to extend
  • Stunning detached bungalow
  • Lounge with wood burner
  • Kitchen/diner
  • 3 potentially 4 bedrooms
  • Bathroom with separate shower
  • Parking for several cars
  • Annexe
  • Gardens on three sides
  • Garden office
  • Summer house

Detail

There is planning permission for an extensive loft conversion and rear lounge. 22/P/0427/FUH 22/P/3072/MMA.This wonderful home has been updated and extended by the current family, they present stylish and spacious accommodation consisting of an entrance vestibule, an impressive entrance hall, lounge with French doors onto a Colonial style porch and terrace, kitchen/diner, bathroom with a separate shower cubicle, two double bedrooms, conservatory and a superb annexe/guest bedroom suite with a kitchenette & ensuite shower room, this has a top rating on Airbnb. Externally, beautifully manicured gardens are on the sides and front and off street parking to the rear.

Similar properties

Milton, Ashcombe and Hillside

Area guide
Weston Sales
Suite 57, Pure offices, Pastures Ave, St Georges, Weston-super-Mare, BS22 7SB
We’re open...

Sunday

Monday

Tuesday

Wednesday

Thursday

Friday

Saturday

Closed

09:00 - 18.00

09:00 - 18.00

09:00 - 18.00

09:00 - 18.00

09:00 - 18.00

09.00 - 16.00